Prodej rodinného domu, Kolín, 131 m2 (ID: 1902137)

Kolín

9 990 000 Kč
/za nemovitost
Cena je včetně provize a právního servisu.
Hypotéka od 44 649 Kč /měs. Chci hypotéku

Parametry domu

AdresaKolín
IDZa Brankou
StavbaCihlová
Stav objektuNovostavba
Užitná plocha131 m2
Zastavěná plocha80 m2
Plocha pozemku258 m2
Plocha zahrady178 m2
Třída energetické náročnostiB - Velmi úsporná
Ukazatel energetické náročnosti74 kWh/m2 za rok
Elektřina230V
OdpadVeřejná kanalizace
DopravaVlak, Silnice, MHD, Autobus
VodaVodovod
Topné tělesoPodlahové vytápění
Zdroj topeníTepelné čerpadlo
Parkování

Origo partneři v Kolíně

Popis

Hledáte nové moderní a klidné bydlení pro svou rodinu, a přitom nechcete opustit výhody městského života? Pak pro vás máme příležitost.
Na prodej nabízíme novostavbu moderního rodinného domu 4+kk o užitné ploše 131 m², který se nachází v atraktivním projektu „Za Brankou“ v klidné části města Kolín. Dům stojí na vlastním pozemku o výměře 258 m².
Dokončení stavby domu je naplánováno do konce roku 2025. Následně bude probíhat dokončení interiéru podle vašich představ. Sami si vyberete styl, materiály i barevné ladění, které vám bude nejvíce vyhovovat. V ceně stavby jsou standardy, které vám na vyžádání zašleme, nebo si můžete zvolit svou náročnost na použité materiály.
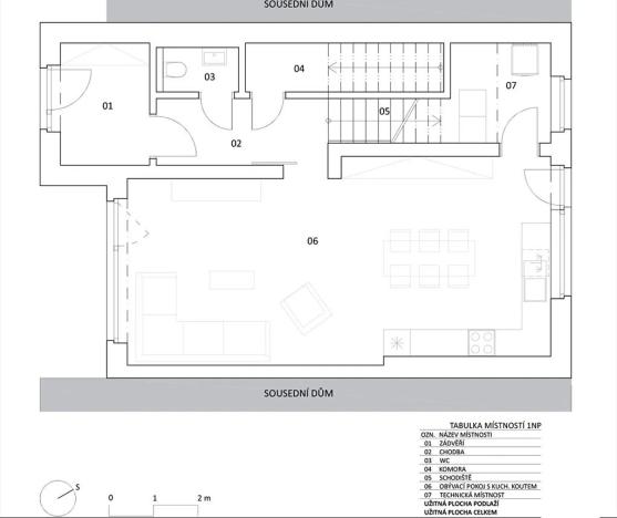
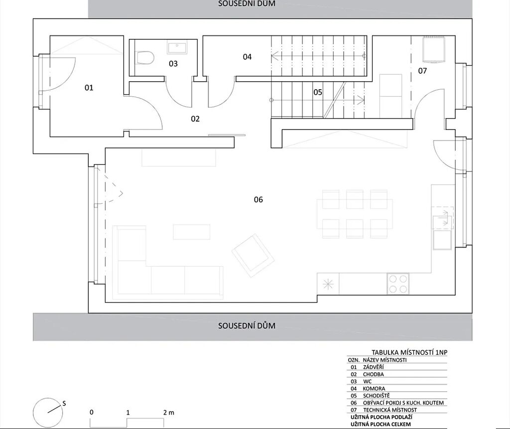
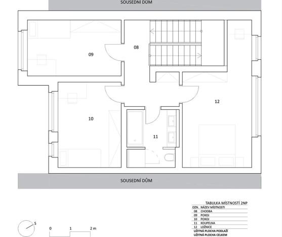
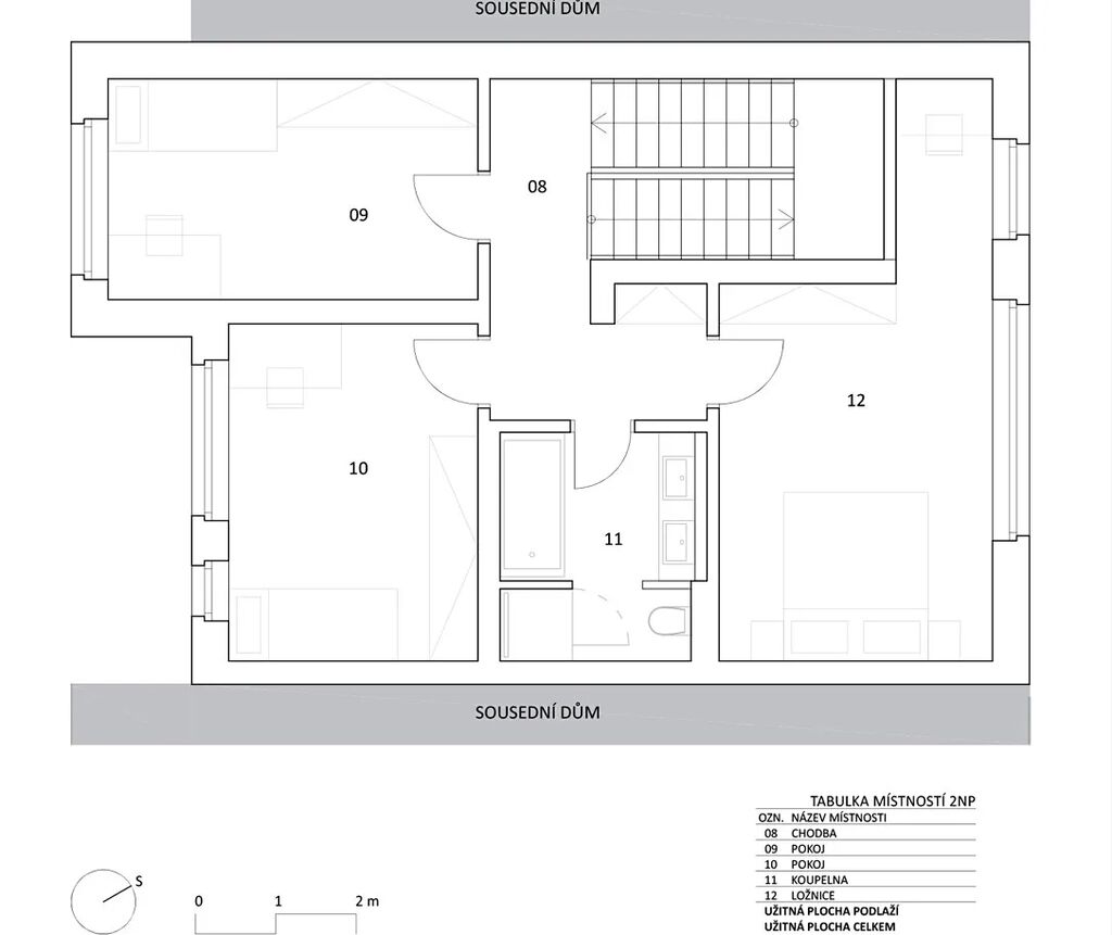
Dispozičně je dům řešen velmi prakticky a prostorně. Nabízí komfortní dispozici 4+kk, která je ideální pro rodinu s dětmi. V přízemí se nachází obývací prostor s kuchyňským koutem a přímým vstupem na zahradu před domem i za domem, technická místnost a toaleta. V patře najdete tři samostatné pokoje a koupelnu.
Projekt „Za Brankou“ se pyšní soukromím a bezpečím, které zajišťuje vlastní příjezdová cesta – díky tomu získáte klid, pohodu a minimální provoz v okolí.
Lokalita nabízí perfektní kombinaci klidu a dostupnosti – dům se nachází jen kousek od centra Kolína, kousek od nákupního střediska i od MŠ i ZŠ. Vlakové nádraží je 5 min. chůzí. Máte veškerou občanskou vybavenost doslova na dosah ruky (školy, školky, obchody, sportoviště, MHD, vlakové spojení do Prahy).
Na domě je kladen důraz na praktičnost a šetrnost. Vytápění zajišťuje tepelné čerpadlo vzduch-voda do podlahového vytápění.
Tento dům představuje jedinečnou příležitost pořídit si nové bydlení v soukromí, na klidném místě a přesto ve městě.
V nabídce je pouze tento jeden dům.
V případě dotazu mne kdykoliv kontaktujte, rád vám sdělím podrobnosti a možnosti.

Makléř

Máte zájem o tento dům?

Tímto, v souladu s nařízením Evropského parlamentu a Rady (EU) 2016/679, v platném znění, prohlašuji, že mi je alespoň 16 let a uděluji tak svůj souhlas se zpracováním zadaných údajů (jméno, telefon, e-mail, ip adresa) společnosti B3 Technology, s.r.o., IČ: 07330600, se sídlem Novostavby 126/23, 435 11 Lom (správce dat), za účelem předání dotazu z tohoto formuláře Vámi vybranému inzerentovi a zpětného kontaktování mé osoby. Osobní údaje bude správce zpracovávat manuálně i automaticky přímo prostřednictvím svých zaměstnanců. Informace předané tímto formulářem budou uloženy v databázi správce maximálně po dobu 10 let. Odvolání souhlasu s uložením a zpracováním poskytnutých dat lze e-mailem na info@origo-reality.cz. V případě podezření na neoprávněné použití Vámi poskytnutých údajů máte právo předat podnět k šetření Úřadu pro ochranu osobních údajů. Více informací
Chystáte se prodat nemovitost?
Pomůžeme Vám!

Přihlášení k odběru

Nenechte si ujít nejnovější nabídky prodeje rodinných domů v Kolíně.