Soccer reality

Pronájem skladu, Jirny, Tovární, 447 m2

Tovární, Jirny

37 995 Kč
/za měsíc
Provize realitní kanceláře je jeden měsíční nájem
Získejte výhodnou HYPOTÉKU Chci hypotéku

Parametry nemovitosti

AdresaTovární, Jirny
ID11604
StavbaSmíšená
Stav objektuVelmi dobrý
Typ objektuPatrový
Druh objektuSamostatný
Lokalita objektuCentrum obce
Užitná plocha447 m2
Zastavěná plocha447 m2
Podlahová plocha447 m2
Plocha pozemku447 m2
Třída energetické náročnostiG - Mimořádně nehospodárná
Elektřina230V, 400V
PlynPlynovod
Parkování

Origo partneři v Jirnech

Popis

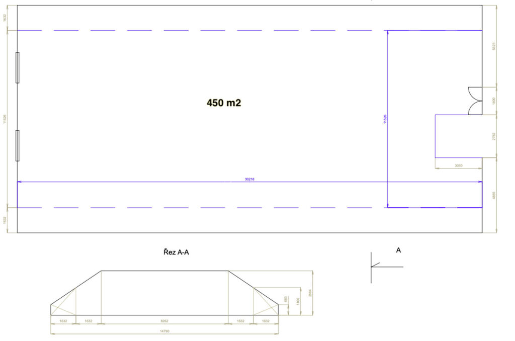
Nabízíme k pronájmu sklad o podlahové ploše 447 m² ve 2.patře s výtahem o nosnosti 1000Kg v komerčním areálu na adrese Tovární 26, Praha východ Jirny. Skladový prostor je ve druhém patře celkem o rozloze 447 m². Prostor je přístupný nákladním výtahem s nosností 1 000 kg a schodištěm, příjezd nákladních vozidel k rampě která disponuje dostatečným manipulačním prostorem pro vozidla do 5 t. Sklad je vybaven topením pro temperování proti zamrznutí a v přízemí jsou k dispozici společné toalety. Průkaz energetické náročnosti zatím nebyl vydán, proto je administrativně uvedena jako třída G – úsporná, což neodráží skutečnou spotřebu energie.
Výborná dopravní dostupnost – snadné napojení na dálnici D11 a Pražský okruh, dobrá dostupnost do centra Prahy i do průmyslových zón v okolí, zastávka MHD přímo před budovou (směr Černý Most, Brandýs nad Labem, Úvaly a další směry).

Makléř

Máte zájem o tuto nemovistost?

Tímto, v souladu s nařízením Evropského parlamentu a Rady (EU) 2016/679, v platném znění, prohlašuji, že mi je alespoň 16 let a uděluji tak svůj souhlas se zpracováním zadaných údajů (jméno, telefon, e-mail, ip adresa) společnosti B3 Technology, s.r.o., IČ: 07330600, se sídlem Novostavby 126/23, 435 11 Lom (správce dat), za účelem předání dotazu z tohoto formuláře Vámi vybranému inzerentovi a zpětného kontaktování mé osoby. Osobní údaje bude správce zpracovávat manuálně i automaticky přímo prostřednictvím svých zaměstnanců. Informace předané tímto formulářem budou uloženy v databázi správce maximálně po dobu 10 let. Odvolání souhlasu s uložením a zpracováním poskytnutých dat lze e-mailem na info@origo-reality.cz. V případě podezření na neoprávněné použití Vámi poskytnutých údajů máte právo předat podnět k šetření Úřadu pro ochranu osobních údajů. Více informací
Chystáte se prodat nemovitost?
Pomůžeme Vám!

Přihlášení k odběru

Nenechte si ujít nejnovější nabídky pronájmu skladů v Jirnech.