Pronájem bytu 4+1, Praha - Chodov, 250 m2 (ID: 1901702)

Praha, Chodov

70 000 Kč
/za měsíc
Cena pronájmu vč. zařízení a vybavení 20 000 Kč za měsíc.
Získejte výhodnou HYPOTÉKU Chci hypotéku

Parametry bytu

AdresaPraha, Chodov
ID947923
StavbaSmíšená
Stav objektuNovostavba
Patro1. z 3
VybavenoAno
VlastnictvíOsobní
Užitná plocha250 m2
Podlahová plocha151 m2
Plocha zahrady70 m2
Třída energetické náročnostiB - Velmi úsporná
Elektřina230V
OdpadVeřejná kanalizace
KomunikaceAsfaltová
TelekomunikaceInternet
DopravaVlak, Dálnice, Silnice, MHD, Autobus
VodaVodovod
Topné tělesoRadiátory
Zdroj topeníPlynový kotel
Garáž
Sklep
Lodžie
Terasa
Výtah
Parkování

Origo partneři v Praze 4

Stěhovací služby

Výkup a prodej starého nábytku

Popis

K pronájmu nabízíme exkluzivní byt 4+1 v prestižní lokalitě Praha 4, Chodov. Tento prostorný byt s podlahovou plochou 151 m² a užitnou plochou 250 m² se pyšní moderním vybavením a vysoce kvalitním provedením. Byt se nachází v prvním až třetím podlaží cihlové budovy s výtahem, postavené v roce 2014, a nabízí vše, co moderní bydlení vyžaduje.
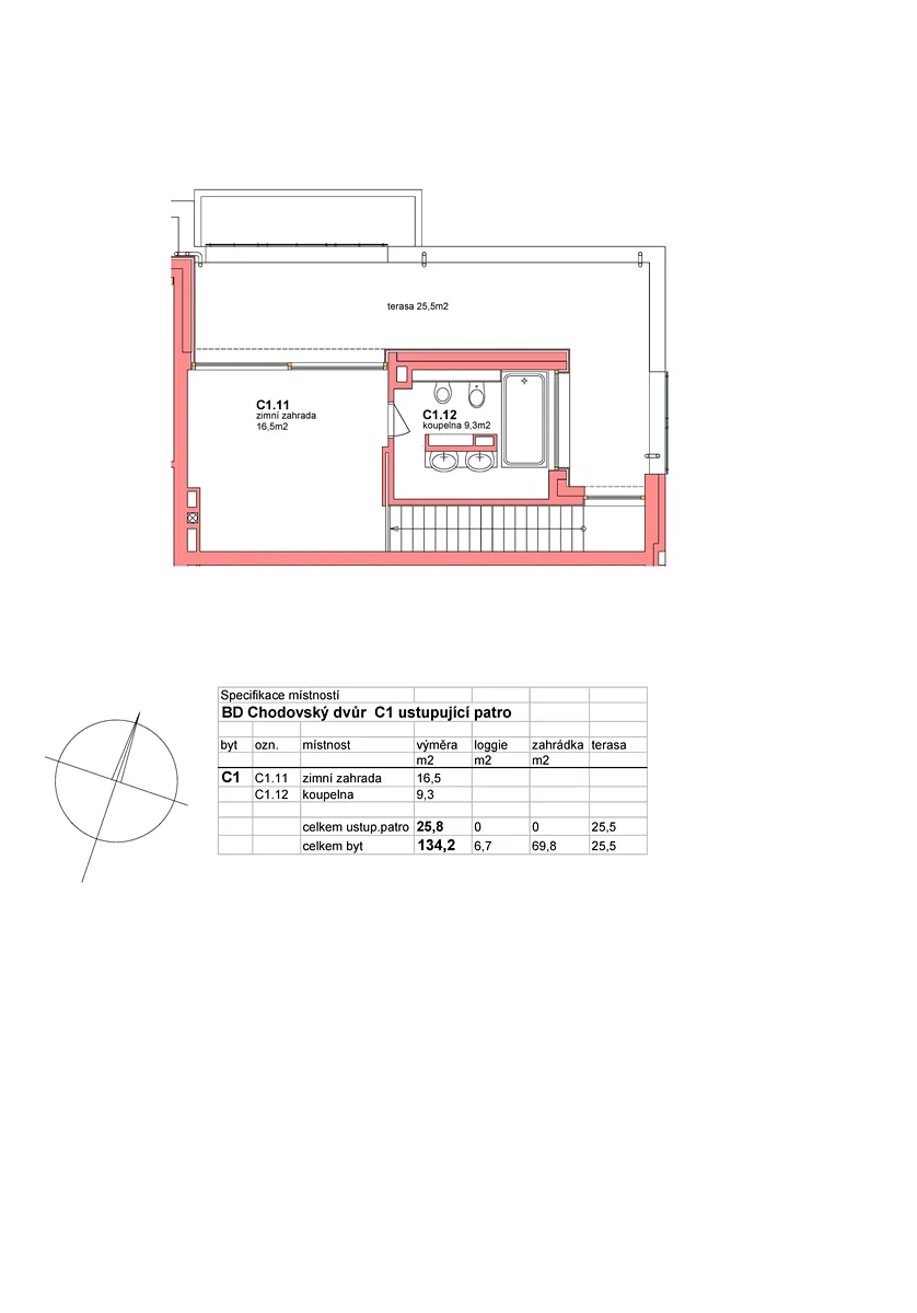
Jeho dispozice zahrnuje tři ložnice, z nichž každá má vlastní koupelnu, prostorný obývací pokoj propojený s plně vybavenou a moderní kuchyní, samostatnou toaletu, chodby a šatnu. Kuchyň je vybavena moderními spotřebiči, jako je varná deska, vestavěná lednice s mrazákem, mikrovlnná trouba, elektrická trouba a myčka nádobí. Obývací pokoj je prostorný, s přímým vstupem na zahradu s terasou o ploše 70 m², která poskytuje ideální místo pro trávení společných chvil na čerstvém vzduchu. Ložnice v posledním podlaží navíc disponuje terasou o velikosti 25,5 m², která nabízí nádherný výhled do sousedního parku. Byt dále disponuje uzavřenou lodžií (6,7 m²) a sklepem (4 m²). Součástí bytu jsou také dvě parkovací stání v garáži.
Byt se pronajímá kompletně zařízený nábytekem. Měsíční nájem bytu činí 70 000 Kč, vybavení domu za 20 000 Kč měsíčně. Kauce je stanovena na trojnásobek měsíčního nájmu a skládá se při podpisu smlouvy. Provize za zprostředkování činí výši jednoho měsíčního nájmu. V ceně nájmu nejsou zahrnuty poplatky SVJ ve výši 8 100 Kč a poplatky za spotřebu elektrické energie ve výši 1 200 Kč.
Poloha nabízí kompletní občanskou vybavenost školy, školky, obchody, restaurace a zdravotnická zařízení jsou na dosah. Dopravní dostupnost je vynikající, v blízkosti se nachází autobusy a metro C, což zajišťuje snadný přístup do ostatních částí Prahy.
Tento byt je ideální volbou pro ty, kteří hledají komfortní a reprezentativní bydlení v klidné části Prahy s rychlým spojením do centra města. Byt je k dispozici k pronájmu dlouhodobě (minimálně na rok) a je již kompletně zařízen, připraven k okamžitému nastěhování.
Objekt se nachází v městské části Chodov a nabízí všechny přednosti života ve velkoměstě, přičemž si zachovává pocit soukromí a pohodlí. Přijďte se přesvědčit o kvalitách tohoto jedinečného bytu, který může být brzy vaším novým domovem.

Makléř

Máte zájem o tento byt?

Tímto, v souladu s nařízením Evropského parlamentu a Rady (EU) 2016/679, v platném znění, prohlašuji, že mi je alespoň 16 let a uděluji tak svůj souhlas se zpracováním zadaných údajů (jméno, telefon, e-mail, ip adresa) společnosti B3 Technology, s.r.o., IČ: 07330600, se sídlem Novostavby 126/23, 435 11 Lom (správce dat), za účelem předání dotazu z tohoto formuláře Vámi vybranému inzerentovi a zpětného kontaktování mé osoby. Osobní údaje bude správce zpracovávat manuálně i automaticky přímo prostřednictvím svých zaměstnanců. Informace předané tímto formulářem budou uloženy v databázi správce maximálně po dobu 10 let. Odvolání souhlasu s uložením a zpracováním poskytnutých dat lze e-mailem na info@origo-reality.cz. V případě podezření na neoprávněné použití Vámi poskytnutých údajů máte právo předat podnět k šetření Úřadu pro ochranu osobních údajů. Více informací
Chystáte se prodat nemovitost?
Pomůžeme Vám!