Pronájem ordinace, České Budějovice, České Vrbné, 72 m2

České Vrbné, České Budějovice 2

502 Kč
/za metr čtvereční / měsíc
Získejte výhodnou HYPOTÉKU Chci hypotéku

Parametry nemovitosti

AdresaČeské Vrbné, České Budějovice 2
StavbaSkeletová
Stav objektuVelmi dobrý
Lokalita objektuRušná část obce
Užitná plocha72 m2
Třída energetické náročnostiB - Velmi úsporná
DopravaSilnice, MHD, Autobus
Výtah
Bezbarierový přístup

Origo partneři v Českých Budějovicích

Výkup a prodej starého nábytku

Popis

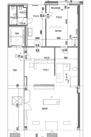
Představujeme Vám komerční prostory k pronájmu, ideální pro ordinace, situované v rušnější části obce v Českých Budějovicích. Tento moderní a funkční prostor se nachází v patrové skeletové budově, která byla zkolaudována v roce 2019 a pyšní se velmi dobrým stavem. Budova je součástí obchodní zástavby Globus a zajišťuje snadnou dostupnost jak silniční, tak městskou hromadnou dopravou.

Budoucí ordinaci o užitné ploše cca 72 m² přizpůsobíme na míru novému uživateli. Ordinace poskytuje dostatek prostoru pro vaše podnikatelské aktivity, její součástí může být například prodejní část s přístupem z ulice.

Tyto komerční prostory jsou k pronájmu nabízeny za nájemné 36.144 Kč měsíčně a služby vč. energií cca 8.590,- Kč měsíčně (záloha). Prostory budou k dispozici od února 2026. Pro více informací o této nemovitosti nebo sjednání prohlídky nás prosím kontaktujte.

Ceny jsou uvedené bez DPH.
Jistota je ve výši 2 měsíčního nájmu + služby + DPH.
Je možné pronajmout si konkrétní parkovací stání za 1.815,- Kč/měsíc vč. DPH.

Makléř

Máte zájem o tuto nemovistost?

Tímto, v souladu s nařízením Evropského parlamentu a Rady (EU) 2016/679, v platném znění, prohlašuji, že mi je alespoň 16 let a uděluji tak svůj souhlas se zpracováním zadaných údajů (jméno, telefon, e-mail, ip adresa) společnosti B3 Technology, s.r.o., IČ: 07330600, se sídlem Novostavby 126/23, 435 11 Lom (správce dat), za účelem předání dotazu z tohoto formuláře Vámi vybranému inzerentovi a zpětného kontaktování mé osoby. Osobní údaje bude správce zpracovávat manuálně i automaticky přímo prostřednictvím svých zaměstnanců. Informace předané tímto formulářem budou uloženy v databázi správce maximálně po dobu 10 let. Odvolání souhlasu s uložením a zpracováním poskytnutých dat lze e-mailem na info@origo-reality.cz. V případě podezření na neoprávněné použití Vámi poskytnutých údajů máte právo předat podnět k šetření Úřadu pro ochranu osobních údajů. Více informací
Chystáte se prodat nemovitost?
Pomůžeme Vám!