Pronájem kanceláře, Ostrava, Smetanovo náměstí, 59 m2

Smetanovo náměstí, Moravská Ostrava

9 000 Kč
/za měsíc
+ služby 7331 Kč, provize 1 měs nájem + DPH. Kauce 2 x měs. nájem.
Získejte výhodnou HYPOTÉKU Chci hypotéku

Parametry nemovitosti

AdresaSmetanovo náměstí, Moravská Ostrava
ID0197
StavbaCihlová
Stav objektuVelmi dobrý
Patro3. z 6
VybavenoNe
Užitná plocha59 m2
Zastavěná plocha866 m2
Třída energetické náročnostiD - Méně úsporná
Elektřina230V
OdpadVeřejná kanalizace
TelekomunikaceInternet
DopravaSilnice, MHD
VodaVodovod
Topné tělesoRadiátory
Zdroj topeníCentrální dálkové
Výtah
Bezbarierový přístup

Origo partneři v Ostravě

Popis

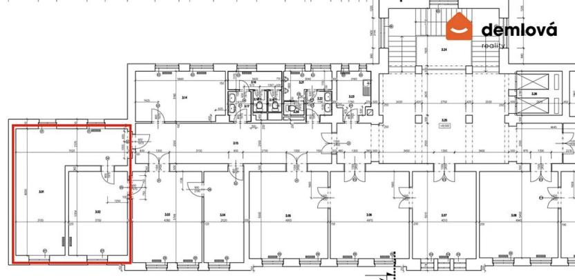
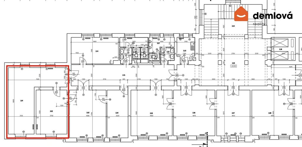
Nabízíme Vám k pronájmu atraktivní kancelářské prostory v komerční budově na Smetanově náměstí v centru Ostravy. Administrativní budova má recepci (po-pá 6-21h), přístup 24/7, každodenní úklid a dva výtahy. Celková výměra prostoru je 59 m2 a je rozdělen na 2 kanceláře (viz. půdorys ve fotogalerii). V jedné kanceláři je klimatizace. Sociální zázemí včetně kuchyňky je na chodbě u kanceláře. Kanceláře jsou zabezpečeny alarmem napojeným na PCO a kamerovým systémem. V bezprostřední blízkosti je dostatek parkovišť pro klienty. Nájem 9.000 Kč + služby 7331 Kč, provize 1 měs nájem + DPH. Kauce 2 x měs. nájem. Doporučuji prohlídku.

Makléř

Máte zájem o tuto nemovistost?

Tímto, v souladu s nařízením Evropského parlamentu a Rady (EU) 2016/679, v platném znění, prohlašuji, že mi je alespoň 16 let a uděluji tak svůj souhlas se zpracováním zadaných údajů (jméno, telefon, e-mail, ip adresa) společnosti B3 Technology, s.r.o., IČ: 07330600, se sídlem Novostavby 126/23, 435 11 Lom (správce dat), za účelem předání dotazu z tohoto formuláře Vámi vybranému inzerentovi a zpětného kontaktování mé osoby. Osobní údaje bude správce zpracovávat manuálně i automaticky přímo prostřednictvím svých zaměstnanců. Informace předané tímto formulářem budou uloženy v databázi správce maximálně po dobu 10 let. Odvolání souhlasu s uložením a zpracováním poskytnutých dat lze e-mailem na info@origo-reality.cz. V případě podezření na neoprávněné použití Vámi poskytnutých údajů máte právo předat podnět k šetření Úřadu pro ochranu osobních údajů. Více informací
Chystáte se prodat nemovitost?
Pomůžeme Vám!

Přihlášení k odběru

Nenechte si ujít nejnovější nabídky pronájmu kanceláří v Ostravě.