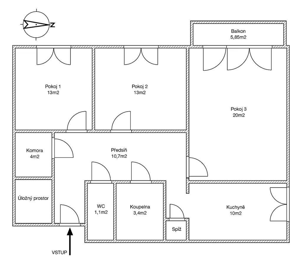
Prodej bytu 3+1, Brno, Kárníkova, 77 m2

Kárníkova, Brno, Řečkovice

8 300 000 Kč
/za nemovitost
Hypotéka od 37 096 Kč /měs. Chci hypotéku

Parametry bytu

AdresaKárníkova, Brno, Řečkovice
ID25112201
StavbaCihlová
Stav objektuVelmi dobrý
Patro4.
VlastnictvíOsobní
Užitná plocha77 m2
Balkon
Sklep

Origo partneři v Brně

Popis

Prodej útulného a světlého bytu 3+1 (77 m²) + balkon (6 m2) a sklep (6 m2) celkem 89 m2 – Brno, ul. Kárníkova

Hledáte pohodové bydlení v klidné brněnské lokalitě plné zeleně? Mám pro vás krásný, velmi příjemně řešený byt 3+1 o výměře 77 m² s balkónem, odkud je opravdu nádherný výhled do zeleně. Byt působí hned na první dojem vzdušně, čistě a domácky.

Dispozice, která dává smysl
Do bytu vstupujeme prostornou předsíní, ze které vedou samostatné, neprůchozí vstupy do všech pokojů, kuchyně, koupelny i samostatného WC. Jednotlivé místnosti nabízejí dostatek soukromí – ideální jak pro rodinu, tak třeba pro spolubydlení nebo práci z domova.

Hlavním benefitem je prostorná komora přímo v bytě – perfektní místo na domácí dílničku, šatnu nebo prostě velký úložný prostor, který se v bytech často hledá jen těžko.

Další výhody bytu
-Byt je světlý a útulný díky skvělému dispozičnímu řešení
-Koupelna s vanou, WC odděleně
-Kuchyně s dostatkem místa a příjemným výhledem
-Krásný balkón orientovaný do zeleně – ideální na ranní kávu nebo večerní odpočinek
-Okolí je zelené, tiché a velmi příjemné na každodenní život

Lokalita
Ulice Kárníkova je vyhledávané místo právě díky klidu, množství zeleně a bezproblémové dostupnosti. V pěším dosahu najdete vše potřebné – obchody, MHD, školy, školky i volnočasové aktivity. Perfektní kombinace dostupnosti města a pohodové atmosféry.

Makléř

Máte zájem o tento byt?

Tímto, v souladu s nařízením Evropského parlamentu a Rady (EU) 2016/679, v platném znění, prohlašuji, že mi je alespoň 16 let a uděluji tak svůj souhlas se zpracováním zadaných údajů (jméno, telefon, e-mail, ip adresa) společnosti B3 Technology, s.r.o., IČ: 07330600, se sídlem Novostavby 126/23, 435 11 Lom (správce dat), za účelem předání dotazu z tohoto formuláře Vámi vybranému inzerentovi a zpětného kontaktování mé osoby. Osobní údaje bude správce zpracovávat manuálně i automaticky přímo prostřednictvím svých zaměstnanců. Informace předané tímto formulářem budou uloženy v databázi správce maximálně po dobu 10 let. Odvolání souhlasu s uložením a zpracováním poskytnutých dat lze e-mailem na info@origo-reality.cz. V případě podezření na neoprávněné použití Vámi poskytnutých údajů máte právo předat podnět k šetření Úřadu pro ochranu osobních údajů. Více informací
Chystáte se prodat nemovitost?
Pomůžeme Vám!

Přihlášení k odběru

Nenechte si ujít nejnovější nabídky prodeje bytů 3+1 v Brně.