Prodej atypického bytu, Praha - Smíchov, Na Březince, 135 m2

Na Březince, Praha 5

21 900 000 Kč
/za nemovitost
Hypotéka od 97 880 Kč /měs. Chci hypotéku

Parametry bytu

AdresaNa Březince, Praha 5
ID022-NP02878
StavbaSmíšená
Stav objektuVelmi dobrý
Patro5. z 5
VybavenoNe
Lokalita objektuKlidná část obce
VlastnictvíOsobní
Užitná plocha135 m2
Zastavěná plocha331 m2
Podlahová plocha160 m2
Třída energetické náročnostiE - Nehospodárná
PlynPlynovod
OdpadVeřejná kanalizace
VodaVodovod
Terasa

Origo partneři v Praze 5

Stěhovací služby

Výkup a prodej starého nábytku

Popis

Objevte svůj nový domov prostřednictvím videoprohlídky tohoto výjimečného mezonetového bytu, který vás okouzlí svým jedinečným nádechem a prostorností!
Nachází se v klidné rezidenční lokalitě Malvazinky, obklopené vilovou zástavbou a zelení, s atmosférou, která připomíná spíše malebnou městskou čtvrť než rušné centrum.
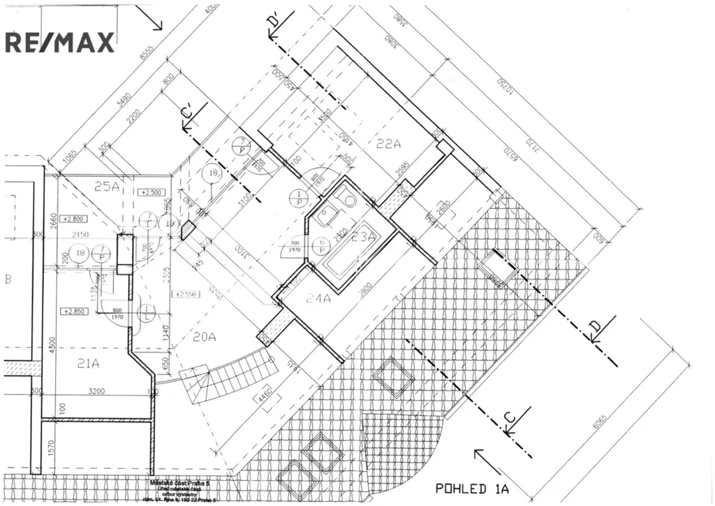
Exkluzivně Vám nabízíme tento velkorysý pětipokojový byt o rozloze 135 m2, v 4.patře, který zahrnuje prostornou vstupní halu, šatnu, pracovnu, dvě moderní koupelny (jedna s vanou, druhá se sprchovým koutem a toaletou) a samostatnou toaletu. Prostorný obývací pokoj je prosvětlený díky ateliérovým oknům, která plynule propojují prostor s otevřenou kuchyní a jídelnou.
Hlavním lákadlem bytu je však prostorná střešní terasa o velikosti 18m2, která je umístěna do vnitrobloku a nabízí výjimečný a nerušený výhled na celou Prahu. Výhledově bude společenství vlastníků jednat o instalaci výtahu.
Život v Smíchov City znamená žít v místě plném zeleně, sportovních aktivit a příležitostí. Tato multifunkční čtvrť nabízí moderní bydlení s bohatou občanskou vybaveností – od škol, lékařské péče po široký výběr obchodů, restaurací a kulturního vyžití. Na dosah ruky máte prestižní gymnázia, francouzské lyceum, multikina a atraktivní gastronomické a společenské prostory, jako je např. Manifesto Market.
Přijďte a zažijte harmonii moderního bydlení s historickým šarmem. Vaše nové štěstí může začít právě zde!
Kontaktujte makléřku a domluvte si prohlídku, ráda Vám vše ukáže.

Your Private Sanctuary Above the City 🌿
Imagine waking up in a quiet, green oasis that feels like a countryside villa, yet having the beating heart of Prague just moments away. Welcome to Malvazinky—where historical charm meets modern luxury.
We invite you to discover this exclusive 135 m² duplex, a home designed for those who appreciate space, light, and perspective. The interior charms with its studio-style windows, bathing the open-plan living and dining area in natural light. With a study, cloakroom, and two modern bathrooms, every inch of this 5-room residence is designed for comfort.
The Real Magic? Step out onto your private 18 m² roof terrace. Facing a peaceful courtyard, it offers a breathtaking, unobstructed panorama of Prague. It is the ultimate setting for morning coffees or sunset toasts.
Live Where Life Happens You aren't just buying an apartment; you are buying into the vibrant Smíchov lifestyle. From the French Lyceum and top-tier medical care to the culinary delights of Manifesto Market, everything you need is at your fingertips.
Contact the real estate agent and arrange a viewing; she will be happy to show you everything.

Makléř

Máte zájem o tento byt?

Tímto, v souladu s nařízením Evropského parlamentu a Rady (EU) 2016/679, v platném znění, prohlašuji, že mi je alespoň 16 let a uděluji tak svůj souhlas se zpracováním zadaných údajů (jméno, telefon, e-mail, ip adresa) společnosti B3 Technology, s.r.o., IČ: 07330600, se sídlem Novostavby 126/23, 435 11 Lom (správce dat), za účelem předání dotazu z tohoto formuláře Vámi vybranému inzerentovi a zpětného kontaktování mé osoby. Osobní údaje bude správce zpracovávat manuálně i automaticky přímo prostřednictvím svých zaměstnanců. Informace předané tímto formulářem budou uloženy v databázi správce maximálně po dobu 10 let. Odvolání souhlasu s uložením a zpracováním poskytnutých dat lze e-mailem na info@origo-reality.cz. V případě podezření na neoprávněné použití Vámi poskytnutých údajů máte právo předat podnět k šetření Úřadu pro ochranu osobních údajů. Více informací
Chystáte se prodat nemovitost?
Pomůžeme Vám!

Přihlášení k odběru

Nenechte si ujít nejnovější nabídky prodeje atypických bytů v Praze 5.