Pronájem bytu 2+1, Praha - Bubeneč, dr. Zikmunda Wintra, 91 m2 (ID: 1899278)

dr. Zikmunda Wintra, Praha, Bubeneč

47 000 Kč
/za měsíc
+ zálohy 900Kč/1osoba - 1.630Kč/2osoby, přepis elektřiny a plynu na nájemce, kauce 2 nájmy, bez DPH, bez poplatků, + provize RK
Získejte výhodnou HYPOTÉKU Chci hypotéku

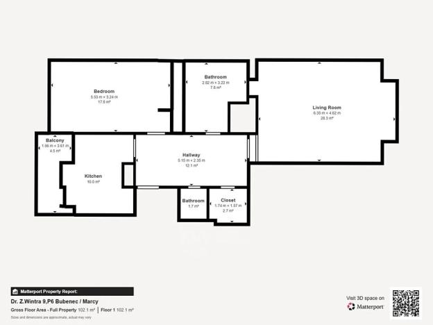
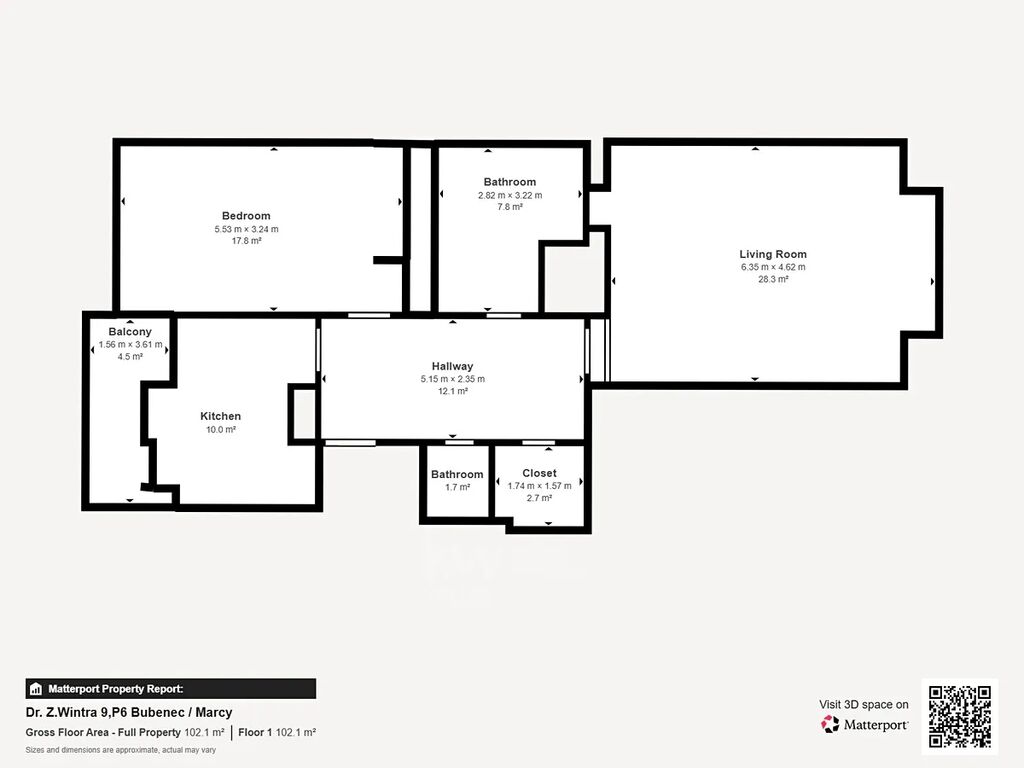
Parametry bytu

Adresadr. Zikmunda Wintra, Praha, Bubeneč
ID28799
StavbaCihlová
Stav objektuDobrý
Patro4.
VybavenoAno
Lokalita objektuCentrum obce
VlastnictvíOsobní
Užitná plocha91 m2
Třída energetické náročnostiG - Mimořádně nehospodárná
PlynPlynovod
OdpadVeřejná kanalizace
TelekomunikaceTelefon, Internet
DopravaDálnice, Silnice, MHD, Autobus
VodaVodovod
Topné tělesoRadiátory, Klimatizace
Zdroj topeníPlynový kondenzační kotel
Zdroj teplé vodyPlynový kondenzační kotel
Lodžie
Výtah

Origo partneři v Praze 6

Stěhovací služby

Výkup a prodej starého nábytku

Popis

Ve výhradním zastoupení majitele nabízím k pronájmu exkluzivní byt ve vyhledávané lokalitě Bubeneč, která se pyšní skvělou dopravní dostupností a veškerou občanskou vybaveností.

Výsledný luxusní interiér prošel předtím kompletní rekonstrukcí pod vedením interiérové designérky, která věnovala maximální pozornost detailům a vytvořila prostor plný elegance, komfortu a originality – inspirovaný stylem bydlení v New Yorku. Vysoké stropy dodávají bytu vzdušnost a jedinečnou atmosféru.

Dispozice bytu byla navržena s ohledem na maximální funkčnost a komfort. Všechny pokoje jsou neprůchozí. Prostorný obývací pokoj, který zahrnuje jak jídelní část se stolem pro 6 lidí a relaxační část pro posezení v křeslech u kávy anebo na rozkládací pohovce nejvyšší kvality u televize, která je připravená pro vaši případnou návštěvu na přespání. Celou atmosféru umocňuje dekorační krb, nástěnná svítidla a elegantní šestiramenný lustr.

Elegantní ložnice je s klimatizací a je vybavená designovou luxusní manželskou postelí s vysokými matracemi, nočními stolky s krásnými svítidly. Knihovna naproti posteli poskytuje dostatek prostoru pro uložení knih, fotek i dokumentů ve spodních skřínkách. Zde je umístněná i TV. Kosmetický stolek se zrcadlem, lampou a pohodlným křeslem, je další bonus v této prostorné ložnici. Úložné prostory jsou schované ve velké vestavné skříni.

Samostatná kuchyň je plně vybavená spotřebiči, pracovní deskou z Technistone, kávovarem Nespresso a varnou konvicí, jídelním setem. Snídaňový stůl pro 4 osoby doplňují prostor, který se otevírá na prostornou lodžii s výhledem do klidného vnitrobloku, ideální pro relaxaci.

Stylová koupelna je vskutku prémiová, jak se sprchovým koutem, tak s velkou vanou, elegantním umyvadlem se šuplíkovou skřínkou se zrcadlem s postranními svítidly. Toaletu doplňuje bidetová sprška. Ve vestavné skříni se ukrývá pračka a sušička. Další toaleta je v samostatné místnosti s umyvadlem a otopným žebříkem.

Prostorná vstupní hala podtrhuje nadčasovou eleganci celého bytu, doplněná velkým designovým zrcadlem, nástěnnými svítidly a stylovým lustrem. Praktickou součástí je samostatná walk-in šatna s množstvím úložného prostoru. Celý byt zdobí kvalitní dřevěné parkety, které umocňují luxusní atmosféru.

Součástí pronájmu je praktický sušák na prádlo, žehlící prkno a žehlička, lux, schůdky a žebřík.

Ideální pro náročné klienty, kteří hledají kombinaci prestiže, pohodlí a moderního bydlení v srdci Prahy 6.

Pro zajištění exkluzivní prezentace a osobní prohlídky mne prosím kontaktujte. Tento jedinečný byt čeká právě na Vás.

Makléř

Máte zájem o tento byt?

Tímto, v souladu s nařízením Evropského parlamentu a Rady (EU) 2016/679, v platném znění, prohlašuji, že mi je alespoň 16 let a uděluji tak svůj souhlas se zpracováním zadaných údajů (jméno, telefon, e-mail, ip adresa) společnosti B3 Technology, s.r.o., IČ: 07330600, se sídlem Novostavby 126/23, 435 11 Lom (správce dat), za účelem předání dotazu z tohoto formuláře Vámi vybranému inzerentovi a zpětného kontaktování mé osoby. Osobní údaje bude správce zpracovávat manuálně i automaticky přímo prostřednictvím svých zaměstnanců. Informace předané tímto formulářem budou uloženy v databázi správce maximálně po dobu 10 let. Odvolání souhlasu s uložením a zpracováním poskytnutých dat lze e-mailem na info@origo-reality.cz. V případě podezření na neoprávněné použití Vámi poskytnutých údajů máte právo předat podnět k šetření Úřadu pro ochranu osobních údajů. Více informací
Chystáte se prodat nemovitost?
Pomůžeme Vám!

Přihlášení k odběru

Nenechte si ujít nejnovější nabídky pronájmu bytů 2+1 v Praze 6.