Prodej bytu 3+1, Ostrava, náměstí Antonie Bejdové, 73 m2 (ID: 1898974)

náměstí Antonie Bejdové, Ostrava, Poruba

5 500 000 Kč
/za nemovitost
Náklady na bydlení činí 5.000,- Kč/ měsíc/1 osoba
Hypotéka od 24 582 Kč /měs. Chci hypotéku

Parametry bytu

Náklady na bydlení5 000
Adresanáměstí Antonie Bejdové, Ostrava, Poruba
ID0719
StavbaPanelová
Stav objektuPo rekonstrukci
Patro4. z 12
VybavenoČástečně
Lokalita objektuKlidná část obce
VlastnictvíDružstevní
Užitná plocha73 m2
Třída energetické náročnostiC - Úsporná
Elektřina230V
OdpadVeřejná kanalizace
KomunikaceAsfaltová
TelekomunikaceInternet
DopravaMHD
VodaVodovod
Topné tělesoRadiátory
Zdroj topeníÚstřední dálkové
Lodžie
Výtah
Převod do OV

Origo partneři v Ostravě

Popis

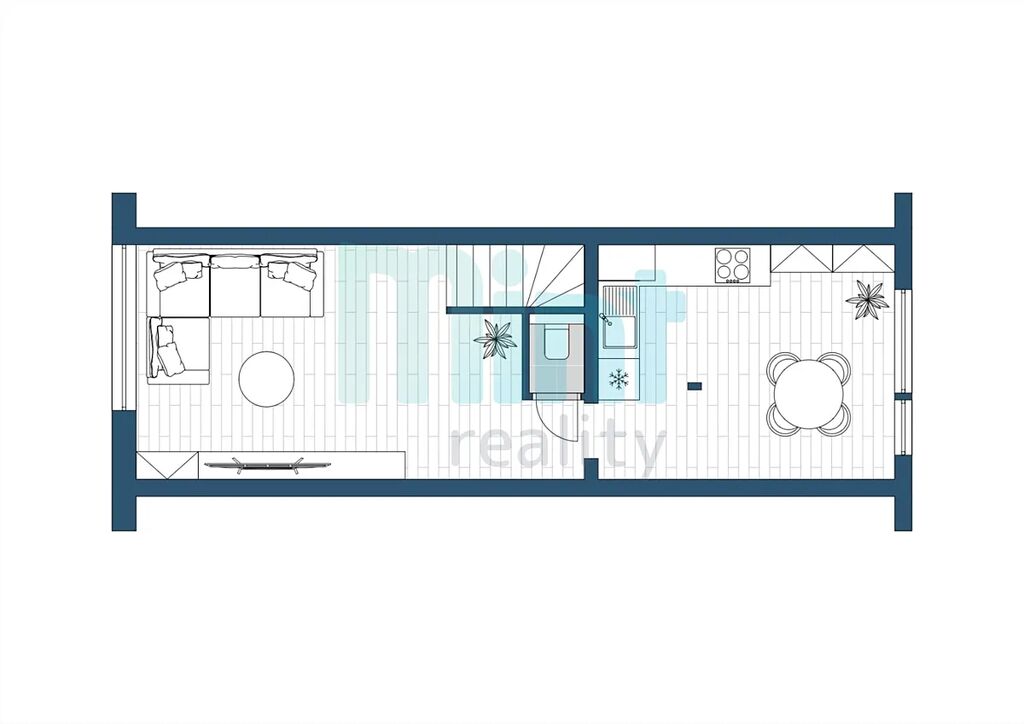
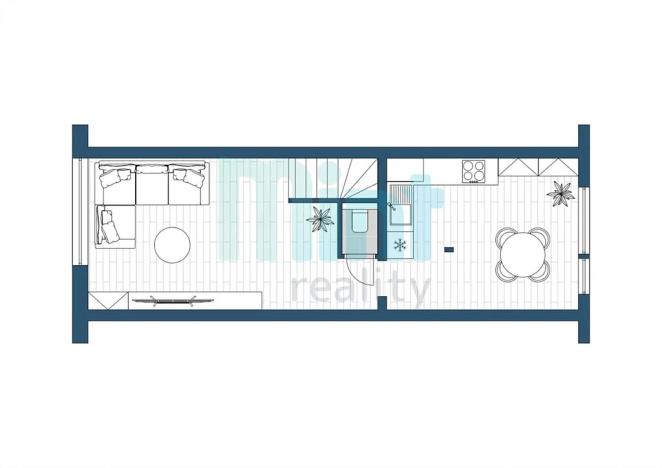
Nabízíme k prodeji mezonetový byt o dispozici 3 + 1 [73 m²] umístěný na čtvrtém podlaží dvanáctipatrového panelového domu, nacházejícího se na adrese náměstí Antonie Bejdové v Ostravě-Porubě.

Právě dokončena nadstandardní rekonstrukce, která zahrnovala nové rozvody elektřiny, sádrové omítky a vinylové podlahy, panelové jádro, sanitární obklady, nová topná tělesa v celém bytě a interiérové dveře, což zajistí komfortní a moderní bydlení.

Byt je rozdělen do dvou úrovní. Po vstupu do bytu se ocitnete v útulné kuchyni, která je vybavena elektrickou indukční varnou deskou, vestavěnou elektrickou troubou a mikrovlnnou troubou. Disponuje také kuchyňským ostrůvkem, díky němu má kuchyň moderní vzhled a dostatek úložného místa. Kuchyň má také přípojky na myčku a pračku, což usnadňuje běžný provoz domácnosti. Ve spodní části bytu se nachází prostorný a slunný obývací pokoj, ideální pro odpočinek a rodinné posezení, a toaleta.

Horní část bytu nabízí dva pokoje, které poskytují dostatek soukromí. Z jednoho z těchto pokojů je přístup na zasklenou lodžii, která je skvělým místem pro relaxaci a užívání si výhledu do okolí. Koupelna je vybavena moderním sprchovým koutem, umyvadlem a je zde také umístěna toaleta.

Vstup do bytu je z uzamykatelné chodbičky, tzv. pavlače, a v domě se nacházejí dva výtahy. Lokalita, ve které se nemovitost nachází, je velmi klidná a nabízí dostatek zeleně. V blízkosti jsou mateřské školky, základní školy a také Vysoká škola báňská – Technická univerzita Ostrava. Nakupování je pohodlné díky blízkosti obchodního střediska Duha, supermarketu a lékárny. MHD zastávka je snadno dostupná, což usnadňuje každodenní cestování.

Okolí nabízí krásné procházky, včetně lesa, který vede do Plesné a Pustkoveckého Parku.

Uvedená cena je včetně provize a právního servisu.
Náš tým finančních poradců Vám vyřeší otázku financování.
V případě zájmu o prohlídku nás neváhejte kontaktovat.

Makléř

Máte zájem o tento byt?

Tímto, v souladu s nařízením Evropského parlamentu a Rady (EU) 2016/679, v platném znění, prohlašuji, že mi je alespoň 16 let a uděluji tak svůj souhlas se zpracováním zadaných údajů (jméno, telefon, e-mail, ip adresa) společnosti B3 Technology, s.r.o., IČ: 07330600, se sídlem Novostavby 126/23, 435 11 Lom (správce dat), za účelem předání dotazu z tohoto formuláře Vámi vybranému inzerentovi a zpětného kontaktování mé osoby. Osobní údaje bude správce zpracovávat manuálně i automaticky přímo prostřednictvím svých zaměstnanců. Informace předané tímto formulářem budou uloženy v databázi správce maximálně po dobu 10 let. Odvolání souhlasu s uložením a zpracováním poskytnutých dat lze e-mailem na info@origo-reality.cz. V případě podezření na neoprávněné použití Vámi poskytnutých údajů máte právo předat podnět k šetření Úřadu pro ochranu osobních údajů. Více informací
Chystáte se prodat nemovitost?
Pomůžeme Vám!

Přihlášení k odběru

Nenechte si ujít nejnovější nabídky prodeje bytů 3+1 v Ostravě.