Prodej rodinného domu, Loza, 98 m2 (ID: 1898919)

Loza

6 980 000 Kč
/za nemovitost
včetně DPH, včetně poplatků, včetně provize, včetně právního servisu
Hypotéka od 31 196 Kč /měs. Chci hypotéku

Parametry domu

AdresaLoza
ID00099
StavbaDřevěná
Stav objektuNovostavba
VybavenoNe
Druh objektuSamostatný
Lokalita objektuKlidná část obce
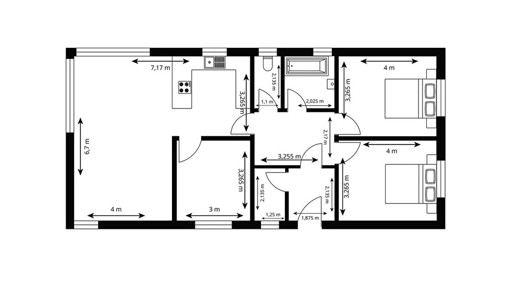
Užitná plocha98 m2
Plocha pozemku726 m2
Třída energetické náročnostiB - Velmi úsporná
Ukazatel energetické náročnosti133 kWh/m2 za rok
Elektřina230V
OdpadVeřejná kanalizace
KomunikaceAsfaltová
TelekomunikaceInternet
DopravaVlak, Dálnice, Silnice, Autobus
VodaVodovod
Topné tělesoPodlahové vytápění, Krb
Zdroj teplé vodyTepelné čerpadlo
Výtah
Bezbarierový přístup
Parkování

Origo partneři v Loze

Podlahy

Stěhovací služby

Popis

Prodej RD BUNGALOV užitná plocha 98.3 m², pozemek 750 m2 v obci LOZA , Plzeň - sever
CENA VČETNĚ POZEMKU

Nabídka rodinného bydlení dřevostavby BUNGALOVU , celkem 5 rodinných domů v projektu RODINNÉ DOMY LOZA :

5 bunglalovů velikosti 4 kk užitné plochy 98.3 m2 pozemky o velikosti 726 m2 - 762 m2
V projektu lze realizovat bungalov dvou tvarů - klasický a "L" různých velikostí užitných ploch dle výběru.

Součástí kupní ceny je:
- pozemek
- obvodové příčky, fasáda včetně zateplení
- vnitřní příčky, vnitřní omítky
- střecha krov dřevěná konstrukce, krytina taška, svody okapy
- podhledy
- okna s trojskly , dveře vstup plast s IZ trojsky
- obklady, dlažba , sanita a zařiz. předměty wc a koupelen - výběr dle standardů projektu
- podlahové topení celého, tep.čerpadlo Viessmann (voda - vzduch),
- vodovod, odpady městská kanalizace ,vodoměr, připojení domu pro kompletní provoz
- elektro, rozvody a kompletace , přípr.pro elekt. rozvody v kuchyní, zásuvka pračky a sušičky, slaboproud NP a 2. NP, zvonek,
- venk. úpravy pozemku srovnání terénu bez příprav osevu trávy
- oplocení pozemku
- přípojky energií voda a elektřina kompl. napojení domu a uvedení do provozu, retenční zádržná nádrž dešť. vody 6m3
- příjezdová komunikace – viz vizualizace situace projektu

- nadstandardní klientské změny jsou možné

Součástí kupní ceny není :
- dveře interiér, podlahová krytina lepený vinyl, dlažba, venkovní okap chodník - tyto položky lze realizovat dle standardů u kvalitních dodavatelů projektu za cenu 300.000 Kč, kdy je tedy cena domu pro kompletní dokončení " na klíč" 7.280.000 Kč včetně DPH

Dále v ceně domu není :
- kuchyňská linka, krb , krbová kamna , předokenní rolety a jejich příprava
– přípr. TV a dat. antény, koaxiál. kabel a TV zásuvky v obýv. pokoji a v pokojích
- zabezpečovací zařízení včetně přípravy, klimatizace, rekoperace a další případné technologie

- v nadstandardu je možné realizovat přípr. FVE panelů střecha, rekuperace, přípr. a realizaci bezpečnost. systému domu, přípr. pozemku pro osev trávy, realizace zahrady, osazení krbu/krb kamen, výrobu kuchyň linky vč. spotřebičů, klimatizaci, internet dat kabel, a mnoho dalšího

- na pozemku lze vybudovat park. stání či garáž, zastavěnost umožňuje využití pozemku pro další drobné stavby

Veškerá projektová dokumentace, detailní specifikace použitých materiálů a technologií, katalogy standardů podlah, sanity, obkladů a interiér dveří projektu k náhledu u realitní makléřky či na webu tohoto projektu.

Vizualizace a plánky půdorysů jsou orientační - zájemci budou předány přesné plány a specifikace.

Velmi nízké provozní náklady domu PENB třídy B - kompletní PENB bude aktualizovat v roce 2026 a bude předán při podpisu smluvní dokumentace. Předpokládáme nižší číslo energetické spotřeby.

Kouzelná krajina okolních lesů a přírody, cyklostezky a možnosti sport aktivit i relaxace, blízkost veškeré občan vybavenosti.

Dojezd města Plzně cca 15 min , město Dolní Bělá a okolní města 5 min - lékaři ,obchody , školka , škola a další.

Možnost financování hypotečním úvěrem 80 – 90 % LVT se zvýhodněnou úrok sazbou.

Makléř

Máte zájem o tento dům?

Tímto, v souladu s nařízením Evropského parlamentu a Rady (EU) 2016/679, v platném znění, prohlašuji, že mi je alespoň 16 let a uděluji tak svůj souhlas se zpracováním zadaných údajů (jméno, telefon, e-mail, ip adresa) společnosti B3 Technology, s.r.o., IČ: 07330600, se sídlem Novostavby 126/23, 435 11 Lom (správce dat), za účelem předání dotazu z tohoto formuláře Vámi vybranému inzerentovi a zpětného kontaktování mé osoby. Osobní údaje bude správce zpracovávat manuálně i automaticky přímo prostřednictvím svých zaměstnanců. Informace předané tímto formulářem budou uloženy v databázi správce maximálně po dobu 10 let. Odvolání souhlasu s uložením a zpracováním poskytnutých dat lze e-mailem na info@origo-reality.cz. V případě podezření na neoprávněné použití Vámi poskytnutých údajů máte právo předat podnět k šetření Úřadu pro ochranu osobních údajů. Více informací
Chystáte se prodat nemovitost?
Pomůžeme Vám!

Přihlášení k odběru

Nenechte si ujít nejnovější nabídky prodeje rodinných domů v Loze.