Prodej rodinného domu, Podkopná Lhota, 305 m2 (ID: 1898802)

Podkopná Lhota

1 290 000 Kč
/za nemovitost
Hypotéka od 5 766 Kč /měs. Chci hypotéku

Parametry domu

AdresaPodkopná Lhota
ID21116
StavbaCihlová
Stav objektuPřed rekonstrukcí
Druh objektuSamostatný
Lokalita objektuKlidná část obce
Užitná plocha305 m2
Zastavěná plocha305 m2
Plocha pozemku344 m2
Třída energetické náročnostiB - Velmi úsporná
Ukazatel energetické náročnosti816 kWh/m2 za rok
Elektřina400V
OdpadSeptik
KomunikaceAsfaltová
DopravaSilnice
VodaMístní zdroj vody
Výtah
Bezbarierový přístup

Origo partneři v Podkopné Lhotě

Popis

Realitka Green ® vám zprostředkuje prodej samostatně stojícího rodinného domu v obci Podkopná Lhota, vzdálené 17 km od města Zlín.

Celková plocha je 344 m2.

Nachází se ve velmi klidné lokalitě, v blízkosti lesa.

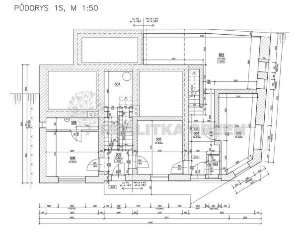
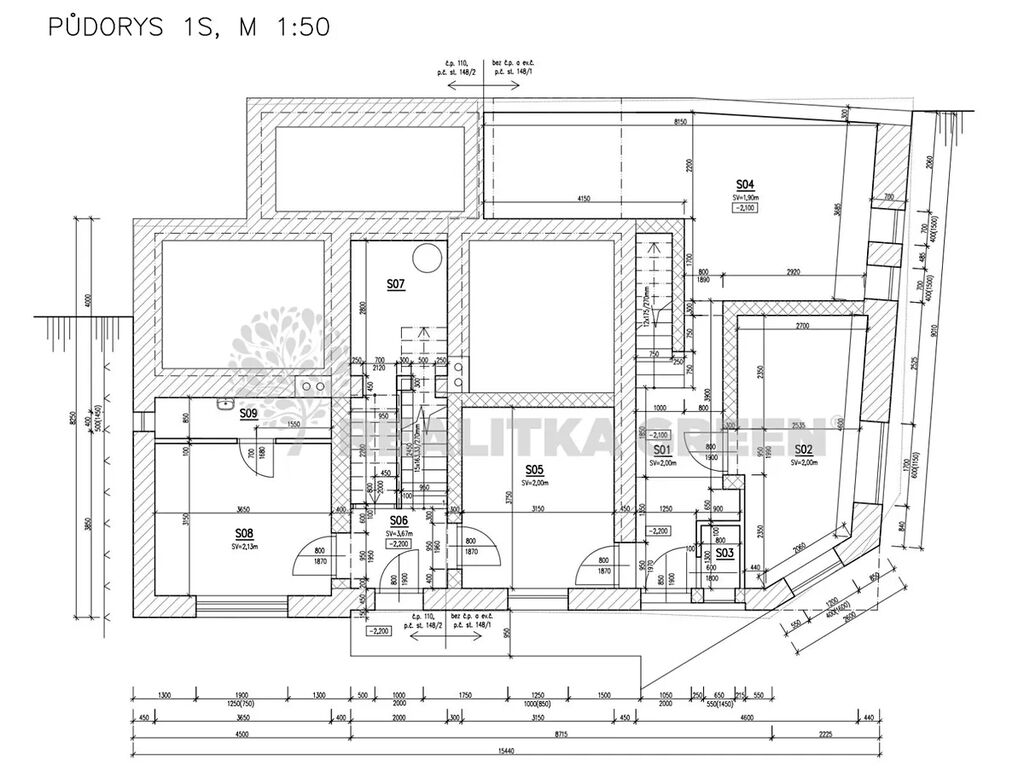
Dům je částečně podsklepený, určen k celkové rekonstrukci. Vhodný jak k bydlení, tak k přebudování na komerční využití, popř. ubytování. K dispozici jsou 3 podlaží. Zdivo cihla, tvárnice. Střecha plechová s možností půdní vestavby.

IS: elektřina, vlastní studna, plynová a vodovodní v přípojka v blízkosti domu.

Veškerá dokumentace k domu. (půdorys, řez domu, PENB). Energetická náročnost budovy: B-velmi úsporná.

V blízkosti je rekreační středisko, lyžařský vlek.

Tato nemovitost je ideální k čerpání dotace v rámci výzvy "Oprav dům po babičce", kde získáte zálohově 50% z nákladů na rekonstrukci (zateplení, fasády, výměna oken a dveří, zateplení střechy, fotovoltaika, tepelné čerpadlo, atd.) Dotace je vyplácena najednou, ještě před realizací rekonstrukce. Výše dotace může činit až 1 milion korun + možné bonusy.

K dispozici ihned. V případě zájmu zajistíme výhodné financování.

Makléř

Máte zájem o tento dům?

Tímto, v souladu s nařízením Evropského parlamentu a Rady (EU) 2016/679, v platném znění, prohlašuji, že mi je alespoň 16 let a uděluji tak svůj souhlas se zpracováním zadaných údajů (jméno, telefon, e-mail, ip adresa) společnosti B3 Technology, s.r.o., IČ: 07330600, se sídlem Novostavby 126/23, 435 11 Lom (správce dat), za účelem předání dotazu z tohoto formuláře Vámi vybranému inzerentovi a zpětného kontaktování mé osoby. Osobní údaje bude správce zpracovávat manuálně i automaticky přímo prostřednictvím svých zaměstnanců. Informace předané tímto formulářem budou uloženy v databázi správce maximálně po dobu 10 let. Odvolání souhlasu s uložením a zpracováním poskytnutých dat lze e-mailem na info@origo-reality.cz. V případě podezření na neoprávněné použití Vámi poskytnutých údajů máte právo předat podnět k šetření Úřadu pro ochranu osobních údajů. Více informací
Chystáte se prodat nemovitost?
Pomůžeme Vám!

Přihlášení k odběru

Nenechte si ujít nejnovější nabídky prodeje rodinných domů v Podkopné Lhotě.