Prodej rodinného domu, Librantice, 96 m2

Librantice

7 449 000 Kč
/za nemovitost
v ceně kompletní právní služby, včetně vkladů kupních smluv na katastr, neplatíte provizi za zprostředkování, včetně DPH
Hypotéka od 33 293 Kč /měs. Chci hypotéku

Parametry domu

AdresaLibrantice
ID01383
StavbaCihlová
Stav objektuVe výstavbě
Druh objektuSamostatný
Užitná plocha96 m2
Plocha pozemku421 m2
Třída energetické náročnostiB - Velmi úsporná
Ukazatel energetické náročnosti78 kWh/m2 za rok

Origo partneři v Libranticích

Popis

Společnost CANABA v současné době kompletně dokončuje výstavbu lokality Librantice, ve které Vám nabízíme prodej nízkoenergetických rodinných domů UNO, které se již několik let těší největší oblibě.

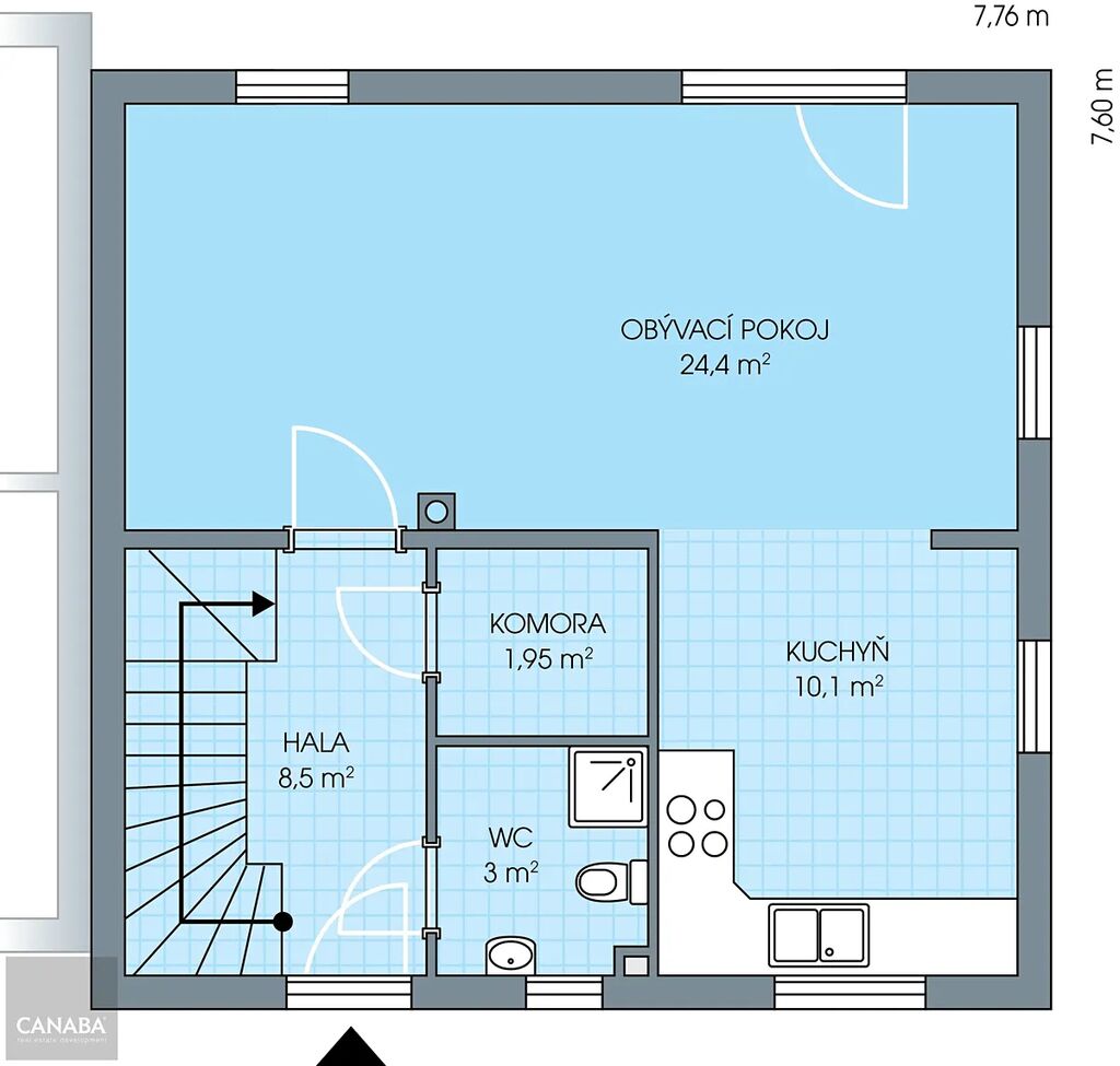
Dispozice domu 4+1 s užitnou plochou téměř 100 m², s velkou zahradou 421 m² poskytují dostatek prostoru pro spokojený život celé rodiny.

V přízemí se nachází vstupní hala, prostorný obývací pokoj s terasovými dveřmi na zahradu a účelně oddělenou kuchyní. Nechybí zde krbový komín, rodinný dům je koncipován tak, aby byl nízkoenergetický a zajistil svým majitelům minimální náklady na vytápění. Kromě toho je v přízemí praktická koupelna se sprchovým koutem a toaletou a komora připravená pro umístění pračky.

V patře je hlavní ložnice, dva samostatné dětské pokoje a další koupelna s vanou a druhou toaletou. Jednotlivé místnosti propojuje galerie, kam je možné umístit šatník.

Dům bude za uvedenou cenu kompletně stavebně dokončen, nyní je připraven k individuálnímu výběru interiéru - obkladů, dlažeb, zařizovacích předmětů, podlahových krytin a interiérových dveří. Nový majitel si dům může dokončit podle svých představ. Samozřejmě je možné si dokončení výše uvedených prací přiobjednat, stavebně pak bude dům dokončen do 2 měsíců od výběru interiéru. V rámci komplexních služeb a pro vaše pohodlí zajistíme zcela zdarma kolaudaci i zápis dokončené stavby do katastru nemovitostí.

Pro práci, studium i zábavu jsou koncové rozvody multimédií ve všech pokojích.

Cena je konečná včetně pozemku, přístupového chodníku, parkovacích míst, inženýrských sítí na pozemku a DPH.

Součástí našich služeb je zajištění nejvýhodnější hypotéky, a to zdarma, a zajištění zvýhodněné ceny kuchyňské linky zn. Oresi včetně spotřebičů.

Strategická poloha Librantic zajišťuje svým obyvatelům klidný život v přírodě bez ruchu města, které je však dostupné jen 10 minut cesty autem. Můžete si tedy dopřát klidu s možností využívat všechny benefity, které velké krajské město Hradec Králové nabízí.

Výborná dopravní dostupnost – přímé autobusové spojení s Hradcem Králové, případně je možné využít cyklostezku až do centra města. Nechybí ani kompletní občanská vybavenost – v obci se nachází základní a mateřská škola, samoobsluha, obecní úřad, zubní ordinace, praktický lékař, knihovna, tenisové a volejbalové kurty, hospůdka "Na Hřišti", vyhlášený golfový areál "Na Vrších" s golfovou školou pro děti i dospělé.

Přijeďte se podívat do Centra vzorových domů, navštivte náš nový vzorový dům UNO a projděte si dům svých snů na vlastní oči. Objednat se můžete na našich webových stránkách Canaba.

Makléř

Máte zájem o tento dům?

Tímto, v souladu s nařízením Evropského parlamentu a Rady (EU) 2016/679, v platném znění, prohlašuji, že mi je alespoň 16 let a uděluji tak svůj souhlas se zpracováním zadaných údajů (jméno, telefon, e-mail, ip adresa) společnosti B3 Technology, s.r.o., IČ: 07330600, se sídlem Novostavby 126/23, 435 11 Lom (správce dat), za účelem předání dotazu z tohoto formuláře Vámi vybranému inzerentovi a zpětného kontaktování mé osoby. Osobní údaje bude správce zpracovávat manuálně i automaticky přímo prostřednictvím svých zaměstnanců. Informace předané tímto formulářem budou uloženy v databázi správce maximálně po dobu 10 let. Odvolání souhlasu s uložením a zpracováním poskytnutých dat lze e-mailem na info@origo-reality.cz. V případě podezření na neoprávněné použití Vámi poskytnutých údajů máte právo předat podnět k šetření Úřadu pro ochranu osobních údajů. Více informací
Chystáte se prodat nemovitost?
Pomůžeme Vám!

Přihlášení k odběru

Nenechte si ujít nejnovější nabídky prodeje rodinných domů v Libranticích.