Prodej rodinného domu, Roupov, 525 m2

Roupov

2 770 000 Kč
/za nemovitost
Hypotéka od 12 380 Kč /měs. Chci hypotéku

Parametry domu

AdresaRoupov
ID250180
StavbaCihlová
Stav objektuDobrý
VybavenoNe
Druh objektuSamostatný
Užitná plocha525 m2
Zastavěná plocha268 m2
Podlahová plocha605 m2
Plocha pozemku1 m2
Třída energetické náročnostiG - Mimořádně nehospodárná
Elektřina230V
OdpadJímka
KomunikaceAsfaltová
DopravaSilnice
VodaVodovod
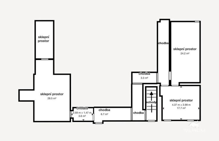
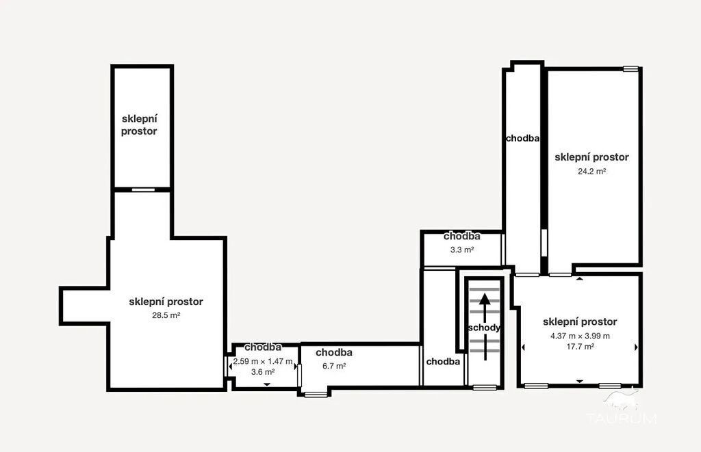
Sklep

Origo partneři v Roupovu

Podlahy

Stěhovací služby

Popis

Představuji k prodeji prostorný zděný dům nacházející se na adrese Roupov 36.

Podívejte se také na samostatnou stránku domu – odkaz ve videoprohlídce.
Kompletní představu o dispozici domu je možné si udělat z 3D virtuální prohlídky zde v inzerci.

Dispozice:
Dům je dvoupodlažní a kompletně podsklepený. K dispozici je také velký půdní prostor ve velmi dobrém stavu, který nabízí možnost vybudovat další obytné místnosti. V domě je celkem 9 místností. Celková podlahová plocha domu (bez sklepa a půdy) je 196 m². Sklepní prostory mají 108 m² a půda 156 m².

Technické informace:
Dům je zděný a napojený na elektřinu a obecní vodovod. Kanalizace je svedena do prostorné jímky o objemu přibližně 50 m³ umístěné přímo před domem. Plynová přípojka je zakončena ve vnější zdi domu. Okna jsou dřevěná a střecha je pokryta pálenými taškami. Aktuálně v domě není funkční vytápění, je tedy nutné jej vybudovat. Síla hlavního jističe je 25 ampérů. Příjezd až k domu je zajištěn po obecní komunikaci.

Dům je vhodný například pro vybudování kanceláří, sídla firmy, skladových prostor nebo jej lze přestavět na několik bytových jednotek.

Pro koupi domu zajišťuji kompletní realitní a právní servis a financování hypotečním úvěrem.
Kontaktujte mě, prosím, pro domluvení prohlídky:
Jan Štěpánek
TAURUM reality

PENB není k dispozici, proto uvádíme třídu G.
Uvedené výměry jsou orientační.

Makléř

Máte zájem o tento dům?

Tímto, v souladu s nařízením Evropského parlamentu a Rady (EU) 2016/679, v platném znění, prohlašuji, že mi je alespoň 16 let a uděluji tak svůj souhlas se zpracováním zadaných údajů (jméno, telefon, e-mail, ip adresa) společnosti B3 Technology, s.r.o., IČ: 07330600, se sídlem Novostavby 126/23, 435 11 Lom (správce dat), za účelem předání dotazu z tohoto formuláře Vámi vybranému inzerentovi a zpětného kontaktování mé osoby. Osobní údaje bude správce zpracovávat manuálně i automaticky přímo prostřednictvím svých zaměstnanců. Informace předané tímto formulářem budou uloženy v databázi správce maximálně po dobu 10 let. Odvolání souhlasu s uložením a zpracováním poskytnutých dat lze e-mailem na info@origo-reality.cz. V případě podezření na neoprávněné použití Vámi poskytnutých údajů máte právo předat podnět k šetření Úřadu pro ochranu osobních údajů. Více informací
Chystáte se prodat nemovitost?
Pomůžeme Vám!

Přihlášení k odběru

Nenechte si ujít nejnovější nabídky prodeje rodinných domů v Roupovu.