Prodej rodinného domu, Mirotice, K Miškovci, 107 m2

K Miškovci, Mirotice, okres písek

7 999 980 Kč
/za nemovitost
možnost odpočtu DPH
Hypotéka od 35 755 Kč /měs. Chci hypotéku

Parametry domu

AdresaK Miškovci, Mirotice, okres písek
ID971115
StavbaDřevěná
Stav objektuNovostavba
Typ objektuPatrový
Druh objektuŘadový
VlastnictvíOsobní
Užitná plocha107 m2
Zastavěná plocha68 m2
Podlahová plocha107 m2
Plocha pozemku615 m2
Třída energetické náročnostiB - Velmi úsporná
Elektřina230V
OdpadVeřejná kanalizace
VodaVodovod
Výtah
Parkování

Origo partneři v Miroticích

Popis

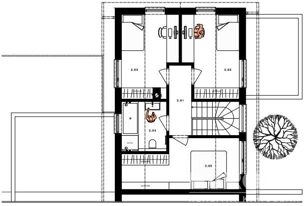
Představujeme vám okouzlující rodinný dům ve vesnici Mirotice, situovaný v krásném Jihočeském kraji, na adrese K Miškovci. Tato novostavba o dispozici 5+kk a celkové ploše 107 m² nabízí komfortní bydlení v osobním vlastnictví.

Dům se pyšní dvěma nadzemními podlažími a je postaven na zahradě o rozloze 615 m², která poskytuje dostatek prostoru pro relaxaci, rodinné aktivity či pěstování zahrady.


V blízkosti domu se nachází veškerá občanská vybavenost školy, školky, obchody, restaurace a kavárny. Pro milovníky přírody a aktivní odpočinek je v blízkosti několik turistických tras a cyklostezek.

Pokud hledáte místo, kde budete moci žít v klidné a přátelské lokalitě s výbornou dostupností a zároveň moderně vybaveným a energeticky úsporným domovem, tento dům v Miroticích by mohl být tou pravou volbou pro vás.

Je to jedinečná příležitost vlastnit krásný domov v žádané lokaci, který kombinuje tradiční architekturu s moderními prvky a nabízí pohodlné bydlení pro celou rodinu. Neváhejte nás kontaktovat pro více informací nebo domluvení prohlídky.

Dům bude dokončen v létě 2026.

Makléř

Máte zájem o tento dům?

Tímto, v souladu s nařízením Evropského parlamentu a Rady (EU) 2016/679, v platném znění, prohlašuji, že mi je alespoň 16 let a uděluji tak svůj souhlas se zpracováním zadaných údajů (jméno, telefon, e-mail, ip adresa) společnosti B3 Technology, s.r.o., IČ: 07330600, se sídlem Novostavby 126/23, 435 11 Lom (správce dat), za účelem předání dotazu z tohoto formuláře Vámi vybranému inzerentovi a zpětného kontaktování mé osoby. Osobní údaje bude správce zpracovávat manuálně i automaticky přímo prostřednictvím svých zaměstnanců. Informace předané tímto formulářem budou uloženy v databázi správce maximálně po dobu 10 let. Odvolání souhlasu s uložením a zpracováním poskytnutých dat lze e-mailem na info@origo-reality.cz. V případě podezření na neoprávněné použití Vámi poskytnutých údajů máte právo předat podnět k šetření Úřadu pro ochranu osobních údajů. Více informací
Chystáte se prodat nemovitost?
Pomůžeme Vám!

Přihlášení k odběru

Nenechte si ujít nejnovější nabídky prodeje rodinných domů v Miroticích.