Prodej rodinného domu, Mohelno, 194 m2

Mohelno

4 600 000 Kč
/za nemovitost
Hypotéka od 20 559 Kč /měs. Chci hypotéku

Parametry domu

AdresaMohelno
IDN00083
StavbaCihlová
Stav objektuPřed rekonstrukcí
Druh objektuSamostatný
Lokalita objektuKlidná část obce
Užitná plocha194 m2
Zastavěná plocha132 m2
Plocha pozemku1193 m2
Třída energetické náročnostiG - Mimořádně nehospodárná
Elektřina230V
OdpadVeřejná kanalizace
VodaVodovod
Sklep
Bazén

Origo partneři v Mohelně

Popis

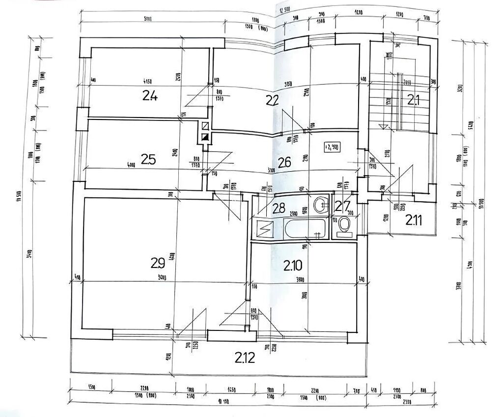
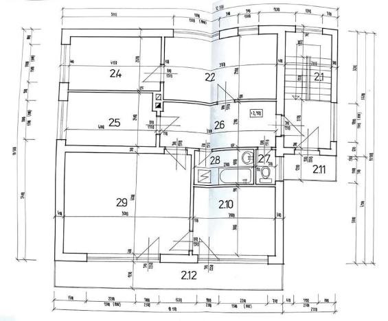
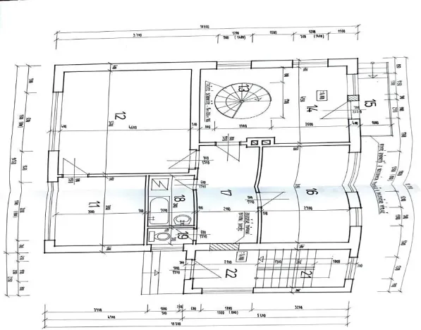
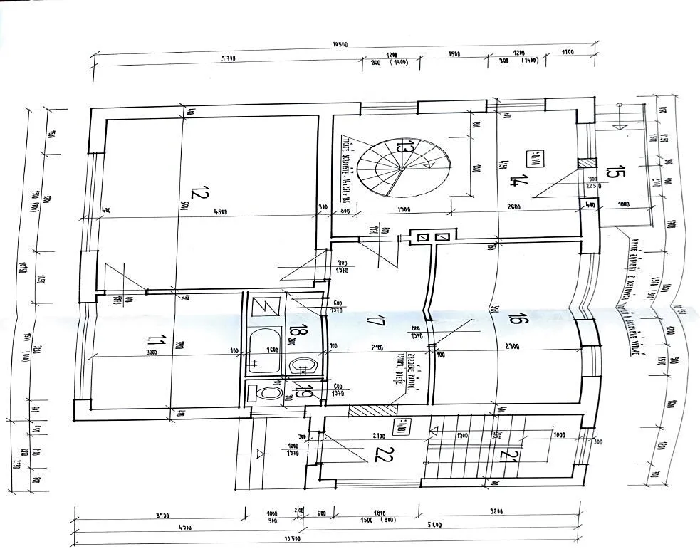
Nabízíme k prodeji prostorný rodinný dům se dvěma bytovými jednotkami situovaný v klidné části obce Mohelno. V 1.NP se nachází bytová jednotka 3+kk 93,6 m2 s možností rozšíření na 5+kk o výměře 139 m². Ve 2. NP je umístěna bytová jednotka 4+1 o výměře 99,8 m2. Do 1.NP vstoupíte přes verandu, na ni navazuje vstupní hala se schodištěm do spodního patra. Z hlavní chodby je přístup do světlého obývacího pokoje s kuchyňským koutem, na samostatné WC, do koupelny s vanou a umyvadlem a do dvou vzdušných obytných místností. Byt ve 2.NP má vstupní halu, ze které je vstup do kuchyně, obývacího pokoje, jednoho z pokojů, koupelny s vanou a umyvadlem a samostatného WC. Za kuchyní se nachází další pokoj, který může sloužit jako jídelna, pracovna nebo příležitostný pokoj pro návštěvy. Z prostorného obývacího pokoje je vstup na balkon o ploše 2,9 m² a vstup do ložnice. Na zahradě je dostatek prostoru pro relaxaci, zahradničení či rodinné aktivity. K dispozici je kůlna na nářadí, přístřešek pro venkovní posezení i bazén. Dům je napojen na vodovod, elektřinu a kanalizaci, případně je možné napojení na plyn.
Mohelno je klidná obec s krásnou přírodou v okolí, přitom s výborným spojením do větších měst. Okolí je jako stvořené pro pěší výlety, cyklistiku a další aktivity venku.
Dostupnost: Brno cca 35 minut, Rosice 25 minut, Ivančice 15 minut, Dukovany 7 minut.

Makléř

Máte zájem o tento dům?

Tímto, v souladu s nařízením Evropského parlamentu a Rady (EU) 2016/679, v platném znění, prohlašuji, že mi je alespoň 16 let a uděluji tak svůj souhlas se zpracováním zadaných údajů (jméno, telefon, e-mail, ip adresa) společnosti B3 Technology, s.r.o., IČ: 07330600, se sídlem Novostavby 126/23, 435 11 Lom (správce dat), za účelem předání dotazu z tohoto formuláře Vámi vybranému inzerentovi a zpětného kontaktování mé osoby. Osobní údaje bude správce zpracovávat manuálně i automaticky přímo prostřednictvím svých zaměstnanců. Informace předané tímto formulářem budou uloženy v databázi správce maximálně po dobu 10 let. Odvolání souhlasu s uložením a zpracováním poskytnutých dat lze e-mailem na info@origo-reality.cz. V případě podezření na neoprávněné použití Vámi poskytnutých údajů máte právo předat podnět k šetření Úřadu pro ochranu osobních údajů. Více informací
Chystáte se prodat nemovitost?
Pomůžeme Vám!

Přihlášení k odběru

Nenechte si ujít nejnovější nabídky prodeje rodinných domů v Mohelně.