Prodej rodinného domu, Rosice, Zámecká, 148 m2 (ID: 1897708)

Zámecká, Rosice

5 290 000 Kč
Hypotéka od 23 643 Kč /měs. Chci hypotéku

Parametry domu

AdresaZámecká, Rosice
IDN00017
StavbaCihlová
Stav objektuPřed rekonstrukcí
Druh objektuRohový
VlastnictvíOsobní
Užitná plocha148 m2
Zastavěná plocha148 m2
Plocha pozemku206 m2
Třída energetické náročnostiG - Mimořádně nehospodárná
Ukazatel energetické náročnosti1 kWh/m2 za rok

Origo partneři v Rosicích

Popis

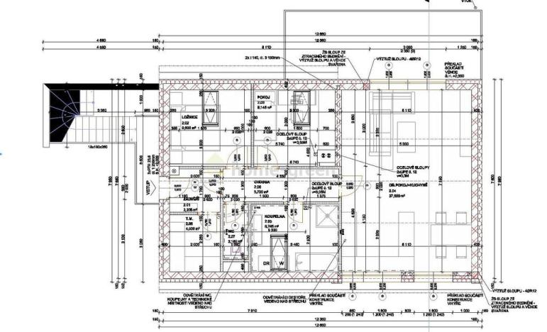
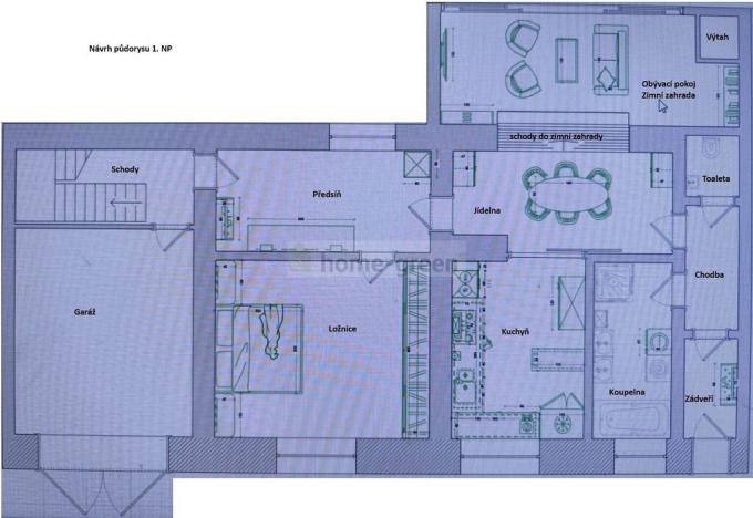
Zprostředkujeme Vám exkluzívně prodej rodinného domu s mezonetovým bytem 4+1 o užitné ploše 148 m² na pozemku o velikosti 206 m² ve velmi žádané lokalitě v Rosicích u Brna. Jedná se o koncovou řadovou stavbu s hlavním vchodem orientovaným na zámecký park a místní komunikaci.
Dům je v původním stavu před rekonstrukcí, která může zcela proměnit jeho dispozici na nový domov ve stylu moderního bydlení, které vyhovuje jak mladým párům, tak i seniorům. V 1. NP lze umístit kuchyň, jídelnu , ložnici , koupelnu, WC a stávající prosklení střechy a okna na verandě nahradit celoroční zimní zahradou s posezením a krásným výhledem do okolí. V 1. PP pak vybudovat odpočinkovou zónu s výřivou vanou, saunou, sprchou a toaletou. Ve 2. NP je prostorná půda s možností vybudování bytu 3 + KK s užitnou plochou cca 80 m². Všechna tři podlaží lze propojit schodištěm a osobním výtahem. Viz ilustrační fotografie.
Dům byl postaven v roce 1935 a v roce 1960 byla provedena kompletní rekonstrukce domu. Dům je zděný, střecha je sedlová, krytina je pálená skládaná, stropy rovné, okna špaletová dřevěná a ocelová. V domě jsou původní rozvody plynu, elektřiny, vody a odpadu. V 1. PP je kuchyň, sociální zázemí a chodba s východem na oplocenou zatravněnou zahradou a do několika sklepních místností. V 1. NP jsou čtyři pokoje, veranda, chodba a přistavěná prostorná garáž. Z verandy je krásný výhled do širokého okolí.
Město Rosice leží 20 km západně od Brna s nímž je spojeno linkami IDS-JMK (autobus, vlak). Město má vysoký stupeň občanské vybavenosti. Ulice Zámecká je v centrální části města cca 300 m od Palackého náměstí a zámku. Dojezdová vzdálenost do Brna je cca 15 minut.
Jedná se o výhodnou investici do vlastního nebo nájemního bydlení. Se zajištěním financování této investice pomocí hypotečního úvěru Vám rádi pomůžeme. Energetický štítek je zpracováván, a proto uvádíme energetickou třídu G. Doporučujeme.

Makléř

Máte zájem o tento dům?

Tímto, v souladu s nařízením Evropského parlamentu a Rady (EU) 2016/679, v platném znění, prohlašuji, že mi je alespoň 16 let a uděluji tak svůj souhlas se zpracováním zadaných údajů (jméno, telefon, e-mail, ip adresa) společnosti B3 Technology, s.r.o., IČ: 07330600, se sídlem Novostavby 126/23, 435 11 Lom (správce dat), za účelem předání dotazu z tohoto formuláře Vámi vybranému inzerentovi a zpětného kontaktování mé osoby. Osobní údaje bude správce zpracovávat manuálně i automaticky přímo prostřednictvím svých zaměstnanců. Informace předané tímto formulářem budou uloženy v databázi správce maximálně po dobu 10 let. Odvolání souhlasu s uložením a zpracováním poskytnutých dat lze e-mailem na info@origo-reality.cz. V případě podezření na neoprávněné použití Vámi poskytnutých údajů máte právo předat podnět k šetření Úřadu pro ochranu osobních údajů. Více informací
Chystáte se prodat nemovitost?
Pomůžeme Vám!

Přihlášení k odběru

Nenechte si ujít nejnovější nabídky prodeje rodinných domů v Rosicích (okr. Brno-venkov).