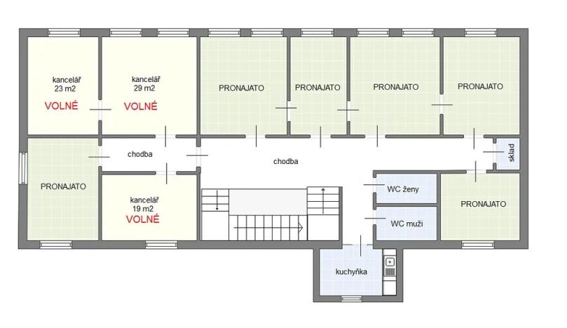
Pronájem kanceláře, Chrudim, Masarykovo náměstí, 19 m2

Masarykovo náměstí, Chrudim IV

Cena na vyžádání
/za metr čtvereční / měsíc
Získejte výhodnou HYPOTÉKU Chci hypotéku

Parametry nemovitosti

AdresaMasarykovo náměstí, Chrudim IV
ID700247
StavbaSmíšená
Stav objektuDobrý
Patro2. z 2
Lokalita objektuCentrum obce
Užitná plocha19 m2
Třída energetické náročnostiG - Mimořádně nehospodárná
Elektřina230V
PlynPlynovod
OdpadVeřejná kanalizace
KomunikaceAsfaltová
TelekomunikaceInternet
DopravaVlak, Silnice, MHD, Autobus
VodaVodovod
Topné tělesoPodlahové vytápění
Zdroj topeníPlynový kotel
Zdroj teplé vodyPlynový kotel
Výtah
Bezbarierový přístup

Origo partneři v Chrudimi

Popis

Rádi bychom Vám představili tuto kancelář k pronájmu, která se nachází v samém centru obce Chrudim. Jedná se o útulný prostor o velikosti 19 m2 ve 2. patře domu, jehož poloha umožňuje snadnou a rychlou dostupnost díky blízkosti veřejné dopravy, včetně vlaku a autobusů.

Kancelář je nově zrekonstruována a disponuje novou podlou, omítkami, i stropními deskami. Nově jsou provedeny také rozvody topení a elektroinstalace. Kancelář je prosvětlena plastovým oknem s horizontálními žaluziemi. Tepelný komfort v zimě zajišťuje podlahové vytápění, které je pro útulnost doplněno kobercem. V létě lze vysoké teploty zpříjemnit díky nově osazené klimatizační jednotce.

K dispozici je dále možné využít společné prostory s kuchyňkou a sociální zařízení umístěné na patře. Dále je k dispozici poštovní schránku u vstupu do domu.

Tento prostor je ideální pro ty, kteří hledají menší kancelářský prostor. I přes svou menší velikost, kancelář zajistí útulný a funkcionalistický pracovní prostor, který najde využití pro nejrůznější podnikatelské činnosti. Lokace v centru města Chrudim poskytuje mnoho příležitostí.


Pokud Vás kancelář zaujala, neváhejte nám napsat nebo zavolat a rádi Vám vše ukážeme osobně.

Makléř

Máte zájem o tuto nemovistost?

Tímto, v souladu s nařízením Evropského parlamentu a Rady (EU) 2016/679, v platném znění, prohlašuji, že mi je alespoň 16 let a uděluji tak svůj souhlas se zpracováním zadaných údajů (jméno, telefon, e-mail, ip adresa) společnosti B3 Technology, s.r.o., IČ: 07330600, se sídlem Novostavby 126/23, 435 11 Lom (správce dat), za účelem předání dotazu z tohoto formuláře Vámi vybranému inzerentovi a zpětného kontaktování mé osoby. Osobní údaje bude správce zpracovávat manuálně i automaticky přímo prostřednictvím svých zaměstnanců. Informace předané tímto formulářem budou uloženy v databázi správce maximálně po dobu 10 let. Odvolání souhlasu s uložením a zpracováním poskytnutých dat lze e-mailem na info@origo-reality.cz. V případě podezření na neoprávněné použití Vámi poskytnutých údajů máte právo předat podnět k šetření Úřadu pro ochranu osobních údajů. Více informací
Chystáte se prodat nemovitost?
Pomůžeme Vám!

Přihlášení k odběru

Nenechte si ujít nejnovější nabídky pronájmu kanceláří v Chrudimi.