Prodej bytu 3+kk, Privlaka, Chorvatsko, 73 m2 (ID: 1897089)

Privlaka

520 000 €
/za nemovitost

Parametry bytu

AdresaPrivlaka
IDF19556
StavbaCihlová
Stav objektuNovostavba
Patro3. z 3
VybavenoČástečně
Lokalita objektuKlidná část obce
VlastnictvíOsobní
Užitná plocha73 m2
Podlahová plocha94 m2
Elektřina230V
OdpadČOV pro celý objekt
TopeníLokální elektrické, Ústřední tuhá paliva
DopravaDálnice, Silnice
VodaVodovod
Balkon
Terasa
Parkování

Origo partneři

Popis

Nabízíme k prodeji výjimečný apartmán novostavbě, která je pouhých 70 metrů od moře.
Apartmán se nachází ve druhém patře a z kryté terasy i střešní terasy nabízí nádherný výhled na moře. Tento luxusní apartmán je připraven k okamžitému nastěhování.

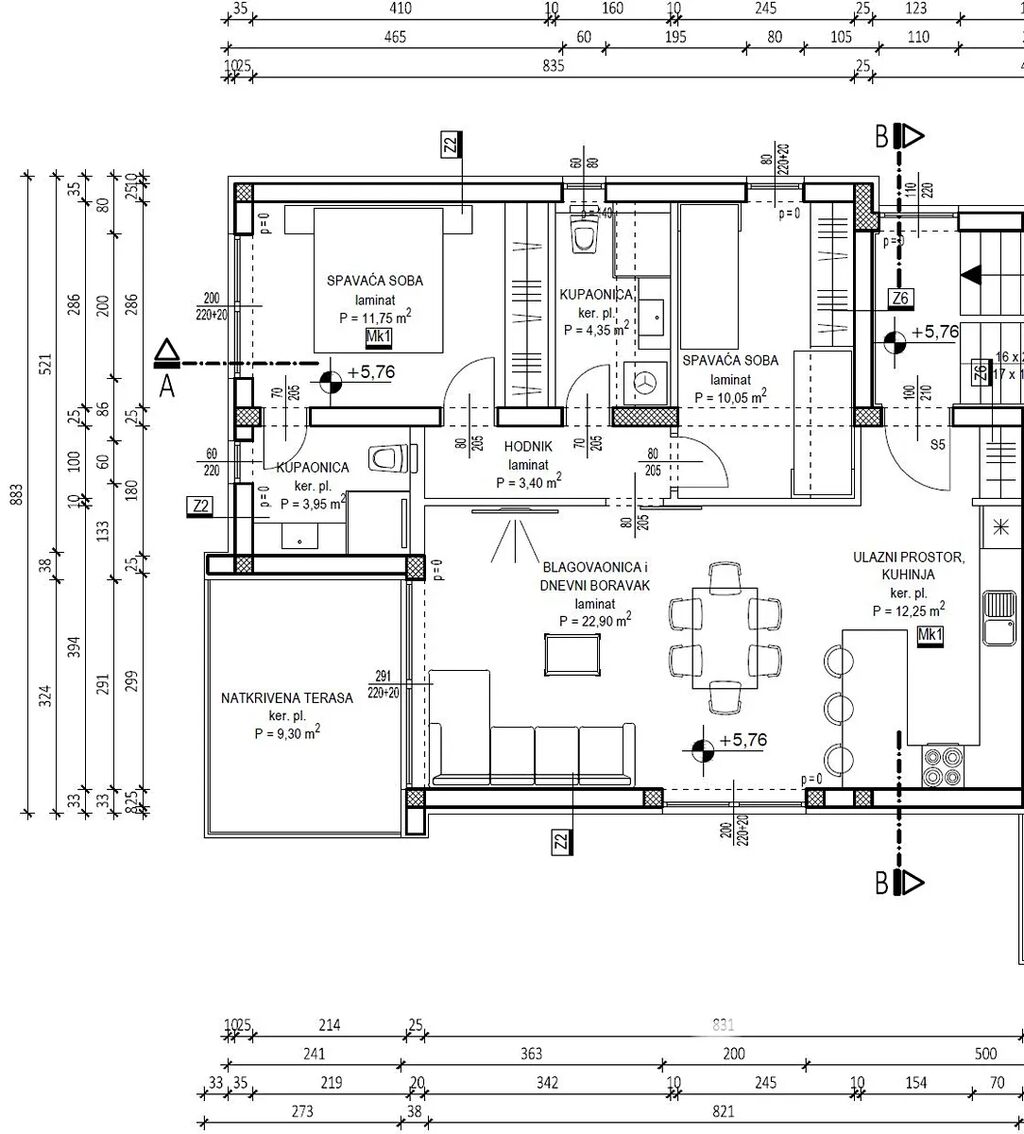
Apartmán má čistou užitnou plochu 73,30 m² a zahrnuje chodbu, dvě ložnice, z nichž jedna má vlastní koupelnu, další koupelnu, kuchyň s jídelnou a obývacím pokojem.
K apartmánu dále náleží 2 parkovací stání a střešní terasa o rozloze 65,65 m², která je vybavena bazénem, pergolou a grilem – ideální pro relaxaci a venkovní zábavu.

Celková užitná plocha tohoto apartmánu včetně příslušenství činí 94,71 m². Budova se skládá pouze z 6 bytů, což zajišťuje klidné a exkluzivní bydlení. Stavba byla provedena z kvalitních tepelných cihelných bloků a je vybavena tepelnou izolací. Byt je vybaven klimatizací v obývacím pokoji i ložnicích a elektrickým podlahovým vytápěním. Vstupní dveře jsou bezpečnostní a protipožární.

Bazén je vyhřívaný a jeho povrch je pokryt mozaikovou krytinou. Nemovitost je energeticky úsporná s očekávaným energetickým certifikátem A+.

Tento apartmán v Privlace nabízí ideální kombinaci luxusního bydlení a investiční příležitosti pro krátkodobé turistické pronájmy. Vynikající poloha u moře, prostorná střešní terasa s bazénem a kvalitní vybavení činí z této nemovitosti jedinečnou nabídku pro ty, kteří hledají pohodlí a relaxaci na dosah pláže.

Privlaka je malebné rybářské a turistické městečko, vzdálené pouhých 15 minut od Zadaru. Leží na rozlehlém písečném poloostrově mezi královským městem Nin a ostrovem Vir. Tato oblast je známá pro své dlouhé, mělké písečné zátoky a průzračné moře, které poskytují ideální podmínky pro rodinnou dovolenou. Město nabízí veškerou potřebnou infrastrukturu, jako jsou obchody, restaurace, pošta i poliklinika, a milovníci vodních sportů, jako je plachtění nebo surfování, zde najdou mnoho možností pro aktivní odpočinek.

Chorvatsko patří mezi nejoblíbenější destinace pro nákup nemovitostí u moře díky své stabilní ekonomice a vysokému turistickému potenciálu. Region Zadar a jeho okolí, včetně Privlaky, jsou vyhledávány pro své krásné pláže, čisté moře a bohatou kulturní historii, což z nich činí atraktivní místo pro investory i ty, kteří hledají klidné a luxusní bydlení u moře.

S Mojenemovitostumore vám poskytujeme kompletní a profesionální servis při nákupu nemovitostí v Chorvatsku. Naše zkušenosti a znalosti trhu vám zajistí bezproblémový nákup a právní podporu po celou dobu transakce. Zajistíme celý proces převodu vlastnictví, včetně přepisů energií a všech registrací, takže nebudete muset řešit žádné administrativní starosti.

Pokud vás tento luxusní apartmán v Privlace zaujal, neváhejte nás kontaktovat pro více informací nebo domluvení prohlídky. Rádi vám pomůžeme najít ideální bydlení nebo investiční příležitost v Chorvatsku

Makléř

Máte zájem o tento byt?

Tímto, v souladu s nařízením Evropského parlamentu a Rady (EU) 2016/679, v platném znění, prohlašuji, že mi je alespoň 16 let a uděluji tak svůj souhlas se zpracováním zadaných údajů (jméno, telefon, e-mail, ip adresa) společnosti B3 Technology, s.r.o., IČ: 07330600, se sídlem Novostavby 126/23, 435 11 Lom (správce dat), za účelem předání dotazu z tohoto formuláře Vámi vybranému inzerentovi a zpětného kontaktování mé osoby. Osobní údaje bude správce zpracovávat manuálně i automaticky přímo prostřednictvím svých zaměstnanců. Informace předané tímto formulářem budou uloženy v databázi správce maximálně po dobu 10 let. Odvolání souhlasu s uložením a zpracováním poskytnutých dat lze e-mailem na info@origo-reality.cz. V případě podezření na neoprávněné použití Vámi poskytnutých údajů máte právo předat podnět k šetření Úřadu pro ochranu osobních údajů. Více informací
Chystáte se prodat nemovitost?
Pomůžeme Vám!

Přihlášení k odběru

Nenechte si ujít nejnovější nabídky prodeje bytů 3+kk.