Prodej rodinného domu, Hradec Králové, Malá, 81 m2

Malá, Hradec Králové, Pouchov

11 862 000 Kč
/za nemovitost
včetně právního servisu
Hypotéka od 53 016 Kč /měs. Chci hypotéku

Parametry domu

AdresaMalá, Hradec Králové, Pouchov
ID00475
StavbaCihlová
Stav objektuVelmi dobrý
Druh objektuSamostatný
Užitná plocha81 m2
Plocha pozemku404 m2
Třída energetické náročnostiG - Mimořádně nehospodárná
DopravaMHD
VodaMístní zdroj vody, Studna
Zdroj topeníPlynový kotel
Zdroj teplé vodyBojler - elektro
Garáž

Origo partneři v Hradci Králové

Popis

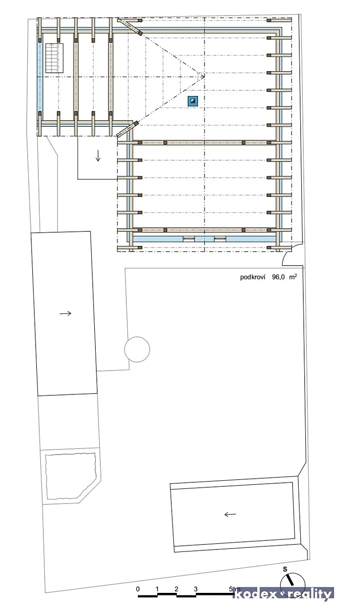
Nabízíme na prodej prostorný rodinný dům 4+kk s garáží a dvěma terasami v klidné a žádané části Hradce Králové, místní části Pouchov v Malé ulici. Dům nabízí dispozici 4+kk a má velkorysé podkroví s možností budoucí vestavby, je tedy ideální volbou pro pohodové rodinné bydlení s výbornou dostupností služeb i centra města.
Užitná plocha domu je 81,5 m², podkroví 96 m² (aktuálně neobytné, připravené k vestavbě), garáž 16,6 m². Celková plocha pozemku činí 404 m².
Dispozice: obývací pokoj s kuchyňským koutem, dvě ložnice, pracovna/dětský pokoj, koupelna, samostatné WC.
Interiér prošel rozsáhlou rekonstrukcí (r. 2020 - štuky, vinylové podlahy, obložkové dveře, kuchyň, koupelna, WC i ložnice) a po kompletní rekonstrukci jsou z téhož roku i vnitřní rozvody (voda, kanalizace, elektroinstalace, vytápění).
Parkování - garáž a v ulici před domem. Zahrada s jezírkem, dvě terasy, venkovní sklad a studna s užitkovou vodou.
Topení plynovým kotlem, ohřev vody elektrickým bojlerem. Pitná voda z městského řadu, užitková voda ze studny na zalévání.
Stavební historie domu: postaven r. 1933, rozsáhlá přestavba v 70. letech. Poslední rekonstrukce interiéru a instalací v r. 2020.
Pouchov je tichá obytná čtvrť v Hradci Králové s výbornou dopravní dostupností a kompletní občanskou vybaveností. V pěší vzdálenosti se nachází supermarket Kaufland, zastávky MHD, škola, školka i další služby. Ideální lokalita pro klidné rodinné bydlení se zelení v okolí a výborným napojením na centrum města.

Makléř

Máte zájem o tento dům?

Tímto, v souladu s nařízením Evropského parlamentu a Rady (EU) 2016/679, v platném znění, prohlašuji, že mi je alespoň 16 let a uděluji tak svůj souhlas se zpracováním zadaných údajů (jméno, telefon, e-mail, ip adresa) společnosti B3 Technology, s.r.o., IČ: 07330600, se sídlem Novostavby 126/23, 435 11 Lom (správce dat), za účelem předání dotazu z tohoto formuláře Vámi vybranému inzerentovi a zpětného kontaktování mé osoby. Osobní údaje bude správce zpracovávat manuálně i automaticky přímo prostřednictvím svých zaměstnanců. Informace předané tímto formulářem budou uloženy v databázi správce maximálně po dobu 10 let. Odvolání souhlasu s uložením a zpracováním poskytnutých dat lze e-mailem na info@origo-reality.cz. V případě podezření na neoprávněné použití Vámi poskytnutých údajů máte právo předat podnět k šetření Úřadu pro ochranu osobních údajů. Více informací
Chystáte se prodat nemovitost?
Pomůžeme Vám!