Prodej bytu 3+1, Jevany, Bohumil, 120 m2

Bohumil, Jevany

7 700 000 Kč
/za nemovitost
Hypotéka od 34 414 Kč /měs. Chci hypotéku

Parametry bytu

AdresaBohumil, Jevany
ID1088
StavbaSmíšená
Stav objektuVelmi dobrý
Patro2. z 2
VybavenoAno
Lokalita objektuKlidná část obce
VlastnictvíOsobní
Užitná plocha120 m2
Třída energetické náročnostiG - Mimořádně nehospodárná
Elektřina230V
PlynIndividuální
OdpadVeřejná kanalizace
KomunikaceAsfaltová
DopravaSilnice, Autobus
VodaVodovod
Sklep

Origo partneři v Jevanech

Popis

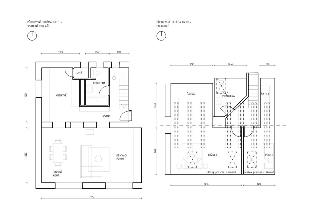
Nabízíme k prodeji atraktivní mezonetový byt 3 + 1 v obci Bohumil okres Praha-východ s velmi dobrou dostupností. Nachází se mezi malebnou obcí Jevany a městem Kostelec nad Černými lesy, které disponuje výbornou občanskou vybaveností jako je škola, školka, supermarkety, sportoviště, lékaři a další služby. Do Prahy na metro Háje se autem dostanete za 35 minut. Tento prostorný byt o užitné ploše 120 m² poskytuje ideální zázemí pro rodiny s dětmi, které hledají blízko Prahy bezpečné a přívětivé prostředí pro život.

Dům je umístěn v zatepleném dvoupodlažním objektu s novými plastovými okny. Rodiny ocení mezonetové uspořádání bytu, které nabízí dostatek prostoru pro pohodlné bydlení. V přízemí se nachází světlý obývací pokoj s krbovými kamny, které vytvoří příjemnou atmosféru v chladných měsících, dále plně vybavená kuchyň, prostorný jídelní kout i koupelna s wc. V patře bytu se nachází dva samostatné pokoje, které jsou využívány jako dětský pokoj a ložnice. Dále je na patře prostorné wc, které je zároveň používané jako prádelna.

Bezpečnost dětí je jedním z hlavních prvků, které dělají tuto nemovitost atraktivní. Obec je má klidnou atmosféru, což zajišťuje příjemné rodinné prostředí. Před domem je možné parkovat. Dostatek úložného prostoru je zajištěn díky nadstandartnímu sklepu a sklepní kóji o celkové výměře 10,38 m².

Tato nemovitost nabízí nejen skvělé zázemí pro rodinu, ale i množství příležitostí k aktivnímu trávení volného času v malebné přírodě. Nedaleké Voděradské bučiny vybízí k projížďkám na kole či pěší turistice, v létě oceníte možnost koupání na koupališti Vyžlovka.

V případě zájmu o prohlídku nás neváhejte kontaktovat.

Makléř

Máte zájem o tento byt?

Tímto, v souladu s nařízením Evropského parlamentu a Rady (EU) 2016/679, v platném znění, prohlašuji, že mi je alespoň 16 let a uděluji tak svůj souhlas se zpracováním zadaných údajů (jméno, telefon, e-mail, ip adresa) společnosti B3 Technology, s.r.o., IČ: 07330600, se sídlem Novostavby 126/23, 435 11 Lom (správce dat), za účelem předání dotazu z tohoto formuláře Vámi vybranému inzerentovi a zpětného kontaktování mé osoby. Osobní údaje bude správce zpracovávat manuálně i automaticky přímo prostřednictvím svých zaměstnanců. Informace předané tímto formulářem budou uloženy v databázi správce maximálně po dobu 10 let. Odvolání souhlasu s uložením a zpracováním poskytnutých dat lze e-mailem na info@origo-reality.cz. V případě podezření na neoprávněné použití Vámi poskytnutých údajů máte právo předat podnět k šetření Úřadu pro ochranu osobních údajů. Více informací
Chystáte se prodat nemovitost?
Pomůžeme Vám!

Přihlášení k odběru

Nenechte si ujít nejnovější nabídky prodeje bytů 3+1 v Jevanech.