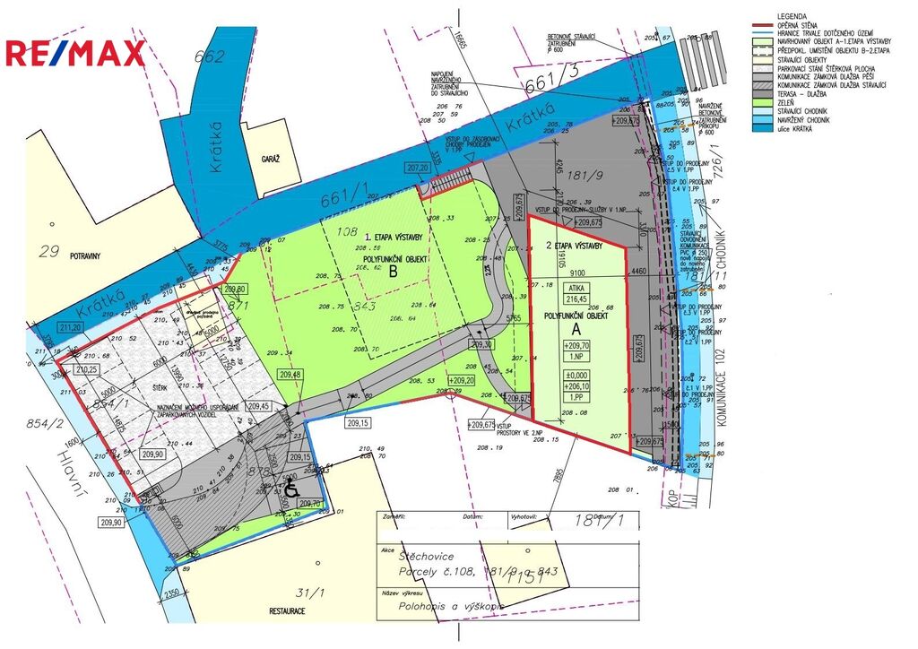
Prodej komerčního pozemku, Štěchovice, 585 m2

Štěchovice u Prahy

7 000 000 Kč
/za nemovitost
Hypotéka od 31 286 Kč /měs. Chci hypotéku

Parametry pozemku

AdresaŠtěchovice u Prahy
ID248-NP00849
Lokalita objektuCentrum obce
Plocha pozemku585 m2
KomunikaceAsfaltová
DopravaVlak, MHD, Autobus
Převod do OV

Origo partneři v Štěchovicích

Popis

Nabízím k prodeji zajímavou investiční příležitost v atraktivní lokalitě obce Štěchovice u Prahy, která se nachází v okrese Praha-západ. Tento komerční pozemek o celkové ploše 585 m² představuje ideální základ pro rozvoj obchodních aktivit s bydlením. Součástí prodeje je projektová dokumentace se stavebním povolením.

Díky výhodné poloze v blízkosti hlavních dopravních tepen, včetně dobrého napojení na vlakovou dopravu, MHD a autobus, má tento pozemek vysoký potenciál přitáhnout zákazníky a zajistit výhodnou návratnost investice. Asfaltová vozovka zajišťuje bezproblémový přístup k pozemku a celkové okolí je dobře udržované, což přispívá k příjemnému vzhledu a atmosféře této lokality.

Investice do tohoto pozemku nabízí také možnosti pronájmu, což může představovat stabilní a pasivní příjem. Vzhledem k rostoucímu zájmu o tuto oblast a postupné urbanizaci regionu se zde otevírá prostor pro různé obchodní modely, což činí tuto příležitost ještě atraktivnější.

V oblasti jsou k dispozici veškeré potřebné inženýrské sítě, což usnadňuje plánování a realizaci případných projektů. Výhodné místo pro umístění obchodních prostor, služeb nebo menších skladovacích jednotek zaručuje široké spektrum využití.

Přijďte se podívat na tuto jedinečnou možnost investice do budoucnosti. V případě zájmu o prohlídku nás neváhejte kontaktovat.

Makléř

Máte zájem o tento pozemek?

Tímto, v souladu s nařízením Evropského parlamentu a Rady (EU) 2016/679, v platném znění, prohlašuji, že mi je alespoň 16 let a uděluji tak svůj souhlas se zpracováním zadaných údajů (jméno, telefon, e-mail, ip adresa) společnosti B3 Technology, s.r.o., IČ: 07330600, se sídlem Novostavby 126/23, 435 11 Lom (správce dat), za účelem předání dotazu z tohoto formuláře Vámi vybranému inzerentovi a zpětného kontaktování mé osoby. Osobní údaje bude správce zpracovávat manuálně i automaticky přímo prostřednictvím svých zaměstnanců. Informace předané tímto formulářem budou uloženy v databázi správce maximálně po dobu 10 let. Odvolání souhlasu s uložením a zpracováním poskytnutých dat lze e-mailem na info@origo-reality.cz. V případě podezření na neoprávněné použití Vámi poskytnutých údajů máte právo předat podnět k šetření Úřadu pro ochranu osobních údajů. Více informací
Chystáte se prodat nemovitost?
Pomůžeme Vám!

Přihlášení k odběru

Nenechte si ujít nejnovější nabídky prodeje komerčních pozemků v Štěchovicích (okr. Praha-západ).