Prodej činžovního domu, Nový Bor, nám. Míru, 507 m2

nám. Míru, Nový Bor

17 900 000 Kč
/za nemovitost
Hypotéka od 80 002 Kč /měs. Chci hypotéku

Parametry nemovitosti

Adresanám. Míru, Nový Bor
ID0213
StavbaCihlová
Stav objektuVelmi dobrý
VybavenoAno
Typ objektuPatrový
Lokalita objektuCentrum obce
Užitná plocha507 m2
Zastavěná plocha240 m2
Třída energetické náročnostiG - Mimořádně nehospodárná
Elektřina400V
PlynPlynovod
OdpadVeřejná kanalizace
KomunikaceAsfaltová
TelekomunikaceInternet
DopravaVlak, Silnice, MHD, Autobus
Garáž
Převod do OV
Parkování

Origo partneři v Novém Boru

Rekonstrukce

Úklidové služby

Popis

Nabízím zprostředkování prodeje multifunkčního domu v Novém Boru a to přímo v centru města - náměstí Míru.
Jedná se o samostatně stojící budovu, ve velmi dobrém technickém stavu.
Při nedávné rekonstrukci došlo k zateplení pláště, výměně některých dřevěných prvků. Nová je elektroinstalace, rozvody vody i plynu.
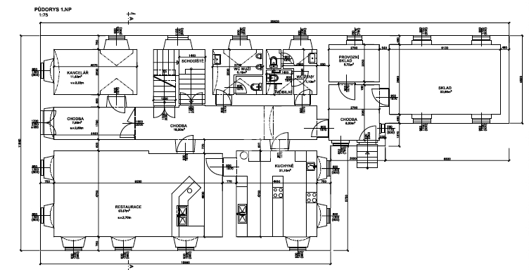
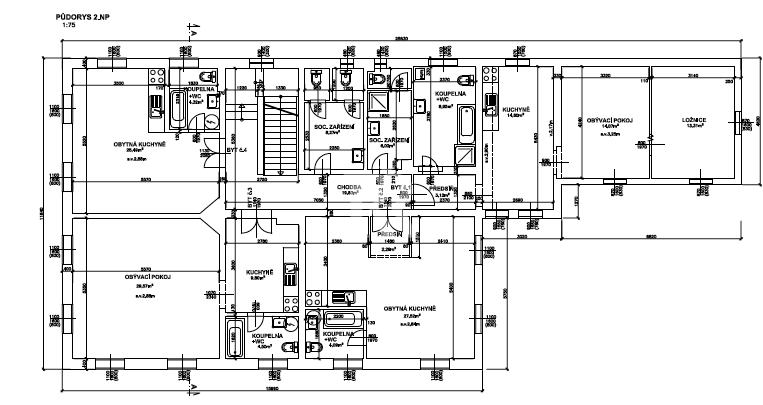
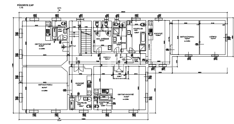
Dům se skládá z třech nadzemních podlaží a to v následujících dispozicích:
1.NP: restaurace s kuchyní a sociálním zařízením, sklad, 2x kancelář
2.NP: bytové jednotky 2+1, 1+KK, 1+1 a 1+KK
3.NP: bytové jednotky 2+KK s terasou, 2+KK
Celý dům je podsklepený, klenby suterénu jsou z pískovcových štuků.
Zastavěná plocha činí 234m2. Na přilehlém vlastním pozemku jsou 2 garáže o celkové výměře 54m2.
Z větší části je vytápění řešeno plynem, některé byty mají elektrické topení.
Dům je napojený na veřejný vodovod a kanalizaci.
Aktuálně jsou všechny bytové jednotky pronajaté bezproblémovým, platícím nájemníkům.
V rámci klientského servisu se vám postaráme zdarma o případné naplnění kapacity.
Zavedená restaurace s kapacitou 30 míst je zcela vybavena a v nejbližších dnech bude otevřena novým nájemcem.
Venkovní markýza s posezením v letních měsících téměř zdvojnásobuje kapacitu a je vyhledávaná turisty i lidmi pracujícími v okolních firmách a městském úřadu.
Jedná se o velmi zajímavou investiční nemovitost .
Kontaktujte našeho makléře a domluvte si termín prohlídky.

Makléř

Máte zájem o tuto nemovistost?

Tímto, v souladu s nařízením Evropského parlamentu a Rady (EU) 2016/679, v platném znění, prohlašuji, že mi je alespoň 16 let a uděluji tak svůj souhlas se zpracováním zadaných údajů (jméno, telefon, e-mail, ip adresa) společnosti B3 Technology, s.r.o., IČ: 07330600, se sídlem Novostavby 126/23, 435 11 Lom (správce dat), za účelem předání dotazu z tohoto formuláře Vámi vybranému inzerentovi a zpětného kontaktování mé osoby. Osobní údaje bude správce zpracovávat manuálně i automaticky přímo prostřednictvím svých zaměstnanců. Informace předané tímto formulářem budou uloženy v databázi správce maximálně po dobu 10 let. Odvolání souhlasu s uložením a zpracováním poskytnutých dat lze e-mailem na info@origo-reality.cz. V případě podezření na neoprávněné použití Vámi poskytnutých údajů máte právo předat podnět k šetření Úřadu pro ochranu osobních údajů. Více informací
Chystáte se prodat nemovitost?
Pomůžeme Vám!

Přihlášení k odběru

Nenechte si ujít nejnovější nabídky prodeje činžovních domů v Novém Boru.