Prodej rodinného domu, Prusinovice, Podzahradí, 155 m2

Podzahradí, Prusinovice

6 890 000 Kč
/za nemovitost
cena je konečná
Hypotéka od 30 794 Kč /měs. Chci hypotéku

Parametry domu

AdresaPodzahradí, Prusinovice
ID0180
StavbaCihlová
Stav objektuVelmi dobrý
VybavenoČástečně
Druh objektuŘadový
Lokalita objektuKlidná část obce
Užitná plocha155 m2
Zastavěná plocha95 m2
Podlahová plocha155 m2
Plocha pozemku267 m2
Plocha zahrady162 m2
Třída energetické náročnostiG - Mimořádně nehospodárná
OdpadSeptik, Jímka
VodaVodovod
Topné tělesoRadiátory
Zdroj teplé vodyPlynový kotel, Kotel na tuhá paliva, Bojler - plyn
Garáž
Sklep

Origo partneři v Prusinovicích

Popis

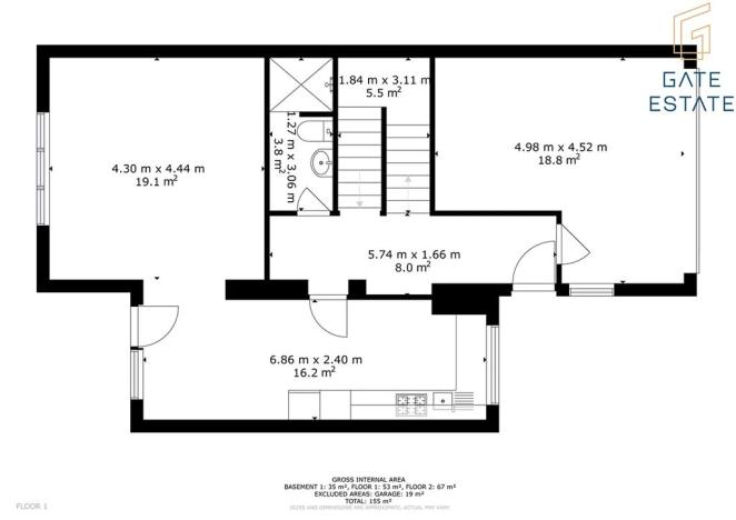
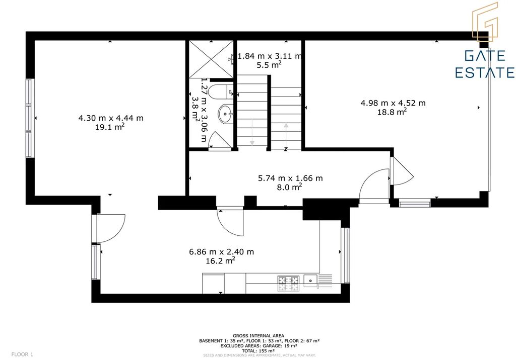
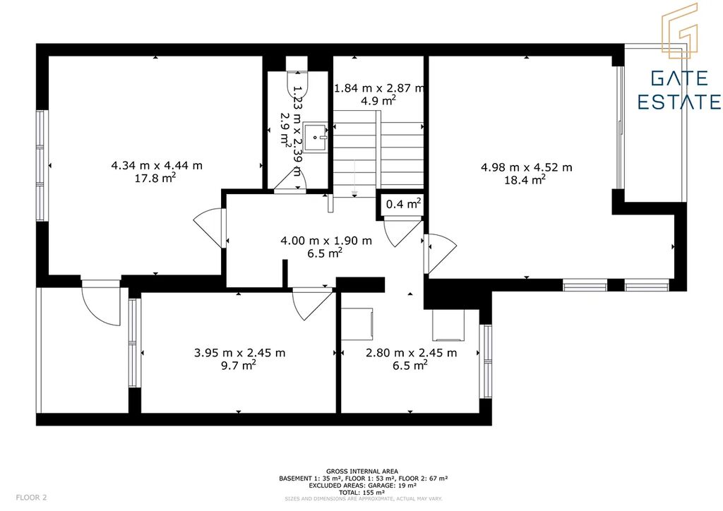
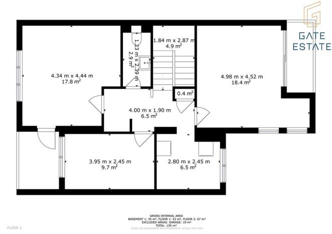
Nabízíme k prodeji rodinný dům o podlahové ploše 155 m² na pozemku o celkové výměře 267 m² v obci Prusinovice.

Dispozice domu:

Sklep:
Praktický úložný prostor a technické zázemí – kotel na tuhá paliva a bojler pro ohřev teplé vody.

1. nadzemní podlaží:
Vstupní část, garáž, prostorný obývací pokoj propojený s kuchyňským koutem, koupelna a samostatné WC.

2. nadzemní podlaží:
Tři samostatné pokoje, z nichž dva jsou určené k rekonstrukci (podlahy, částečně omítky). Ke každému pokoji náleží vlastní balkon – jeden orientovaný do ulice, druhý do zahrady. Na patře je připraven také prostor pro druhou koupelnu, kterou je potřeba dokončit (obklady, sanita).

Rekonstrukce z roku 2014 zahrnovala: nové topení a radiátory, sádrokartonové podhledy, podlahy, rozvody elektřiny, vody a odpadů.

Dům nabízí skvělý potenciál pro další úpravy podle vlastních představ. Dům se nachází ve velmi klidné a příjemné lokalitě. Přímo před domem je nově vybudované dětské hřiště, což z něj dělá ideální místo pro rodiny s dětmi. Díky své poloze, dispozici a možnosti dotvořit si část interiéru jde o ideální volbu pro rodiny, které hledají klidné bydlení s dobrou dostupností do okolních měst (Holešov, Bystřice pod Hostýnem).

Prodejní cena: 6.890.000 Kč

Prohlídky jsou možné kdykoliv po předchozí domluvě.

Makléř

Máte zájem o tento dům?

Tímto, v souladu s nařízením Evropského parlamentu a Rady (EU) 2016/679, v platném znění, prohlašuji, že mi je alespoň 16 let a uděluji tak svůj souhlas se zpracováním zadaných údajů (jméno, telefon, e-mail, ip adresa) společnosti B3 Technology, s.r.o., IČ: 07330600, se sídlem Novostavby 126/23, 435 11 Lom (správce dat), za účelem předání dotazu z tohoto formuláře Vámi vybranému inzerentovi a zpětného kontaktování mé osoby. Osobní údaje bude správce zpracovávat manuálně i automaticky přímo prostřednictvím svých zaměstnanců. Informace předané tímto formulářem budou uloženy v databázi správce maximálně po dobu 10 let. Odvolání souhlasu s uložením a zpracováním poskytnutých dat lze e-mailem na info@origo-reality.cz. V případě podezření na neoprávněné použití Vámi poskytnutých údajů máte právo předat podnět k šetření Úřadu pro ochranu osobních údajů. Více informací
Chystáte se prodat nemovitost?
Pomůžeme Vám!

Přihlášení k odběru

Nenechte si ujít nejnovější nabídky prodeje rodinných domů v Prusinovicích.