Pronájem bytu 2+kk, Brandýs nad Labem-Stará Boleslav, Dřevčická, 62 m2

Dřevčická, Brandýs nad Labem-Stará Boleslav

21 000 Kč
/za měsíc
Získejte výhodnou HYPOTÉKU Chci hypotéku

Parametry bytu

AdresaDřevčická, Brandýs nad Labem-Stará Boleslav
IDBP21825
StavbaCihlová
Stav objektuNovostavba
Patro2.
VlastnictvíOsobní
Užitná plocha62 m2
Sklep
Lodžie
Parkování

Origo partneři v Brandýse nad Labem

Popis

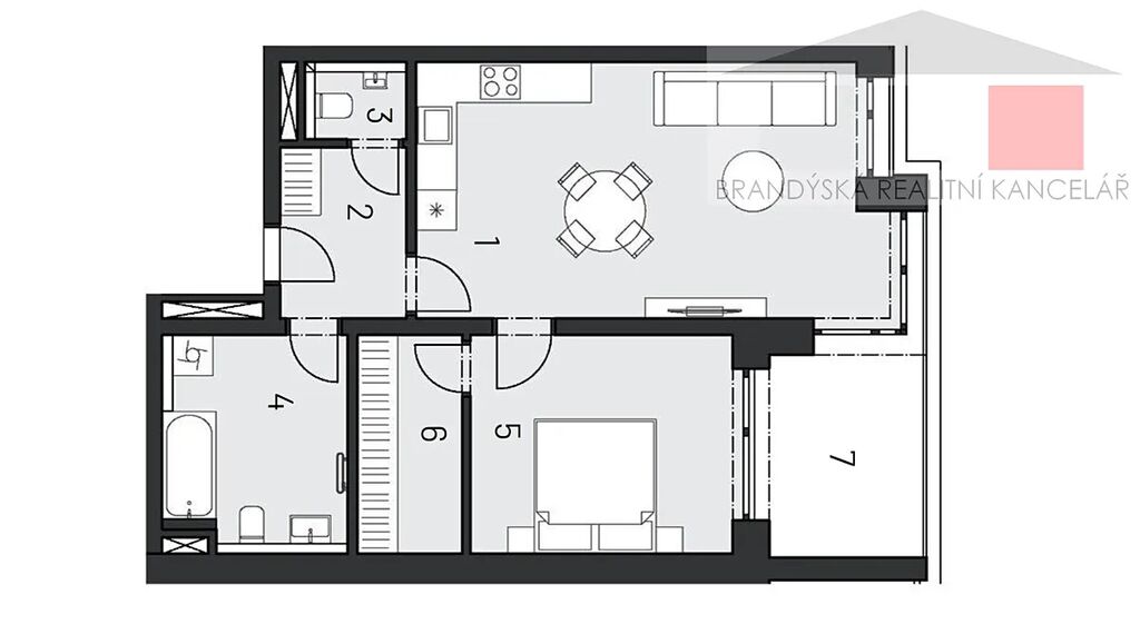
Nabízíme pronájem nadstandartního nového bytu 2+kk s lodžií ve 2. patře Bernardova domu v bytovém projektu Na Mariánské cestě, Brandýs nad Labem. V bytě je prostorný obývací pokoj s kuchyňským koutem (26,4m2) a vstupem na lodžii (8,2m2), ložnice (13,0m2), šatna (5,0m2), chodba (4,7m2), koupelna s WC (8,7m2), samostatné WC (1,7m2). K bytu náleží sklep (2,7m2) a garážové stání v suterénu domu. Kuchyňská linka je ve výrobě a bude kompletně vybavena vestavěnými spotřebiči (indukční varná deska, trouba, digestoř, myčka nádobí, lednice). Byt je úplně nový, dosud neužívaný, orientace na SV. Na všech oknech budou předokenní rolety. Měsíční poplatky pro dvě osoby včetně garážového stání činí 6.100,-Kč + 1.000,-Kč elektřina. Vratná kauce (jistota) 42.000,-Kč, provize RK ve výši jednoho měsíčního nájmu; při podpisu nájemní smlouvy je nutné zaplatit celkem 91.100,-Kč. Žádaná lokalita v blízkosti přírody s dobrou občanskou vybaveností, dojezdová vzdálenost do Prahy ČM cca 20 min.

Makléř

Máte zájem o tento byt?

Tímto, v souladu s nařízením Evropského parlamentu a Rady (EU) 2016/679, v platném znění, prohlašuji, že mi je alespoň 16 let a uděluji tak svůj souhlas se zpracováním zadaných údajů (jméno, telefon, e-mail, ip adresa) společnosti B3 Technology, s.r.o., IČ: 07330600, se sídlem Novostavby 126/23, 435 11 Lom (správce dat), za účelem předání dotazu z tohoto formuláře Vámi vybranému inzerentovi a zpětného kontaktování mé osoby. Osobní údaje bude správce zpracovávat manuálně i automaticky přímo prostřednictvím svých zaměstnanců. Informace předané tímto formulářem budou uloženy v databázi správce maximálně po dobu 10 let. Odvolání souhlasu s uložením a zpracováním poskytnutých dat lze e-mailem na info@origo-reality.cz. V případě podezření na neoprávněné použití Vámi poskytnutých údajů máte právo předat podnět k šetření Úřadu pro ochranu osobních údajů. Více informací
Chystáte se prodat nemovitost?
Pomůžeme Vám!