Pronájem bytu 2+1, Praha - Michle, Jihlavská, 53 m2

Jihlavská, Michle - Praha 4

18 900 Kč
/za měsíc
vratná jistota, náklady na bydlení 5 900 Kč, poplatek za podnájem
Získejte výhodnou HYPOTÉKU Chci hypotéku

Parametry bytu

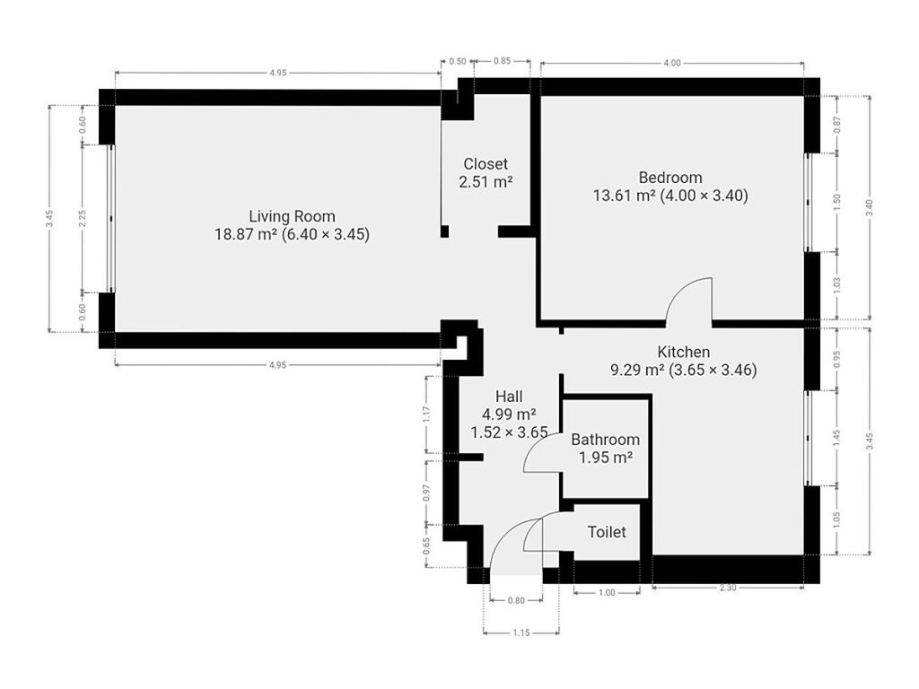
AdresaJihlavská, Michle - Praha 4
IDN6961
StavbaCihlová
Stav objektuVelmi dobrý
Patro5. z 5
VybavenoAno
Typ objektuPatrový
Lokalita objektuKlidná část obce
VlastnictvíOsobní
Užitná plocha53 m2
Podlahová plocha53 m2
Elektřina230V
PlynPlynovod
TopeníÚstřední dálkové
TelekomunikaceTelefon, Internet
DopravaVlak, Dálnice, Silnice, MHD, Autobus
VodaVodovod
Sklep
Výtah

Origo partneři v Praze 4

Stěhovací služby

Výkup a prodej starého nábytku

Popis

K dlouhodobému podnájmu nabízíme kompletně zařízený byt o dispozici 2+1, který se nachází v pátém patře cihlového domu s výtahem v blízkosti metra Budějovická. Byt o celkové výměře 53 m2 má neprůchozí ložnice, v ceně je sklepní kóje.

Lokalita nabízí výbornou dostupnost do centra města. Stanice metra C Budějovická je od bytu pouhých 8 minut chůze. V blízkosti metra se nachází obchodní centrum DBK, Lidl, poliklinika, městský úřad a další občanská vybavenost. Přibližně ve stejné vzdálenosti se nachází Brumlovka, kde jsou další obchody, restaurace, fitness centrum s bazénem a park. I přes perfektní občanskou vybavenost nechybí této lokalitě zeleň. V blízkosti se nachází například Lesopark Habrovka nebo Michelský les.

Byt je ihned k nastěhování.

Uvádíme energetickou náročnost G, jelikož nemáme doloženo PENB.

Byt pronajímá Ideální nájemce - profesionální správce nemovitostí. S námi budete mít po ruce klientskou podporu 24/7, spolehlivé pojištění a díky klientskému portálu můžete mít kdykoli přehled o platbách a najdete zde i praktický formulář pro řešení požadavků. Pojďte bydlet s námi!

Makléř

Máte zájem o tento byt?

Tímto, v souladu s nařízením Evropského parlamentu a Rady (EU) 2016/679, v platném znění, prohlašuji, že mi je alespoň 16 let a uděluji tak svůj souhlas se zpracováním zadaných údajů (jméno, telefon, e-mail, ip adresa) společnosti B3 Technology, s.r.o., IČ: 07330600, se sídlem Novostavby 126/23, 435 11 Lom (správce dat), za účelem předání dotazu z tohoto formuláře Vámi vybranému inzerentovi a zpětného kontaktování mé osoby. Osobní údaje bude správce zpracovávat manuálně i automaticky přímo prostřednictvím svých zaměstnanců. Informace předané tímto formulářem budou uloženy v databázi správce maximálně po dobu 10 let. Odvolání souhlasu s uložením a zpracováním poskytnutých dat lze e-mailem na info@origo-reality.cz. V případě podezření na neoprávněné použití Vámi poskytnutých údajů máte právo předat podnět k šetření Úřadu pro ochranu osobních údajů. Více informací
Chystáte se prodat nemovitost?
Pomůžeme Vám!