Prodej rodinného domu, Staňkovice, 76 m2

Staňkovice, Smilovice

2 900 000 Kč
/za nemovitost
Hypotéka od 12 961 Kč /měs. Chci hypotéku

Parametry domu

AdresaStaňkovice, Smilovice
ID966
StavbaDřevěná
Stav objektuDobrý
VybavenoAno
Druh objektuSamostatný
Užitná plocha76 m2
Zastavěná plocha91 m2
Podlahová plocha133 m2
Plocha pozemku802 m2
Plocha zahrady711 m2
Elektřina230V
OdpadJímka
TopeníLokální tuhá paliva
KomunikaceAsfaltová
DopravaSilnice, Autobus
VodaStudna, Retenční nádrž na dešt’ovou vodu
Topné tělesoRadiátory
Zdroj topeníKotel na tuhá paliva
Zdroj teplé vodyKotel na tuhá paliva
Sklep
Bezbarierový přístup

Origo partneři v Staňkovicích

Popis

Dobrý den,

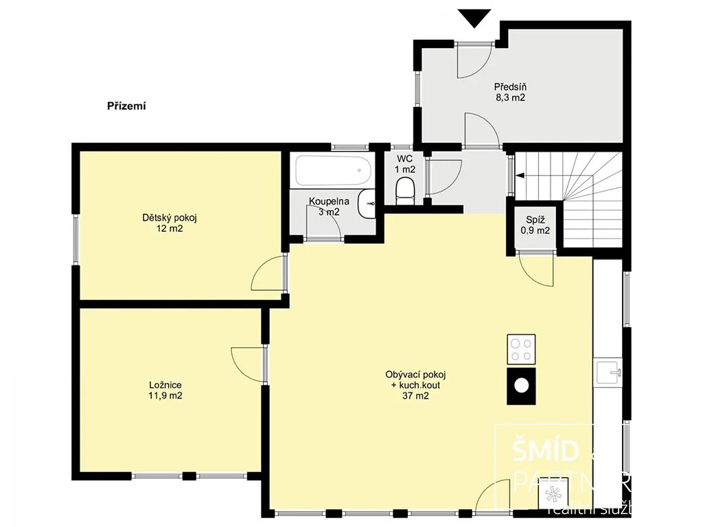
nabízíme k prodeji rodinný dům, dřevostavbu o užitné ploše 76 m2 s prostorným sklepem 57 m2 a pozemkem o výměře 802 m2 v obci Smilovice, okres Kutná Hora. Dispozice 3+kk nabízí pohodlné bydlení a sklepní prostory umožňují rozšíření o další obytné místnosti.

Dům je vytápěn kotlem na tuhá paliva, voda je čerpána z vydatné studny a odpad je sveden do jímky. Pro úsporný provoz slouží také nádrž na dešťovou vodu. K prodeji bude připraveno povolení k připojení na obecní vodovod. Na pozemku jsou již osazeny sloupky pro budoucí jihovýchodní terasu a v rámci prodeje bude vybudován i nový pozvolný sjezd z pozemku.

Pozemek o velikosti 802 m2 poskytuje dostatek prostoru pro zahradu, relaxaci i další případné úpravy. Dům je vhodný jak k trvalému bydlení, tak i k rekreaci díky klidnému prostředí a dobré dostupnosti služeb v nedalekých Uhlířských Janovicích, Sázavě, Ratajích nad Sázavou, nebo třeba Kutné Hoře.

Nemovitost lze financovat hypotečním úvěrem, s nímž vám rádi pomůžeme.
Uvedené m2 jsou orientační.

Pokud Vás nabídka zaujala, neváhejte mě kontaktovat.

Makléř

Máte zájem o tento dům?

Tímto, v souladu s nařízením Evropského parlamentu a Rady (EU) 2016/679, v platném znění, prohlašuji, že mi je alespoň 16 let a uděluji tak svůj souhlas se zpracováním zadaných údajů (jméno, telefon, e-mail, ip adresa) společnosti B3 Technology, s.r.o., IČ: 07330600, se sídlem Novostavby 126/23, 435 11 Lom (správce dat), za účelem předání dotazu z tohoto formuláře Vámi vybranému inzerentovi a zpětného kontaktování mé osoby. Osobní údaje bude správce zpracovávat manuálně i automaticky přímo prostřednictvím svých zaměstnanců. Informace předané tímto formulářem budou uloženy v databázi správce maximálně po dobu 10 let. Odvolání souhlasu s uložením a zpracováním poskytnutých dat lze e-mailem na info@origo-reality.cz. V případě podezření na neoprávněné použití Vámi poskytnutých údajů máte právo předat podnět k šetření Úřadu pro ochranu osobních údajů. Více informací
Chystáte se prodat nemovitost?
Pomůžeme Vám!

Přihlášení k odběru

Nenechte si ujít nejnovější nabídky prodeje rodinných domů v Staňkovicích (okr. Kutná Hora).