Prodej bytu 2+kk, Letovice, Komenského, 57 m2 (ID: 1893509)

Komenského, Letovice

4 990 000 Kč
/za nemovitost
Hypotéka od 22 302 Kč /měs. Chci hypotéku

Parametry bytu

AdresaKomenského, Letovice
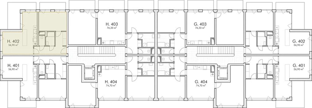
IDH.402
StavbaSmíšená
Stav objektuVe výstavbě
Patro4. z 4
Lokalita objektuKlidná část obce
VlastnictvíOsobní
Užitná plocha57 m2
Třída energetické náročnostiB - Velmi úsporná
OdpadVeřejná kanalizace
KomunikaceAsfaltová
TelekomunikaceInternet
DopravaVlak, Silnice, MHD, Autobus
VodaVodovod
Topné tělesoPodlahové vytápění
Zdroj topeníÚstřední dálkové
Zdroj teplé vodyCentrální dálkový ohřev
Balkon
Výtah
Bezbarierový přístup

Origo partneři v Letovicích

Popis

Nabízíme k prodeji prosluněný byt 2+kk s krásnými výhledy do krajiny a hned dvěma prostornými balkony, který se nachází ve 4. nadzemním podlaží (nejvyšším) bytového domu v projektu Rezidence Zlatá Pole.
Byt označený jako H.402 bude připraven k nastěhování ještě letos, takže si můžete užít nové bydlení bez čekání.

Byt nabízí praktické a vzdušné řešení s dostatkem denního světla díky jižní a jihozápadní orientaci oken.
Hlavní obytný prostor tvoří světlý obývací pokoj s přípravou pro kuchyňskou linku, místem pro jídelní stůl a velkými balkonovými dveřmi, které vedou na rohový balkon s krásným výhledem.
Samostatná ložnice o velikosti více než 13 m² má vlastní soukromý balkon, ideální pro ranní kávu nebo večerní odpočinek.
Koupelna je vybavena umyvadlem a prodlouženým sprchovým koutem, toaleta je samostatná.
V domě je výtah a kočárkárna. K bytu je možné dokoupit sklepní kóji a venkovní parkovací stání.

Nové bytové domy v rámci druhé etapy projektu Rezidence Zlatá Pole navazují na úspěšně dokončenou první etapu a budou dokončeny a předány již v závěru letošního roku.
Byty jsou realizovány ve stejném kvalitním standardu:

- hliníková okna s izolačním trojsklem,
- vodovodní podlahové vytápění,
- zelené střechy přispívající k lepšímu mikroklimatu,
- kvalitní komunikační jádro,
- energetická třída B – úsporný a komfortní provoz.


Projekt Rezidence Zlatá Pole se nachází v klidné a strategicky umístěné části Letovic.
Do centra města se dostanete pěšky za 15 minut, autem za 3 minuty.
V bezprostředním okolí naleznete veškerou občanskou vybavenost – základní a mateřskou školu přímo naproti domu, potraviny, ordinaci lékaře, zámecký park i další služby.

Makléř

Máte zájem o tento byt?

Tímto, v souladu s nařízením Evropského parlamentu a Rady (EU) 2016/679, v platném znění, prohlašuji, že mi je alespoň 16 let a uděluji tak svůj souhlas se zpracováním zadaných údajů (jméno, telefon, e-mail, ip adresa) společnosti B3 Technology, s.r.o., IČ: 07330600, se sídlem Novostavby 126/23, 435 11 Lom (správce dat), za účelem předání dotazu z tohoto formuláře Vámi vybranému inzerentovi a zpětného kontaktování mé osoby. Osobní údaje bude správce zpracovávat manuálně i automaticky přímo prostřednictvím svých zaměstnanců. Informace předané tímto formulářem budou uloženy v databázi správce maximálně po dobu 10 let. Odvolání souhlasu s uložením a zpracováním poskytnutých dat lze e-mailem na info@origo-reality.cz. V případě podezření na neoprávněné použití Vámi poskytnutých údajů máte právo předat podnět k šetření Úřadu pro ochranu osobních údajů. Více informací
Chystáte se prodat nemovitost?
Pomůžeme Vám!

Přihlášení k odběru

Nenechte si ujít nejnovější nabídky prodeje bytů 2+kk v Letovicích.