Pronájem bytu 1+kk, Hradec Králové - Třebeš, Ve Stromovce, 41 m2

Ve Stromovce, Hradec Králové, Třebeš

13 000 Kč
/za měsíc
Získejte výhodnou HYPOTÉKU Chci hypotéku

Parametry bytu

AdresaVe Stromovce, Hradec Králové, Třebeš
IDN669
StavbaSmíšená
Stav objektuDobrý
Lokalita objektuKlidná část obce
VlastnictvíOsobní
Užitná plocha41 m2
Třída energetické náročnostiC - Úsporná

Origo partneři v Hradci Králové

Popis

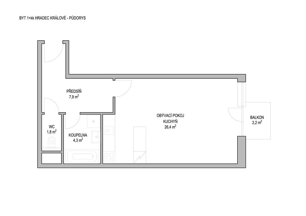
Zprostředkuji Vám pronájem velmi hezkého a světlého bytu o dispozicí 1+kk a celkové velikosti cca 45 m² včetně příslušenství (balkon, sklep).

Tento jižně situovaný byt se nachází ve 3. NP moderního bytového domu s výtahem a soukromou zahradou do vnitrobloku. Jde o velmi žádanou lokalitu, konkrétně ulici Ve Stromovce, Třebeš, Hradec Králové.

Byt disponuje prostornou chodbou, samostatným WC, velkou koupelnou, a světlým pokojem s odděleným kuchyňským koutem. Nabízí se částečně vybavený - kuchyňská linka se spotřebiči, bar se židlemi, šatní skříň v předsíni, v koupelně je funkční pračka (nebude se v budoucnu nahrazovat).

V okolí bytu se nachází všechna občanská vybavenost důležitá ke komfortnímu užívání - od restaurace, nebo kavárny a lokálních potravin naproti na Trzích Stromovka, až po mateřské základní školy, lékaře (Fakultní nemocnice HK) a další.
MHD je před prakticky před domem. Parkování v okolí domu.

Okolí domu nabízí velmi příjemné prostředí vhodné pro procházky a výlety na kole, i díky nedaleké stezce podél slepého ramena Labe, nebo opačným směrem, do centra města.

V bytě jsou nízké měsíční náklady. Nájem ve výši 13.000,- Kč měsíčně + zálohy na služby 2.000,- Kč pro jednu osobu (v případě 2 os. výše 2.600,- Kč), + převod elektřiny na nájemce (cca 700,- Kč). Vratná kauce 18.000,- Kč a poplatek RK ve výši 13.000,- Kč.

Byt je volný od ledna 2026.

Makléř

Máte zájem o tento byt?

Tímto, v souladu s nařízením Evropského parlamentu a Rady (EU) 2016/679, v platném znění, prohlašuji, že mi je alespoň 16 let a uděluji tak svůj souhlas se zpracováním zadaných údajů (jméno, telefon, e-mail, ip adresa) společnosti B3 Technology, s.r.o., IČ: 07330600, se sídlem Novostavby 126/23, 435 11 Lom (správce dat), za účelem předání dotazu z tohoto formuláře Vámi vybranému inzerentovi a zpětného kontaktování mé osoby. Osobní údaje bude správce zpracovávat manuálně i automaticky přímo prostřednictvím svých zaměstnanců. Informace předané tímto formulářem budou uloženy v databázi správce maximálně po dobu 10 let. Odvolání souhlasu s uložením a zpracováním poskytnutých dat lze e-mailem na info@origo-reality.cz. V případě podezření na neoprávněné použití Vámi poskytnutých údajů máte právo předat podnět k šetření Úřadu pro ochranu osobních údajů. Více informací
Chystáte se prodat nemovitost?
Pomůžeme Vám!