Pronájem bytu 2+1, Brno, Hlinky, 44 m2

Hlinky, Staré Brno

15 500 Kč
/za měsíc
náklady na bydlení = zálohy na služby 2700 Kč + servisní poplatek 1103 Kč; neplatí se provize RK - jsme majitelé objektu;
Získejte výhodnou HYPOTÉKU Chci hypotéku

Parametry bytu

Náklady na bydlení3803
AdresaHlinky, Staré Brno
StavbaSkeletová
Stav objektuVelmi dobrý
Patro2. z 6
VybavenoČástečně
Lokalita objektuCentrum obce
VlastnictvíOsobní
Užitná plocha44 m2
Třída energetické náročnostiB - Velmi úsporná
Ukazatel energetické náročnosti99 kWh/m2 za rok
Elektřina230V
OdpadVeřejná kanalizace
KomunikaceAsfaltová
DopravaDálnice, Silnice, MHD, Autobus
VodaVodovod
Topné tělesoRadiátory
Zdroj topeníPlynový kondenzační kotel
Zdroj teplé vodyPlynový kondenzační kotel
Terasa
Výtah
Bezbarierový přístup
Parkování

Origo partneři v Brně

Popis

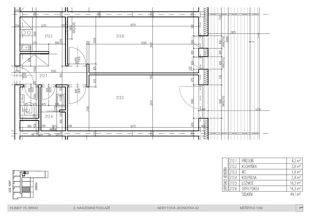
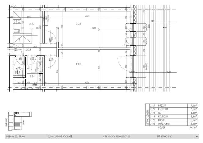
Z pozice majitele objektu nabízíme k pronájmu byt č. 22 o výměře 44,1 m² a dispozici 2+1 s terasou do vnitrobloku, nacházející se ve 2. nadzemním podlaží moderního polyfunkčního domu se dvěma výtahy. Dům je situován na prestižní adrese Hlinky 995/70, Brno, přímo u zastávek MHD „Výstaviště – hlavní vstup“ (tramvaj i trolejbus).

Díky výborné poloze je zajištěna rychlá a pohodlná dostupnost do centra města, stejně jako napojení na hlavní dopravní tahy.

Součástí objektu je:
• prádelna s pračkou a sušičkou k dispozici nájemcům
• soukromá zahrada ve vnitrobloku o velikosti cca 450 m²

Dispozice bytu:
→ Pokoje (16,3 a 16,2 m²) - světlý, orientovaný do zahrady
→ Kuchyňka (3,6 m²) - linka s dvouploténkovým vařičem a lednicí
→ Koupelna (2,4 m²) - se sprchovým koutem
→ WC (1,4 m²) - samostatné, s umyvadlem
→ Šatna (2,8 m²) - vybavená šatní skříní
→ Předsíň (4,2 m²)
→ Terasa (cca 13 m²)

Cena pronájmu:
• Nájemné: 15.500,- Kč/měsíc
• Servisní poplatek: 1.103,- Kč/měsíc
• Zálohy na služby: 2.700,- Kč/měsíc
• Kauce ("jistota"): 2 měsíční nájmy = 35.000,- Kč
V případě zájmu možný odkup jednoho dvoulůžka s matrací a velká šatní skříň po předchozím nájemci jiného bytu.

K dispozici: IHNED po podpisu smlouvy a složení jistoty (nejdříve od 1.1.2026)

V případě, že tato jednotka nesplňuje Vaše představy, rádi Vám nabídneme další, které máme aktuálně v nabídce – 1+kk s terasou o výměře 44,4 m² nebo 2+1 s balkonem o výměře 48,1 m².

Parkování:
Možnost pronájmu garážového stání v 1.NP domu za 3.000,- Kč/měsíc. V okolí domu parkovací zóna C.

Pro více informací nás neváhejte kontaktovat (ideálně e-mailem, ve kterém uvedete základní informace o Vás). Rádi se s Vámi následně domluvíme na osobní prohlídce.

Makléř

Máte zájem o tento byt?

Tímto, v souladu s nařízením Evropského parlamentu a Rady (EU) 2016/679, v platném znění, prohlašuji, že mi je alespoň 16 let a uděluji tak svůj souhlas se zpracováním zadaných údajů (jméno, telefon, e-mail, ip adresa) společnosti B3 Technology, s.r.o., IČ: 07330600, se sídlem Novostavby 126/23, 435 11 Lom (správce dat), za účelem předání dotazu z tohoto formuláře Vámi vybranému inzerentovi a zpětného kontaktování mé osoby. Osobní údaje bude správce zpracovávat manuálně i automaticky přímo prostřednictvím svých zaměstnanců. Informace předané tímto formulářem budou uloženy v databázi správce maximálně po dobu 10 let. Odvolání souhlasu s uložením a zpracováním poskytnutých dat lze e-mailem na info@origo-reality.cz. V případě podezření na neoprávněné použití Vámi poskytnutých údajů máte právo předat podnět k šetření Úřadu pro ochranu osobních údajů. Více informací
Chystáte se prodat nemovitost?
Pomůžeme Vám!

Přihlášení k odběru

Nenechte si ujít nejnovější nabídky pronájmu bytů 2+1 v Brně.