Prodej rodinného domu, Benecko, 635 m2 (ID: 1891605)

Benecko

Cena na vyžádání
/za nemovitost
Dohodou
Získejte výhodnou HYPOTÉKU Chci hypotéku

Parametry domu

AdresaBenecko
ID111
StavbaCihlová
Stav objektuVelmi dobrý
VybavenoAno
Druh objektuSamostatný
Lokalita objektuKlidná část obce
Užitná plocha635 m2
Plocha pozemku1099 m2
Třída energetické náročnostiE - Nehospodárná
Elektřina400V
PlynPlynovod
OdpadVeřejná kanalizace
TopeníÚstřední plynové
KomunikaceAsfaltová
DopravaSilnice, Autobus
Topné tělesoPodlahové vytápění, Radiátory, Krb
Zdroj topeníPlynový kondenzační kotel
Zdroj teplé vodyPlynový kondenzační kotel
Sklep
Parkování
Bazén

Origo partneři v Benecku

Rekonstrukce

Úklidové služby

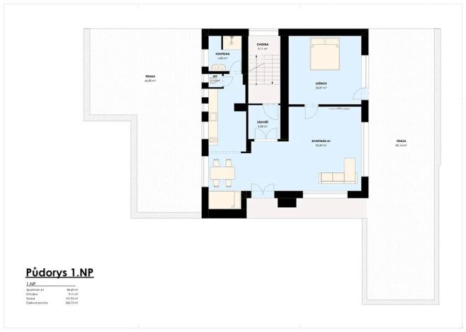
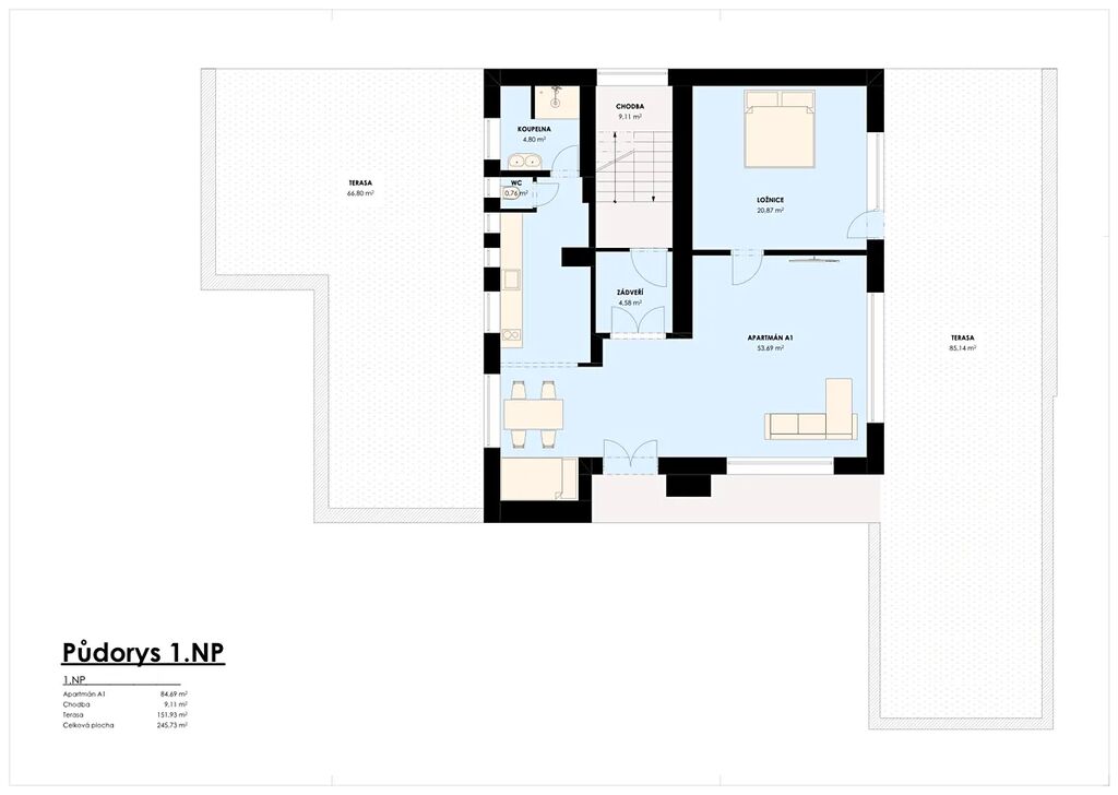
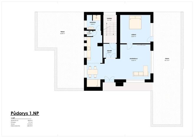
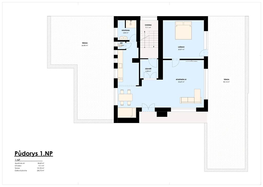
Popis

Benecko-Prodej RD s Wellness a pensionem,apartmány. Wellness: vyhřívaný vnitřní bazén, 2x sauna / fin. + pára. Barem, hernou. Šatnou a lyžárnou.Kryté venkovní grilování. Dům se nachází v centrální části obce s vyhlídkou na Krkonoše a s přímým dostupem na lanovku Kejnos.
Tato luxusní nemovitost, která prošla v roce 2018 cekovou rekonstrukcí s přístavbou welness-bazénu,saun/finská a parní/,zázemí a teras. Tento dům zajistí vysoké požadavky budoucího nového majitele. Více info najdete v naší galerii včetně projektu půdorysů.
Vybavení je součástí prodeje. Příjezd po celý rok po asfaltové komunikaci. Vlasní parkovací stání 6x z toho 2x kryté. Na nemovitosti neváznou žádná břemena, či jiná zástavní práva. Těšíme se na osobní setkání, spolupráci přímo na Benecku spojenou s prohlídkou domu..

Makléř

Máte zájem o tento dům?

Tímto, v souladu s nařízením Evropského parlamentu a Rady (EU) 2016/679, v platném znění, prohlašuji, že mi je alespoň 16 let a uděluji tak svůj souhlas se zpracováním zadaných údajů (jméno, telefon, e-mail, ip adresa) společnosti B3 Technology, s.r.o., IČ: 07330600, se sídlem Novostavby 126/23, 435 11 Lom (správce dat), za účelem předání dotazu z tohoto formuláře Vámi vybranému inzerentovi a zpětného kontaktování mé osoby. Osobní údaje bude správce zpracovávat manuálně i automaticky přímo prostřednictvím svých zaměstnanců. Informace předané tímto formulářem budou uloženy v databázi správce maximálně po dobu 10 let. Odvolání souhlasu s uložením a zpracováním poskytnutých dat lze e-mailem na info@origo-reality.cz. V případě podezření na neoprávněné použití Vámi poskytnutých údajů máte právo předat podnět k šetření Úřadu pro ochranu osobních údajů. Více informací
Chystáte se prodat nemovitost?
Pomůžeme Vám!

Přihlášení k odběru

Nenechte si ujít nejnovější nabídky prodeje rodinných domů v Benecku.