Prodej rodinného domu, Adamov, Josefovská, 96 m2

Josefovská, Adamov

4 428 000 Kč
/za nemovitost
cena je už včetně provize a právního servisu
Hypotéka od 19 790 Kč /měs. Chci hypotéku

Parametry domu

AdresaJosefovská, Adamov
ID042-264
StavbaSmíšená
Stav objektuPřed rekonstrukcí
Druh objektuV bloku
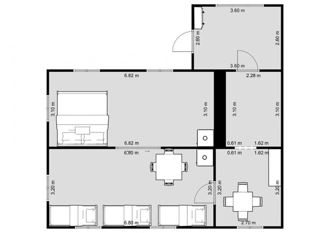
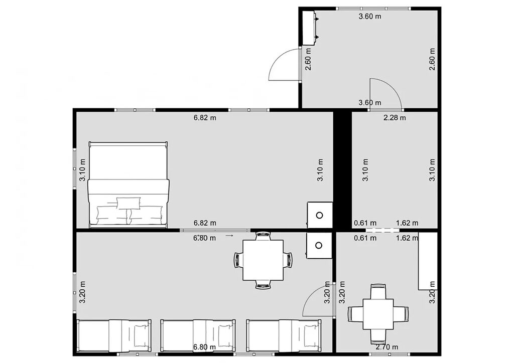
Užitná plocha96 m2
Zastavěná plocha96 m2
Podlahová plocha96 m2
Plocha pozemku1312 m2
Plocha zahrady1216 m2
Třída energetické náročnostiG - Mimořádně nehospodárná
Elektřina230V, 400V
OdpadJímka
TopeníLokální tuhá paliva
KomunikaceAsfaltová
TelekomunikaceTelefon
DopravaAutobus
VodaMístní zdroj vody
Topné tělesoKrbová kamna, Kamna
Zdroj topeníKamna
Bezbarierový přístup
Parkování

Origo partneři v Adamově

Popis

Ve výhradním zastoupení majitele Vám nabízím ke koupi pozemek, jehož součástí je rodinný dům nacházející se na výjimečném místě poblíž archeologicky významné oblasti Býčí skála. Tento dům je situován nedaleko muzea Stará Huť v malebném Křtinském údolí, jenž je vzdálený 15 km od Brna. Pozemek o rozloze 1312 m je přístupný autem. Zastavěná plocha domu je 86 m, přístavek 10 m, kůlna cca 25 m vše evidované v katastru nemovitostí. Dispozice domu je 2+1 s nevyužívanou půdou přístupnou z venku. Vedle domu stojí torzo bývalého rychlého občerstvení, které bylo vítanou turistickou zastávkou. Dle územního plánu je celý pozemek v ploše pro individuální bydlení. Dům není památkově chránění, avšak na celou lokalitu se vztahují omezení v rámci ochrany památkové rezervace. Z toho vyplívá, že rekonstrukce, přístavba a novostavba je přípustná, ale jen se svolením dotčených orgánu, které budou trvat na zachování vizuálně původního charakteru lokality. V blízkosti souboru nemovitostí je autobusová zastávka Adamov, Stará huť. Objekt je v původním stavu, bez koupelny a WC (pouze jímka a budka), elektřina i obecní vodovod jsou zavedeny. Okolní majitelé nemovitostí si vybudovali vlastní čističky odpadních vod. Vytápění nemovitosti je tuhými palivem. Součástí prodeje je i sklípek nedaleko pozemku. Podél pozemku protéká nádherný a čistý Křtinský potok, jenž je od zahrady oddělen hliněným bezpečnostním valem. Aktuálně je objekt vhodný pro rekreaci, ale můžete si z něj vytvořit výjimečný prostor pro bydlení nebo komerční rekreaci. Koupi nemovitosti doporučuji hlavně milovníků lesů, lesních potoků, jedinečných jeskyní a nadšencům pro archeologii.

Makléř

Máte zájem o tento dům?

Tímto, v souladu s nařízením Evropského parlamentu a Rady (EU) 2016/679, v platném znění, prohlašuji, že mi je alespoň 16 let a uděluji tak svůj souhlas se zpracováním zadaných údajů (jméno, telefon, e-mail, ip adresa) společnosti B3 Technology, s.r.o., IČ: 07330600, se sídlem Novostavby 126/23, 435 11 Lom (správce dat), za účelem předání dotazu z tohoto formuláře Vámi vybranému inzerentovi a zpětného kontaktování mé osoby. Osobní údaje bude správce zpracovávat manuálně i automaticky přímo prostřednictvím svých zaměstnanců. Informace předané tímto formulářem budou uloženy v databázi správce maximálně po dobu 10 let. Odvolání souhlasu s uložením a zpracováním poskytnutých dat lze e-mailem na info@origo-reality.cz. V případě podezření na neoprávněné použití Vámi poskytnutých údajů máte právo předat podnět k šetření Úřadu pro ochranu osobních údajů. Více informací
Chystáte se prodat nemovitost?
Pomůžeme Vám!

Přihlášení k odběru

Nenechte si ujít nejnovější nabídky prodeje rodinných domů v Adamově (okr. Blansko).