Prodej pozemku pro bydlení, Jablonec nad Nisou, 577 m2

Jablonec nad Nisou, Kokonín

3 000 000 Kč
/za nemovitost
Hypotéka od 13 408 Kč /měs. Chci hypotéku

Parametry pozemku

AdresaJablonec nad Nisou, Kokonín
Lokalita objektuOkraj obce
Plocha pozemku577 m2
Elektřina230V
OdpadVeřejná kanalizace
KomunikaceAsfaltová
VodaVodovod

Origo partneři v Jablonci nad Nisou

Rekonstrukce

Úklidové služby

Pojištění a finance

Popis

Dobrý den,

dovolte nám, nabídnout Vám možnost koupě stavebního pozemku pro výstavbu RD s platným stavebním povolení na výstavbu rodinného domu v městské části Kokonín statutárního města Jablonce nad Nisou.

Obec Kokonín je částí statutárního města Jablonec nad Nisou a nachází se na jihu města. Disponuje základní občanskou vybaveností, jako jsou obchody potravin, restaurace, mateřská a základní škola apod. Plnou občanskou vybavenost pak naleznete v centru města Jablonec nad Nisou. Dopravně je Kokonín obsluhován městskou hromadnou dopravou města Jablonce nad Nisou, zejména autobusovou dopravou. Centrum města je dobře dopravně dostupné automobilem do 5 minut jízdy. Předmětný stavební pozemek leží na okraji obce Kokonín a v jeho blízkosti jsou již lesy, což pozemku dává nezanedbatelnou přidanou hodnotu, zejména v oblasti relaxace a odpočinku.

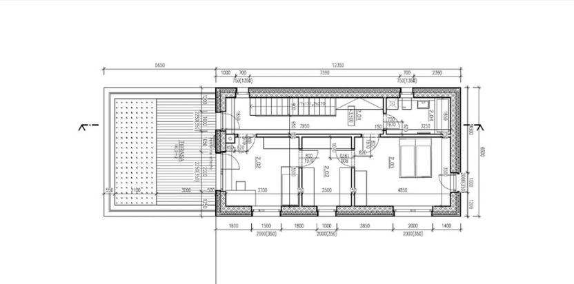
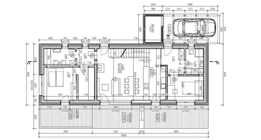
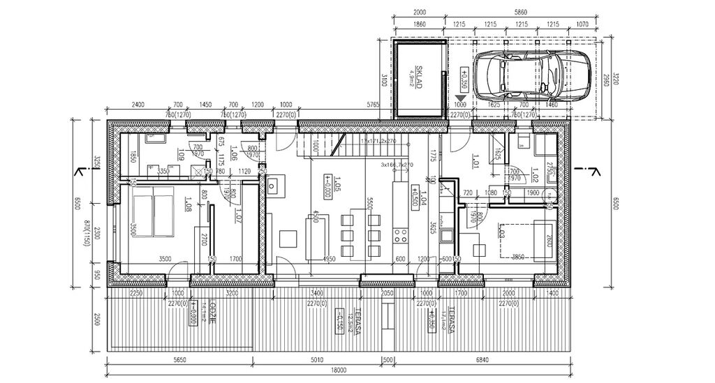
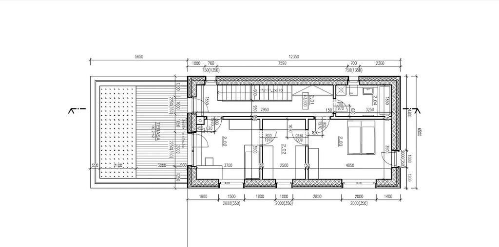
Stavební pozemek pro výstavbu rodinného domu o celkové výměře 577 m2 a investorská práva na výstavbu rodinného domu v podobě stavebního povolení v právní moci včetně projektové dokumentace pro stavební povolení a všech souvisejících podkladů a dokumentů.
Stavební pozemek se skládá ze dvou pozemků, a to z pozemku parc. č. 684/9 o výměře 40 m2 a z pozemku parc. č. 684/4 o výměře 537 m2, vše je zapsáno na listu vlastnictví č. 560 pro katarální území Kokonín, obec Jablonec nad Nisou. Na pozemku povolena výstavba dvoupodlažního rodinného domu. Pozemky se prodávají s platným stavebním povolením na výstavbu rodinného domu o dispozičním řešení 5+KK o celkové kapacitě 181 m2 vnitřní užitné plochy a cca 60 m2 teras. Dům má navržen 2 nadzemní podlaží a je částečně podsklepen. U domu je navrženo kryté parkovací stání pro 1 automobil.

Významná specifika:
• Stavební pozemek s platným stavebním povolením (SP v právní moci 05/2025), tudíž lze ihned přistoupit k realizaci domu.
• Celková výměra pozemků je 577 m2
• Stavební pozemek disponuje vodovodní přípojkou, přípojkou elektrické energie (do 12/2025) a přípojkou kanalizace.
• Povolený RD má dispozici 5+ KK a užitnou plochu 181 m2 + cca 60 m2 teras, lze individuálně úpravit.
• Pozemek leží v blízkosti lesa v klidové části obce, kde se rozvolněná zástavba.
• Výborná poloha vůči centru města Jablonec nad Nisou – velmi dobrá dopravní dostupnost.

Prohlídka je možná po předchozí dohodě ve své podstatě kdykoliv.

Makléř

Máte zájem o tento pozemek?

Tímto, v souladu s nařízením Evropského parlamentu a Rady (EU) 2016/679, v platném znění, prohlašuji, že mi je alespoň 16 let a uděluji tak svůj souhlas se zpracováním zadaných údajů (jméno, telefon, e-mail, ip adresa) společnosti B3 Technology, s.r.o., IČ: 07330600, se sídlem Novostavby 126/23, 435 11 Lom (správce dat), za účelem předání dotazu z tohoto formuláře Vámi vybranému inzerentovi a zpětného kontaktování mé osoby. Osobní údaje bude správce zpracovávat manuálně i automaticky přímo prostřednictvím svých zaměstnanců. Informace předané tímto formulářem budou uloženy v databázi správce maximálně po dobu 10 let. Odvolání souhlasu s uložením a zpracováním poskytnutých dat lze e-mailem na info@origo-reality.cz. V případě podezření na neoprávněné použití Vámi poskytnutých údajů máte právo předat podnět k šetření Úřadu pro ochranu osobních údajů. Více informací
Chystáte se prodat nemovitost?
Pomůžeme Vám!
Theleadway banner