Prodej rodinného domu, Olomouc, Kopřivová, 162 m2 (ID: 1890861)

Kopřivová, Olomouc, Holice

12 800 000 Kč
/za nemovitost
Hypotéka od 57 208 Kč /měs. Chci hypotéku

Parametry domu

AdresaKopřivová, Olomouc, Holice
ID00096
StavbaCihlová
Stav objektuNovostavba
Druh objektuŘadový
Užitná plocha162 m2
Zastavěná plocha152 m2
Plocha pozemku294 m2
Plocha zahrady142 m2
Třída energetické náročnostiC - Úsporná
Ukazatel energetické náročnosti106 kWh/m2 za rok
VodaStudna
Zdroj teplé vodyElektrokotel

Origo partneři v Olomouci

Popis

Vážení klienti, představujeme Vám krásnou novostavbu rodinného domu na ulici Kopřivová v Holici. Jedná se o okrajovou část města s výbornou dostupností do centra, ve slepé ulici a nabízí velmi klidné bydlení.

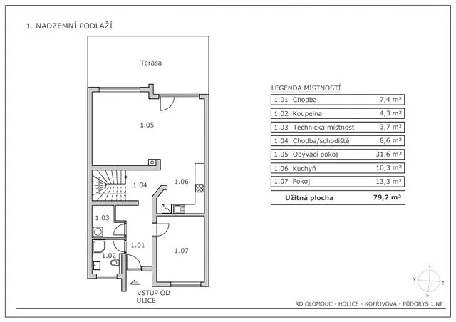
Předmětem prodeje je zděný řadový dům, který byl zkolaudovaný jako novostavba v roce 2022. Objekt s vnitřní podlahovou plochou 162 m2 a dispozicí 5+kk s technickou místností a dvěma koupelnami, je situován na pozemku o výměře 294 m2.

Dispozice domu nabízí prostorné zádveří s úložnými prostory a vstupem do pracovny (13,5 m2), koupelny se sprchovým koutem, umyvadlem, toaletou a technickou místností s pračkou, sušičkou a technologií domu. Přízemí dále nabízí schodišťový prostor s praktickým světlíkem pro přísun denního světla a vstup do hlavního obytného prostoru. Ten má výměru 42 m2 a nabízí dostatek místa pro velkou kuchyňskou linku, jídelní stůl, televizní stěnu a prostornou sedací soupravu. Výhodou je zde prosvětlený interiér díky jižní orientaci a také možnost využití komínové vložky pro krb v zimních měsících. Z prostoru jídelny se vstupuje na částečně krytou terasu s krásným výhledem do zahrady a stromořadí za ní. Zahrada je rovinatá a velmi jednoduchá na údržbu.

Po schodišti s LED osvětlením se dostaneme do druhého nadzemního podlaží. Zde se nachází koupelna s vanou, toaletou, dvojitým umyvadlem a sprchou. Ložnice zde tvoří 3 velké pokoje o výměře 17,5 m2, 22 m2 a 16 m2 s velkou šatnou 7 m2, který je orientovaný do ulice.

Dům je zateplený a velmi úsporný. Vytápění je řešeno tepelným čerpadlem vzduch/vzduch a elektro-kotlem s přenosem do radiátorů. Objekt má velmi nízké náklady do 4 tis. /měsíc. Voda je v lokalitě řešena vrtem, kanalizace septikem s možností předělání na ČOV.

Před domem se nachází parkovací stání pro dva osobní automobily.

Nemovitost je ve výborném stavu bez jediné známky užívání. Dům je pro rodinu, která hledá velmi prostorné a klidné bydlení v zánovním domě na okraji Olomouce.

Více informací a právní stav nemovitosti u makléře Petra Hanáka.

Makléř

Máte zájem o tento dům?

Tímto, v souladu s nařízením Evropského parlamentu a Rady (EU) 2016/679, v platném znění, prohlašuji, že mi je alespoň 16 let a uděluji tak svůj souhlas se zpracováním zadaných údajů (jméno, telefon, e-mail, ip adresa) společnosti B3 Technology, s.r.o., IČ: 07330600, se sídlem Novostavby 126/23, 435 11 Lom (správce dat), za účelem předání dotazu z tohoto formuláře Vámi vybranému inzerentovi a zpětného kontaktování mé osoby. Osobní údaje bude správce zpracovávat manuálně i automaticky přímo prostřednictvím svých zaměstnanců. Informace předané tímto formulářem budou uloženy v databázi správce maximálně po dobu 10 let. Odvolání souhlasu s uložením a zpracováním poskytnutých dat lze e-mailem na info@origo-reality.cz. V případě podezření na neoprávněné použití Vámi poskytnutých údajů máte právo předat podnět k šetření Úřadu pro ochranu osobních údajů. Více informací
Chystáte se prodat nemovitost?
Pomůžeme Vám!

Přihlášení k odběru

Nenechte si ujít nejnovější nabídky prodeje rodinných domů v Olomouci.