Prodej rodinného domu, Luhačovice, Mlýnská, 175 m2

Mlýnská, Luhačovice

13 699 000 Kč
/za nemovitost
Cena včetně výstavby domu, kolaudace, pozemku, terasy, parkování a zahrady. Dům č.2.
Hypotéka od 61 226 Kč /měs. Chci hypotéku

Parametry domu

AdresaMlýnská, Luhačovice
ID32002
StavbaCihlová
Stav objektuVe výstavbě
Typ objektuPatrový
Druh objektuSamostatný
Lokalita objektuCentrum obce
Užitná plocha175 m2
Zastavěná plocha117 m2
Podlahová plocha175 m2
Plocha pozemku850 m2
Třída energetické náročnostiA - Mimořádně úsporná
Ukazatel energetické náročnosti49 kWh/m2 za rok
Lodžie
Terasa
Parkování

Origo partneři v Luhačovicích

Popis

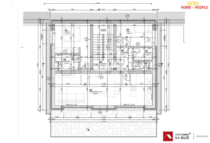
Zprostředkujeme Vám výstavbu novostavby rodinného domu 5+kk o celkové podlahové výměře 175 m² s terasou, zahradou a parkovacím místem přímo v srdci Luhačovic.

Představujeme vám jedinečnou příležitost vlastnit moderní a flexibilní dvoupodlažní rodinný dům na klíč, situovaný v samém centru prestižních Luhačovic.
Tato luxusní novostavba splňuje ty nejvyšší nároky na komfortní bydlení a zároveň otevírá neomezené možnosti pro investici a podnikání.

Bydlení, kde se potkává luxus s flexibilitou.
Bydlete v pěší dostupnosti centra města, lázeňské kolonády a veškeré občanské vybavenosti. Život v centru Luhačovic nikdy nebyl pohodlnější.

Dům o dispozici 5+kk s promyšleným dvoupodlažním uspořádáním poskytuje dostatek soukromí a prostoru pro velkou rodinu.
Každé podlaží je navrženo pro maximální pohodlí, včetně samostatné koupelny s WC.
Vychutnejte si ranní kávu nebo večerní posezení na prostorné terase s výhledem do privátní zahrady, která tvoří klidnou oázu uprostřed města.
Zajištěno je parkovací stání pro 2 automobily přímo u domu.

Nenechte si ujít tuto exkluzivní šanci vlastnit luxusní rodinnou vilu v jedné z nejvyhledávanějších lázeňských lokalit v Česku.
Ať už hledáte ideální rodinné sídlo, nebo chytrou investiční příležitost, tento dům je připraven splnit vaše sny.

Projekt domu nakreslený a schválený. Stavební povolení vydané, můžeme zahájit stavbu do 14 dnů od podpisu smlouvy.
Pro kompletní specifikace, vizualizace a sjednání osobní schůzky nás neváhejte kontaktovat. Ev. číslo: 32002.

Makléř

Máte zájem o tento dům?

Tímto, v souladu s nařízením Evropského parlamentu a Rady (EU) 2016/679, v platném znění, prohlašuji, že mi je alespoň 16 let a uděluji tak svůj souhlas se zpracováním zadaných údajů (jméno, telefon, e-mail, ip adresa) společnosti B3 Technology, s.r.o., IČ: 07330600, se sídlem Novostavby 126/23, 435 11 Lom (správce dat), za účelem předání dotazu z tohoto formuláře Vámi vybranému inzerentovi a zpětného kontaktování mé osoby. Osobní údaje bude správce zpracovávat manuálně i automaticky přímo prostřednictvím svých zaměstnanců. Informace předané tímto formulářem budou uloženy v databázi správce maximálně po dobu 10 let. Odvolání souhlasu s uložením a zpracováním poskytnutých dat lze e-mailem na info@origo-reality.cz. V případě podezření na neoprávněné použití Vámi poskytnutých údajů máte právo předat podnět k šetření Úřadu pro ochranu osobních údajů. Více informací
Chystáte se prodat nemovitost?
Pomůžeme Vám!

Přihlášení k odběru

Nenechte si ujít nejnovější nabídky prodeje rodinných domů v Luhačovicích.