Pronájem kanceláře, Uherské Hradiště, Dlouhá, 65 m2

Dlouhá, Uherské Hradiště

9 400 Kč
/za měsíc
bez DPH, bez poplatků, + provize RK
Získejte výhodnou HYPOTÉKU Chci hypotéku

Parametry nemovitosti

AdresaDlouhá, Uherské Hradiště
ID03387
StavbaCihlová
Stav objektuVelmi dobrý
VybavenoAno
Typ objektuPatrový
Užitná plocha65 m2
Třída energetické náročnostiG - Mimořádně nehospodárná
Výtah

Origo partneři v Uherském Hradišti

Popis

Nabízíme k pronájmu lukrativní a kompletně vybavené kancelářské prostory s balkonem v samotném centru Uherského Hradiště, nedaleko Mariánského náměstí na ulici Dlouhá.
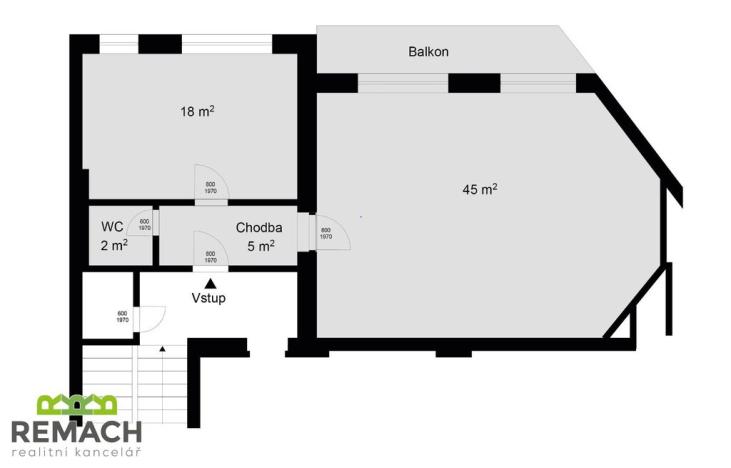
Kancelář o celkové ploše 70m2 se nachází ve 3. patře , který je rozdělen na dva kancelářské neprůchozí prostory se sociálním zařízením, viz. půdorys. Celý prostor je vybaven nábytkem na míru. K dispozici je klimatizace.
Cena je ve výši 9.400Kč/měsíc bez DPH plus celková energie 2.600,-Kč/měsíc bez DPH. Vratná kauce je ve výši dvou nájmů a provize RK ve výši jednoho nájmu.
Možnost parkování u objektu (nenárokové místo)

Pro více informací nebo sjednání prohlídky nás neváhejte kontaktovat - rádi vám prostor osobně ukážeme. K dispozici je dle domluvy.

Makléř

Máte zájem o tuto nemovistost?

Tímto, v souladu s nařízením Evropského parlamentu a Rady (EU) 2016/679, v platném znění, prohlašuji, že mi je alespoň 16 let a uděluji tak svůj souhlas se zpracováním zadaných údajů (jméno, telefon, e-mail, ip adresa) společnosti B3 Technology, s.r.o., IČ: 07330600, se sídlem Novostavby 126/23, 435 11 Lom (správce dat), za účelem předání dotazu z tohoto formuláře Vámi vybranému inzerentovi a zpětného kontaktování mé osoby. Osobní údaje bude správce zpracovávat manuálně i automaticky přímo prostřednictvím svých zaměstnanců. Informace předané tímto formulářem budou uloženy v databázi správce maximálně po dobu 10 let. Odvolání souhlasu s uložením a zpracováním poskytnutých dat lze e-mailem na info@origo-reality.cz. V případě podezření na neoprávněné použití Vámi poskytnutých údajů máte právo předat podnět k šetření Úřadu pro ochranu osobních údajů. Více informací
Chystáte se prodat nemovitost?
Pomůžeme Vám!

Přihlášení k odběru

Nenechte si ujít nejnovější nabídky pronájmu kanceláří v Uherském Hradišti.