Prodej obchodního prostoru, Brno, Fryčajova, 127 m2 (ID: 1890802)

Fryčajova, Brno, Obřany

5 699 000 Kč
/za nemovitost
Hypotéka od 25 471 Kč /měs. Chci hypotéku

Parametry nemovitosti

AdresaFryčajova, Brno, Obřany
IDFRYR
StavbaCihlová
Stav objektuPo rekonstrukci
Patro1. z 4
VybavenoNe
Lokalita objektuKlidná část obce
Užitná plocha127 m2
Zastavěná plocha127 m2
Podlahová plocha127 m2
Třída energetické náročnostiG - Mimořádně nehospodárná
Elektřina230V
PlynPlynovod
TopeníLokální plynové
TelekomunikaceInternet, Kabelová televize
DopravaVlak, Dálnice, Silnice, MHD, Autobus
VodaVodovod
Výtah

Origo partneři v Brně

Popis

Investiční příležitost: Obchodní prostor s nájemcem a výnosem 6 % – bez provize, přímo od majitele.

Nabízíme k prodeji obchodní prostor v městské části Brno – Obřany, na ulici Fryčajova. Nemovitost se nachází na velmi frekventovaném místě s výbornou viditelností, přímo u hlavní silnice, a disponuje třemi výkladci a možností parkování před objektem.


Klíčové parametry pro investory

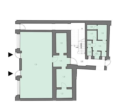
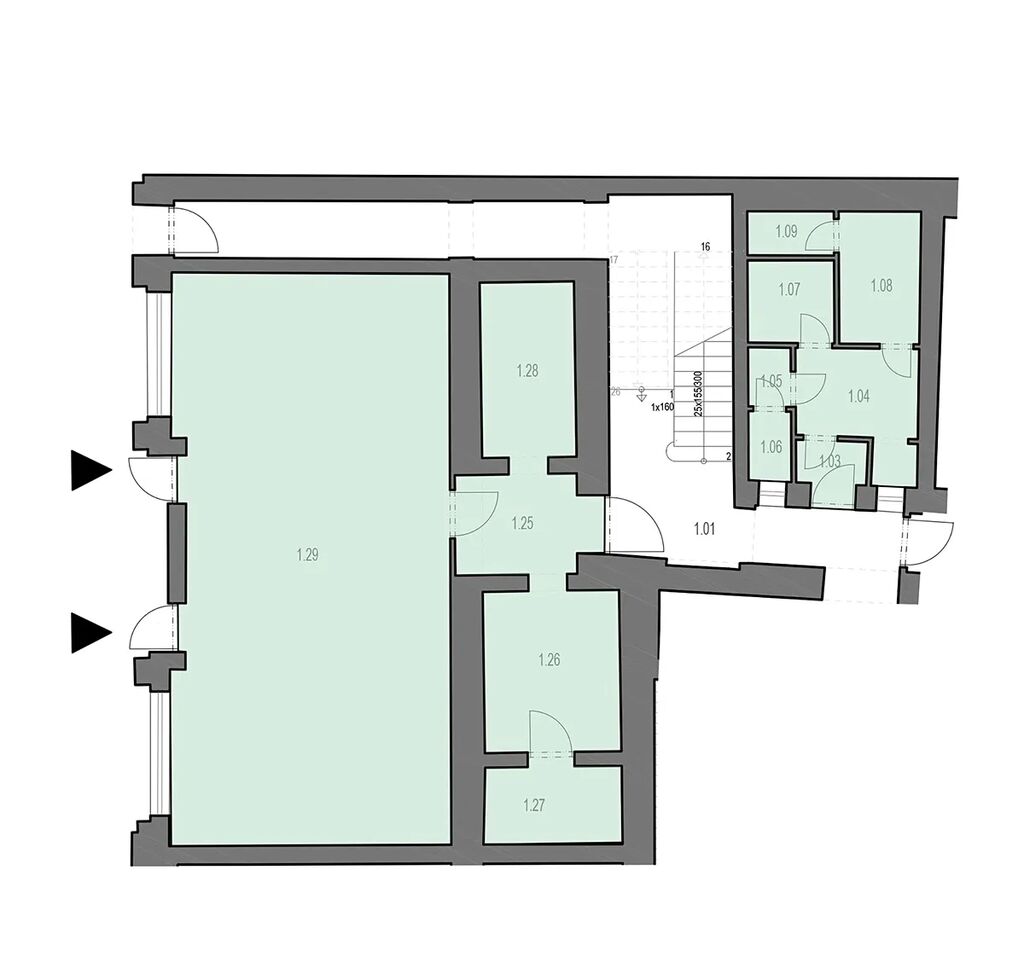
- výměra celkem: 127,3 m² (z toho prodejní plocha 62,8 m², sklad 25,6 m², zázemí a toalety 17,3 m², sklep 12,8 m²)
- prostor je dlouhodobě pronajatý stabilnímu nájemci
- čistý roční výnos 6 %
- bez dalších vstupních investic – nemovitost generuje okamžitý příjem


Strategická lokalita a dům po rekonstrukci

Poloha přímo u hlavní silnice s vysokou průjezdností a zastávkou MHD před domem zajišťuje stabilní návštěvnost a atraktivitu prostoru. Objekt se nachází v kompletně zrekonstruovaném domě – nová fasáda, zmodernizované společné prostory a vyměněné páteřní rozvody zaručují dlouhodobou bezstarostnou správu bez nutnosti dalších významných investic.


Proč investovat právě zde?

- okamžitý příjem z nájmu
- zhodnocení kapitálu prostřednictvím stabilní nemovitosti v Brně
- atraktivní lokalita s rostoucím potenciálem
- jistota – kupujete přímo od majitele, bez provize
- modernizovaný dům po kompletní rekonstrukci

Tato nemovitost představuje ideální investici pro ty, kteří hledají stabilní výnos, bezpečné uložení kapitálu a dlouhodobě perspektivní lokalitu.

Neváhejte nás kontaktovat pro více informací či domluvu osobní prohlídky.

Makléř

Máte zájem o tuto nemovistost?

Tímto, v souladu s nařízením Evropského parlamentu a Rady (EU) 2016/679, v platném znění, prohlašuji, že mi je alespoň 16 let a uděluji tak svůj souhlas se zpracováním zadaných údajů (jméno, telefon, e-mail, ip adresa) společnosti B3 Technology, s.r.o., IČ: 07330600, se sídlem Novostavby 126/23, 435 11 Lom (správce dat), za účelem předání dotazu z tohoto formuláře Vámi vybranému inzerentovi a zpětného kontaktování mé osoby. Osobní údaje bude správce zpracovávat manuálně i automaticky přímo prostřednictvím svých zaměstnanců. Informace předané tímto formulářem budou uloženy v databázi správce maximálně po dobu 10 let. Odvolání souhlasu s uložením a zpracováním poskytnutých dat lze e-mailem na info@origo-reality.cz. V případě podezření na neoprávněné použití Vámi poskytnutých údajů máte právo předat podnět k šetření Úřadu pro ochranu osobních údajů. Více informací
Chystáte se prodat nemovitost?
Pomůžeme Vám!

Přihlášení k odběru

Nenechte si ujít nejnovější nabídky prodeje obchodních prostor v Brně.