Prodej bytu 3+kk, Hradec Králové, třída Edvarda Beneše, 90 m2

třída Edvarda Beneše, Nový Hradec Králové

7 630 000 Kč
/za nemovitost
Hypotéka od 34 101 Kč /měs. Chci hypotéku

Parametry bytu

Adresatřída Edvarda Beneše, Nový Hradec Králové
ID17944
StavbaPanelová
Stav objektuVelmi dobrý
Patro5. z 10
VybavenoAno
Lokalita objektuSídliště
VlastnictvíDružstevní
Užitná plocha90 m2
Třída energetické náročnostiC - Úsporná
PlynPlynovod
OdpadVeřejná kanalizace
KomunikaceAsfaltová
DopravaSilnice, MHD, Autobus
VodaVodovod
Topné tělesoRadiátory
Zdroj topeníÚstřední dálkové
Sklep
Lodžie
Výtah
Převod do OV

Origo partneři v Hradci Králové

Popis

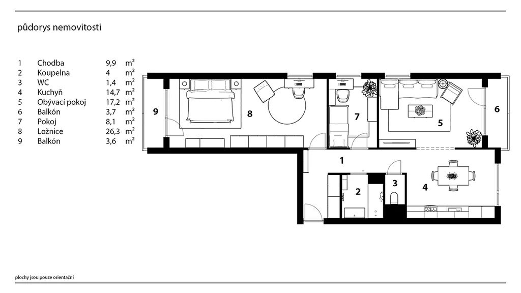
Rádi bychom vám tímto nabídli prostorný byt 3+kk, který bude v lednu 2026 převeden do osobního vlastnictví. Byt je po rekonstrukci v r. 2020: nové jádro, koupelna, WC, propojení kuchyně s obývacím pokojem, nové podlahy, kuchyň, elektrické rozvody. Na domě je plánována revitalizace a zateplení v r. 2026, které se propíše do nižších spotřeb energií. Součástí budou venkovní žaluzie na 3 oknech na JZ. Revitalizace se neprojeví nijak významně do příspěvků FO - max o 5 Kč/m2.
K příjemnému a komfortnímu bydlení přispívá lodžie 6 m2.
Tento byt je ve velmi dobrém stavu a je ideální volbou pro pár nebo rodinu, kteří hledají komfortní bydlení v blízkosti centra města.

Dispozice bytu nabízí příjemné a vzdušné prostory, kde si každý člen rodiny přijde na své soukromí. Ložnice je opravdu prostorná - viz. přiložené půdorysy a je možné ji rozdělit na dva menší pokoje. K bytu patří sklep.
Dům je vybaven dvěma výtahy.

Lokalita, ve které se byt nachází, je velmi vyhledávaná. V blízkém okolí najdete veškerou občanskou vybavenost, včetně obchodů, restaurací, polikliniky a nákupního centra. Díky skvělé dostupnosti MHD a silnice se snadno dostanete do centra města nebo na jiné důležité cíle.

Celkově se jedná o ideální nemovitost pro ty, kteří hledají pohodlné bydlení s veškerým komfortem na dosah ruky. V případě zájmu o prohlídku nás neváhejte kontaktovat.

Makléř

Máte zájem o tento byt?

Tímto, v souladu s nařízením Evropského parlamentu a Rady (EU) 2016/679, v platném znění, prohlašuji, že mi je alespoň 16 let a uděluji tak svůj souhlas se zpracováním zadaných údajů (jméno, telefon, e-mail, ip adresa) společnosti B3 Technology, s.r.o., IČ: 07330600, se sídlem Novostavby 126/23, 435 11 Lom (správce dat), za účelem předání dotazu z tohoto formuláře Vámi vybranému inzerentovi a zpětného kontaktování mé osoby. Osobní údaje bude správce zpracovávat manuálně i automaticky přímo prostřednictvím svých zaměstnanců. Informace předané tímto formulářem budou uloženy v databázi správce maximálně po dobu 10 let. Odvolání souhlasu s uložením a zpracováním poskytnutých dat lze e-mailem na info@origo-reality.cz. V případě podezření na neoprávněné použití Vámi poskytnutých údajů máte právo předat podnět k šetření Úřadu pro ochranu osobních údajů. Více informací
Chystáte se prodat nemovitost?
Pomůžeme Vám!