Pronájem bytu 2+kk, Praha - Dolní Měcholupy, Honzíkova, 57 m2

Honzíkova, Praha 10, Dolní Měcholupy

25 000 Kč
/za měsíc
+ poplatky 3.500,-Kč/měs. + vlastní spotřeba elektřiny ( cca 800,-Kč/měs.) a internet
Získejte výhodnou HYPOTÉKU Chci hypotéku

Parametry bytu

AdresaHonzíkova, Praha 10, Dolní Měcholupy
ID235-1209
StavbaSkeletová
Stav objektuNovostavba
Patro5. z 7
VybavenoČástečně
Typ objektuPatrový
VlastnictvíOsobní
Užitná plocha57 m2
Podlahová plocha59 m2
Třída energetické náročnostiB - Velmi úsporná
TopeníÚstřední dálkové
TelekomunikaceInternet
DopravaDálnice, MHD
Balkon
Výtah
Bezbarierový přístup
Parkování

Origo partneři v Praze 10

Stěhovací služby

Výkup a prodej starého nábytku

Popis

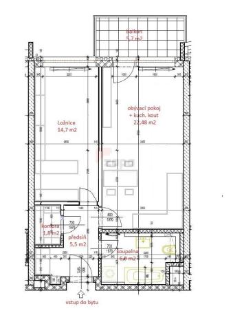
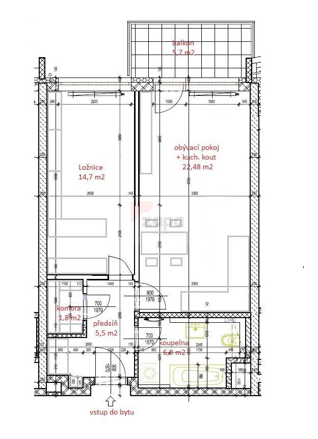
Exkluzivně nabízíme k pronájmu nový krásný byt 2+kk/B o velikosti 57 m2 (z toho 51,3 a balkon 5,7 m2) v 5. patře (s výtahem) v novostavbě z roku 2020 a s garážovým stáním v přízemí domu, v ul. Honzíkova na Praze 10 - Štěrboholy.

Byt je nadstandardně částečně zařízený se západní orientací směrem do klidného vnitrobloku. V ceně nájmu je zahrnuto i garážové stání o velikosti 27,4 m2.

Vybavení bytu: kuchyňská linka s vestavěnými spotřebiči zn. Siemens (varná deska, myčka, lednice s mrazákem, el. trouba) , v předsíni vestavěné šatní skříně, prostorná komora, ložnice se šatnou (2x šatní skříně) , v oknech předokenní žaluzie.

Dispozice bytu: obývací pokoj je propojen s kuchyňským koutem a balkonem, ložnice je samostatná a neprůchozí, v koupelně je vana a WC + prostor pro pračku.

Na podlahách je dřevěná plovoucí podlaha nebo dlažba. Vytápění bytu je dálkové.
K užívání je garážové stání v přízemí domu o velikosti 27,4 m2. Parkování je také možné v ulici nebo v okolí.

Byt je volný okamžitě, je ideální pro 1-2 dospělé osoby, nekuřáky a bez domácích zvířat.

Byt je v klidném, tichém místě s veškerou občanskou vybaveností. V blízkosti je supermarket Lidl, Penny market, lékárna a restaurace a další obchody, nákupní centrum Štěrboholy, hned vedle domu je stezka podél Hostavického potoka směrem k retenční nádrži Slatina. Výborná dostupnost do centra Prahy- na autobus cca 5min chůzí a 16 min na metro A Skalka. Autem skvělá dostupnost do centra- 5 min na obchvat Prahy (jižní spojka).

Nájemné je výši 25.000,-Kč/měsíčně + poplatky 3.500,- Kč/měsíčně/byt + vlastní spotřeba el. ( cca 800,-Kč/měs.) a internet.

Při podpisu smlouvy je třeba uhradit první nájemné + kauci 2 nájmy + provizi RK.

Makléř

Máte zájem o tento byt?

Tímto, v souladu s nařízením Evropského parlamentu a Rady (EU) 2016/679, v platném znění, prohlašuji, že mi je alespoň 16 let a uděluji tak svůj souhlas se zpracováním zadaných údajů (jméno, telefon, e-mail, ip adresa) společnosti B3 Technology, s.r.o., IČ: 07330600, se sídlem Novostavby 126/23, 435 11 Lom (správce dat), za účelem předání dotazu z tohoto formuláře Vámi vybranému inzerentovi a zpětného kontaktování mé osoby. Osobní údaje bude správce zpracovávat manuálně i automaticky přímo prostřednictvím svých zaměstnanců. Informace předané tímto formulářem budou uloženy v databázi správce maximálně po dobu 10 let. Odvolání souhlasu s uložením a zpracováním poskytnutých dat lze e-mailem na info@origo-reality.cz. V případě podezření na neoprávněné použití Vámi poskytnutých údajů máte právo předat podnět k šetření Úřadu pro ochranu osobních údajů. Více informací
Chystáte se prodat nemovitost?
Pomůžeme Vám!

Přihlášení k odběru

Nenechte si ujít nejnovější nabídky pronájmu bytů 2+kk v Praze 10.