Prodej obchodního prostoru, Neratovice, Hlavní, 620 m2

Hlavní, Neratovice, Mlékojedy

7 900 000 Kč
/za nemovitost
Cena je uvedena včetně provize a právního servisu., včetně provize, včetně právního servisu
Hypotéka od 35 308 Kč /měs. Chci hypotéku

Parametry nemovitosti

AdresaHlavní, Neratovice, Mlékojedy
IDRM25019
StavbaCihlová
Stav objektuDobrý
VybavenoČástečně
Typ objektuPatrový
Druh objektuSamostatný
Lokalita objektuCentrum obce
Užitná plocha620 m2
Plocha pozemku702 m2
Třída energetické náročnostiG - Mimořádně nehospodárná
Elektřina230V, 400V
PlynPlynovod
OdpadVeřejná kanalizace
TopeníLokální elektrické, Ústřední plynové
KomunikaceAsfaltová
DopravaSilnice, Autobus
VodaVodovod
Výtah

Origo partneři v Neratovicích

Popis

Nabízíme Vám ke koupi prostorný dům se zajímavou historií (dříve hospoda s ubytováním) a mimořádně variabilním využitím. Územní plán SV – smíšené obytné venkovské umožňuje mimo bydlení také obchod, služby, gastro, kanceláře, drobnou nerušící výrobu či ubytování. Ideální pro kombinaci bydlení + podnikání.

Hlavní přednosti:
Užitná plocha cca 620 m², pozemek 702 m²

Dva zrekonstruované byty v přízemí (2+kk + garsonka), samostatné vstupy (aktuálně s nájemníky)

Velké sály po bývalé hospodě – skvělý základ pro gastro, showroom, studio, sport/volnočasové aktivity

1. patro: větší byt + 4 pokoje (historicky ubytování) + 2× WC (aktuálně s nájemníky)

Garáž, technické místnosti, plynový kotel, bojlery

Vydlážděný dvůr – možnost parkovacích stání / předzahrádky

Regulativ SV = široké komerční využití (služby, obchod, stravování, kanceláře, drobná řemesla/lehké provozy bez rušení okolí)

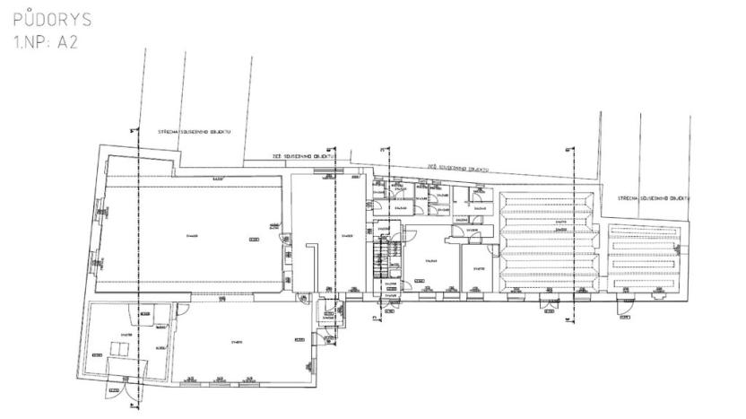
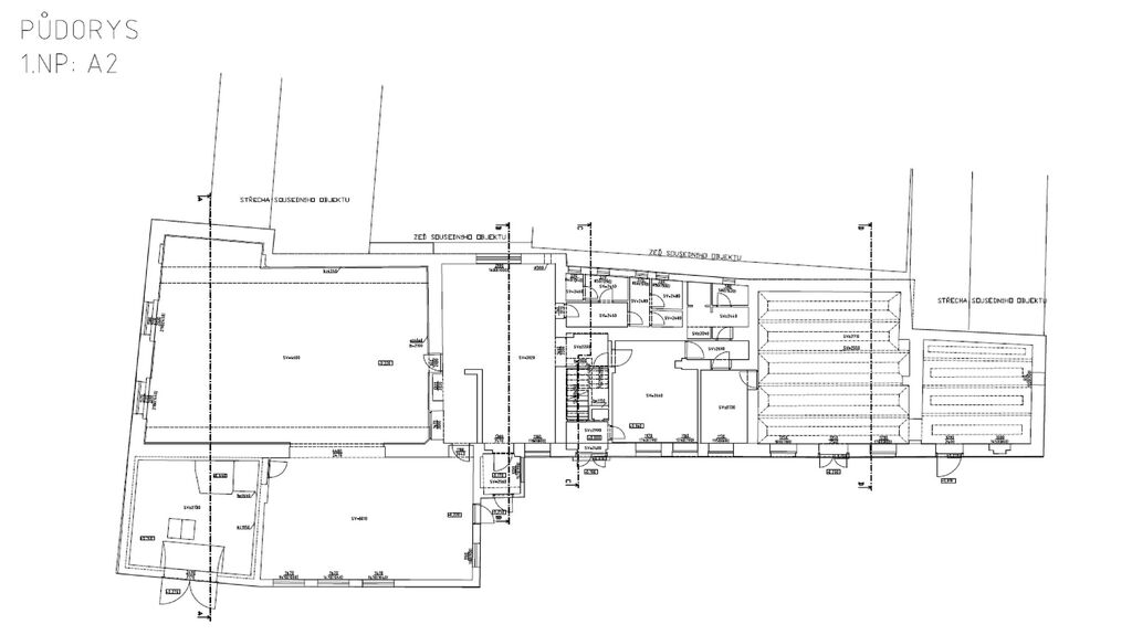
Dispozice
Přízemí: 2+kk a garsonka (nově zrekonstruované, samostatné vstupy), dále velká místnost s kuchyňskou linkou a koupelnou (zázemí pro horní byt/jednotky), dva víceúčelové sály po hospodě, garáž, technické zázemí (bojlery, plynový kotel).

1. patro: byt (2 místnosti) + 4 menší pokoje se samostatnými vstupy, 2× WC.
Exteriér: vydlážděný dvůr – možnost parkování či venkovního sezení.

Využití (příklady, dle Územního plánu)
Gastro + ubytování (bistro/restaurace + penzion/ubytovna)

Showroom/prodejna + zázemí firmy, kanceláře, ateliéry, studio služeb

Řemeslná dílna / lehká, nerušící výroba (truhlářství, montáž drobných výrobků apod.)

Sport/volný čas (menší tělocvična/klub), komunitní/občanská vybavenost

Lokalita:
Klidná obec Mlékojedy s rychlou dostupností do Neratovic. Pěšky samoobsluha, v obci MŠ; nedaleko pískovna Beach Park Mlékojedy se sportovními a kulturními akcemi. V Tišicích (2 km) je větší samoobsluha, bus a vlak směr Praha / MB / Liberec. Kompletní občanská vybavenost v Neratovicích, St. Boleslavi a Mělníku.

Pro investory a podnikání:
Objekt je připraven pro okamžité částečné využití (byty v přízemí) a nabízí jasný prostor pro komerční koncept v srdci obce. Díky členění a velikosti lze oddělit provoz a bydlení i škálovat v čase.

Nenechte si ujít tuto jedinečnou příležitost!
Kontaktujte nás a domluvte si prohlídku. Rádi Vám představíme všechny možnosti, které tento dům nabízí.

Makléř

Máte zájem o tuto nemovistost?

Tímto, v souladu s nařízením Evropského parlamentu a Rady (EU) 2016/679, v platném znění, prohlašuji, že mi je alespoň 16 let a uděluji tak svůj souhlas se zpracováním zadaných údajů (jméno, telefon, e-mail, ip adresa) společnosti B3 Technology, s.r.o., IČ: 07330600, se sídlem Novostavby 126/23, 435 11 Lom (správce dat), za účelem předání dotazu z tohoto formuláře Vámi vybranému inzerentovi a zpětného kontaktování mé osoby. Osobní údaje bude správce zpracovávat manuálně i automaticky přímo prostřednictvím svých zaměstnanců. Informace předané tímto formulářem budou uloženy v databázi správce maximálně po dobu 10 let. Odvolání souhlasu s uložením a zpracováním poskytnutých dat lze e-mailem na info@origo-reality.cz. V případě podezření na neoprávněné použití Vámi poskytnutých údajů máte právo předat podnět k šetření Úřadu pro ochranu osobních údajů. Více informací
Chystáte se prodat nemovitost?
Pomůžeme Vám!

Přihlášení k odběru

Nenechte si ujít nejnovější nabídky prodeje obchodních prostor v Neratovicích.