Prodej bytu 2+1, Žďár nad Sázavou, Brodská, 55 m2

Brodská, Žďár nad Sázavou 3

3 250 000 Kč
/za nemovitost
Hypotéka od 14 526 Kč /měs. Chci hypotéku

Parametry bytu

Náklady na bydlení5186,- (z toho fond 1.105,-Kč) + elektřina 760,-Kč
AdresaBrodská, Žďár nad Sázavou 3
ID707
StavbaCihlová
Stav objektuVelmi dobrý
Patro3. z 4
Lokalita objektuSídliště
VlastnictvíDružstevní
Užitná plocha55 m2
Podlahová plocha65 m2
Třída energetické náročnostiB - Velmi úsporná
Ukazatel energetické náročnosti88 kWh/m2 za rok
Elektřina230V
OdpadVeřejná kanalizace
TopeníÚstřední dálkové
TelekomunikaceInternet
DopravaVlak, MHD, Autobus
VodaVodovod
Sklep
Převod do OV

Origo partneři v Žďáře nad Sázavou

Popis

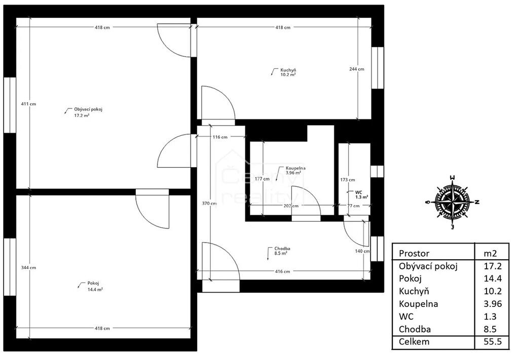
Prodej družstevního bytu 2+1 (55m2) ve Žďáru nad Sázavou, ve 3.NP, dva sklepy. Na adrese Brodská 2005/75, Žďár nad Sázavou. Byt se nachází v kompletně revitalizovaném domě, tzn. dům je zateplen, v bytě jsou osazena plastová okna s izolačním dvojsklem. Jinak je bytová jednotka v původnějším stavu. Dispozice: vstupní chodba s oknem na sever, o ploše 8,7 m2, koupelna s vanou 3,6 m2, toaleta s oknem 1,4 m2, kuchyň je otočena na severní stranu 10,3 m2, obývací pokoj na jih 17,2 m2, další pokoj na jižní stranu 14,4 m2. V přízemí domu náleží k bytové jednotce dva sklepy, o plochách 5,2 m2 a 4,3 m2. Užitná plocha bytu je 55,5 m2. Celková plocha bytu vč.sklepů je 65 m2. Parkování je možné před objektem. V obci je veškerá občanská vybavenost. Náklady na bydlení jsou 5186,-Kc. (z toho fond 1.105,-Kč) + elektřina 760,-Kč. ID 7525.

Makléř

Máte zájem o tento byt?

Tímto, v souladu s nařízením Evropského parlamentu a Rady (EU) 2016/679, v platném znění, prohlašuji, že mi je alespoň 16 let a uděluji tak svůj souhlas se zpracováním zadaných údajů (jméno, telefon, e-mail, ip adresa) společnosti B3 Technology, s.r.o., IČ: 07330600, se sídlem Novostavby 126/23, 435 11 Lom (správce dat), za účelem předání dotazu z tohoto formuláře Vámi vybranému inzerentovi a zpětného kontaktování mé osoby. Osobní údaje bude správce zpracovávat manuálně i automaticky přímo prostřednictvím svých zaměstnanců. Informace předané tímto formulářem budou uloženy v databázi správce maximálně po dobu 10 let. Odvolání souhlasu s uložením a zpracováním poskytnutých dat lze e-mailem na info@origo-reality.cz. V případě podezření na neoprávněné použití Vámi poskytnutých údajů máte právo předat podnět k šetření Úřadu pro ochranu osobních údajů. Více informací
Chystáte se prodat nemovitost?
Pomůžeme Vám!

Přihlášení k odběru

Nenechte si ujít nejnovější nabídky prodeje bytů 2+1 v Žďáře nad Sázavou.