Pronájem kanceláře, Dalovice, Botanická, 30 m2 (ID: 1889300)

Botanická, Dalovice

Cena na vyžádání
/za měsíc
Získejte výhodnou HYPOTÉKU Chci hypotéku

Parametry nemovitosti

AdresaBotanická, Dalovice
StavbaCihlová
Stav objektuDobrý
Užitná plocha30 m2
Elektřina230V, 400V
PlynPlynovod
OdpadVeřejná kanalizace
TopeníÚstřední plynové
KomunikaceBetonová, Asfaltová
TelekomunikaceInternet
DopravaVlak, Silnice, MHD, Autobus
VodaVodovod
Zdroj topeníPlynový kondenzační kotel
Garáž
Parkování

Origo partneři v Dalovicích

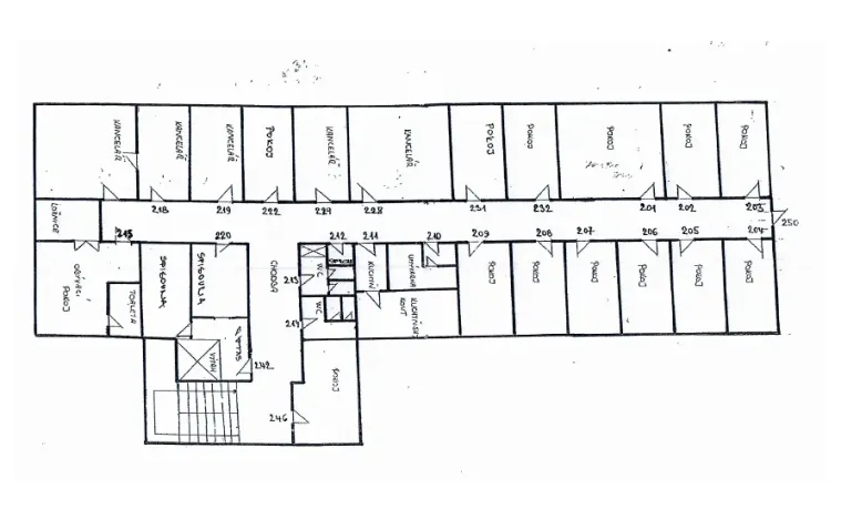
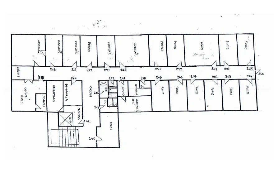
Popis

Společnost Marent Reality Vám nabízí k dlouhodobému pronájmu různé druhy prostor v tomto zajímavém víceúčelovém objektu v Karlových Varech. V budově se nacházejí prostory umožňující ubytování osob – ubytovna, kancelářské prostory, komerční prostory v přízemí s vlastním vstupem – např. prodejny, eshopy, dílny či garáže a dále také výrobní a skladové prostory. Nabízíme možnost také možnost pronájmu celé budovy jako celku, tj. dlouhodobě zaběhnuté a fungující ubytovny se stálými nájemníky.
Víceúčelový objekt nalezneme v rozsáhlém areálu Office park Dalovice, který již několik let provozujeme a řádně spravujeme. Objekt má celkem 3 podlaží, přičemž každé z podlaží má plochu 700 m². Kolem budovy je zřízeno vlastní parkoviště pro dostatečné množství automobilů. V objektu je nainstalovaný kamerový systém a je zde rovněž ostraha. K objektu přiléhá také rozsáhlá betonová venkovní manipulační a skladová plocha, která je uzpůsobena pro pohyb manipulační techniky i kamionů a také pro případné skladování či parkování.
Objekt je napojen kompletně na inženýrské sítě – voda, kanalizace, elektřina a plyn. V rámci sjednaného nájmu pro Vás provedeme také řádnou kompletní rekonstrukci prostor dle Vašich představ. V tomto objektu je mnoho prostor ze kterých je možno vybírat.
V případě zájmu neváhejte kontaktovat našeho vedoucího správy nemovitostí, který Vám poskytne kompletní informace a zajistí prohlídku nemovitosti. Veškeré nabízení nemovitosti zároveň vlastníme.

Makléř

Máte zájem o tuto nemovistost?

Tímto, v souladu s nařízením Evropského parlamentu a Rady (EU) 2016/679, v platném znění, prohlašuji, že mi je alespoň 16 let a uděluji tak svůj souhlas se zpracováním zadaných údajů (jméno, telefon, e-mail, ip adresa) společnosti B3 Technology, s.r.o., IČ: 07330600, se sídlem Novostavby 126/23, 435 11 Lom (správce dat), za účelem předání dotazu z tohoto formuláře Vámi vybranému inzerentovi a zpětného kontaktování mé osoby. Osobní údaje bude správce zpracovávat manuálně i automaticky přímo prostřednictvím svých zaměstnanců. Informace předané tímto formulářem budou uloženy v databázi správce maximálně po dobu 10 let. Odvolání souhlasu s uložením a zpracováním poskytnutých dat lze e-mailem na info@origo-reality.cz. V případě podezření na neoprávněné použití Vámi poskytnutých údajů máte právo předat podnět k šetření Úřadu pro ochranu osobních údajů. Více informací
Chystáte se prodat nemovitost?
Pomůžeme Vám!

Přihlášení k odběru

Nenechte si ujít nejnovější nabídky pronájmu kanceláří v Dalovicích (okr. Karlovy Vary).