Prodej bytu 3+kk, Hradec Králové - Třebeš, Ve Stromovce, 74 m2

Ve Stromovce, Hradec Králové, okres hradec králové, Třebeš

8 700 000 Kč
/za nemovitost
Hypotéka od 38 884 Kč /měs. Chci hypotéku

Parametry bytu

AdresaVe Stromovce, Hradec Králové, okres hradec králové, Třebeš
ID970557
StavbaCihlová
Stav objektuVelmi dobrý
Patro2. z 4
VybavenoČástečně
VlastnictvíOsobní
Užitná plocha74 m2
Podlahová plocha78 m2
Třída energetické náročnostiB - Velmi úsporná
Elektřina230V
OdpadVeřejná kanalizace
TopeníÚstřední dálkové
DopravaVlak, Silnice, MHD, Autobus
VodaVodovod
Balkon
Sklep
Výtah
Parkování

Origo partneři v Hradci Králové

Popis

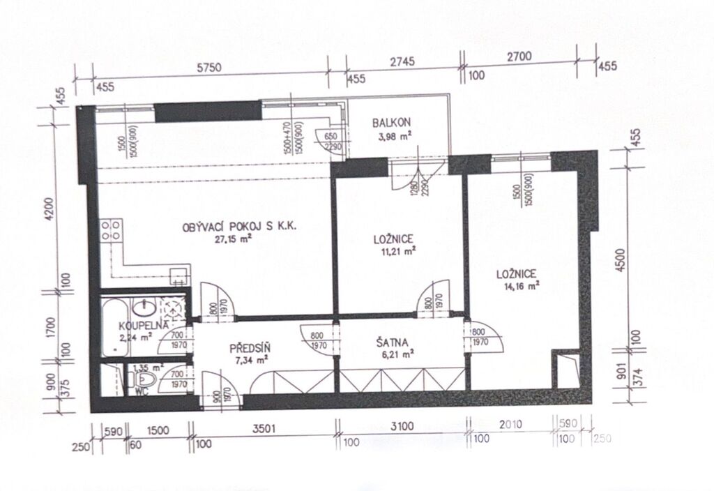
Nabízíme k prodeji moderní a velmi světlý byt o dispozici 3+kk a podlahové ploše 70 m², který se nachází ve vyhledávané a klidné lokalitě Ve Stromovce v Hradci Králové.
Součástí bytu je balkon (3 m²) s příjemným výhledem do zeleně a sklepní kóje (3 m²), která poskytuje dostatek úložného prostoru.

Byt je orientovaný na jižní stranu, díky čemuž je po celý den krásně prosvětlený. Dispozice nabízí prostorný obývací pokoj s kuchyňským koutem, dvě ložnice, koupelnu, samostatné WC a předsíň s úložnými prostory.

Výstavba domu proběhla v roce 2008, objekt je ve velmi dobrém technickém stavu a působí moderním, udržovaným dojmem.

Lokalita Třebeš patří mezi nejklidnější a zároveň nejoblíbenější části Hradce Králové – v okolí najdete školy, školky, obchody, restaurace, zastávky MHD, nebo cyklostezku podél Labe ideální pro procházky či sport.

Velkým benefitem je privátní parkovací stání přímo před domem, které je součástí prodeje.

Byt je ideální jak pro rodinné bydlení, tak i jako investice díky atraktivní poloze a skvělé dostupnosti do centra města.

V případě jakýchkoliv dotazů mě neváhejte kontaktovat.

Majitel si vyhrazuje právo prodat byt nejvyšší nabídce.

Makléř

Máte zájem o tento byt?

Tímto, v souladu s nařízením Evropského parlamentu a Rady (EU) 2016/679, v platném znění, prohlašuji, že mi je alespoň 16 let a uděluji tak svůj souhlas se zpracováním zadaných údajů (jméno, telefon, e-mail, ip adresa) společnosti B3 Technology, s.r.o., IČ: 07330600, se sídlem Novostavby 126/23, 435 11 Lom (správce dat), za účelem předání dotazu z tohoto formuláře Vámi vybranému inzerentovi a zpětného kontaktování mé osoby. Osobní údaje bude správce zpracovávat manuálně i automaticky přímo prostřednictvím svých zaměstnanců. Informace předané tímto formulářem budou uloženy v databázi správce maximálně po dobu 10 let. Odvolání souhlasu s uložením a zpracováním poskytnutých dat lze e-mailem na info@origo-reality.cz. V případě podezření na neoprávněné použití Vámi poskytnutých údajů máte právo předat podnět k šetření Úřadu pro ochranu osobních údajů. Více informací
Chystáte se prodat nemovitost?
Pomůžeme Vám!