Prodej rodinného domu, Kralupy nad Vltavou, 181 m2 (ID: 1888430)

Kralupy nad Vltavou, Minice

13 338 000 Kč
/za nemovitost
včetně DPH
Hypotéka od 59 613 Kč /měs. Chci hypotéku

Parametry domu

AdresaKralupy nad Vltavou, Minice
ID01498
StavbaCihlová
Stav objektuProjekt
Druh objektuSamostatný
Užitná plocha181 m2
Plocha pozemku1044 m2
Třída energetické náročnostiB - Velmi úsporná
Ukazatel energetické náročnosti117 kWh/m2 za rok

Origo partneři v Kralupech nad Vltavou

Popis

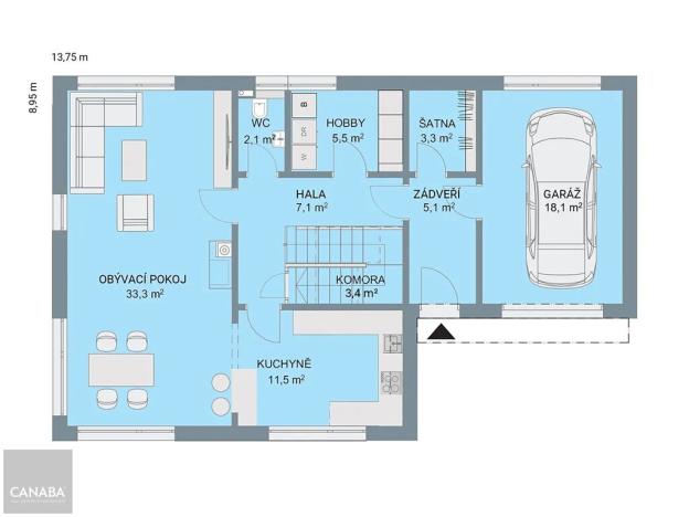
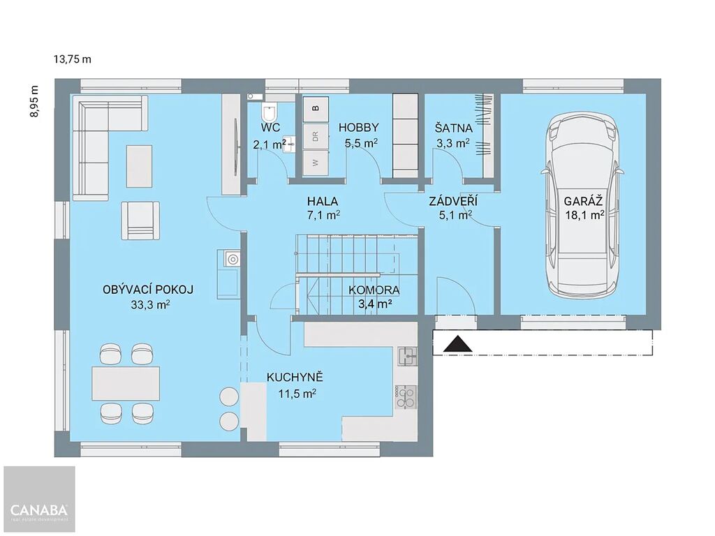
Prodám nízkoenergetický rodinný dům o velikosti 6+1+garáž s podlahovou plochou 181 m².

Jeho hlavní předností je půdorysné řešení do tvaru L s integrovanou garáží. Dům zaujme čistými liniemi a rovnou střechou, které podtrhují jeho současný vzhled a nadčasový charakter. Výrazným prvkem je studio nad garáží, které může sloužit jako ateliér, pracovna nebo samostatná bytová jednotka.

V 1.NP se nachází zádveří, ze kterého vstupujete do garáže, šatny a haly. Z haly pak do hobby místnosti, samostatné toalety, prostorného obývacího pokoje s jídelnou a do kuchyně. Po schodišti se dále dostanete do 2.NP na galerii se vstupem do prosvětlené ložnice, dvou pokojů, pracovny, koupelny a na samostatnou toaletu.

Za uvedenou cenu bude dům kompletně stavebně dokončen včetně vytápění, obkladů, sanitárního vybavení, podlahových krytin a vnitřních dveří.

K patě pozemku jsou přivedeny tyto inženýrské sítě: rozvody NN, kanalizace bez napojení (nyní dočasně jímka nebo ČOV), veřejný vodovod, plyn, Cetin.

Uvedená cena je včetně pozemku, typové základové desky a DPH. Doba výstavby 4 - 5 měsíců.

Minice se rozkládají asi dva kilometry jižně od středu Kralup. Vede tudy železniční trať Kralupy nad Vltavou – Kladno. Dominantou je kostel sv. Jakuba a v okolí najdete i zajímavosti jako přírodní památku Minická skála. Veškerou občanskou vybavenost najdete v Kralupech nad Vltavou.

Makléř

Máte zájem o tento dům?

Tímto, v souladu s nařízením Evropského parlamentu a Rady (EU) 2016/679, v platném znění, prohlašuji, že mi je alespoň 16 let a uděluji tak svůj souhlas se zpracováním zadaných údajů (jméno, telefon, e-mail, ip adresa) společnosti B3 Technology, s.r.o., IČ: 07330600, se sídlem Novostavby 126/23, 435 11 Lom (správce dat), za účelem předání dotazu z tohoto formuláře Vámi vybranému inzerentovi a zpětného kontaktování mé osoby. Osobní údaje bude správce zpracovávat manuálně i automaticky přímo prostřednictvím svých zaměstnanců. Informace předané tímto formulářem budou uloženy v databázi správce maximálně po dobu 10 let. Odvolání souhlasu s uložením a zpracováním poskytnutých dat lze e-mailem na info@origo-reality.cz. V případě podezření na neoprávněné použití Vámi poskytnutých údajů máte právo předat podnět k šetření Úřadu pro ochranu osobních údajů. Více informací
Chystáte se prodat nemovitost?
Pomůžeme Vám!

Přihlášení k odběru

Nenechte si ujít nejnovější nabídky prodeje rodinných domů v Kralupech nad Vltavou.