Pronájem bytu 3+kk, Hluboká nad Vltavou, Masarykova, 83 m2

Masarykova, Hluboká nad Vltavou

18 500 Kč
/za měsíc
Získejte výhodnou HYPOTÉKU Chci hypotéku

Parametry bytu

Náklady na bydlení5.300,-
AdresaMasarykova, Hluboká nad Vltavou
IDN114656
StavbaCihlová
Stav objektuPo rekonstrukci
Patro3. z 3
VybavenoČástečně
Lokalita objektuCentrum obce
VlastnictvíOsobní
Užitná plocha83 m2
Třída energetické náročnostiC - Úsporná
Elektřina230V
OdpadVeřejná kanalizace
TopeníÚstřední elektrické
KomunikaceAsfaltová
DopravaVlak, Silnice, Autobus
VodaVodovod
Topné tělesoRadiátory
Zdroj topeníTepelné čerpadlo
Zdroj teplé vodyTepelné čerpadlo
Balkon
Sklep
Výtah
Bezbarierový přístup

Origo partneři v Hluboké nad Vltavou

Popis

V rámci exkluzivní spolupráce si vám dovoluji nabídnout k pronájmu bytovou jednotku o dispozici 3+kk v centru města Hluboká nad Vltavou v citlivě zrekonstruované budově bývalé restaurace a ubytovacího zařízení Bakalář.
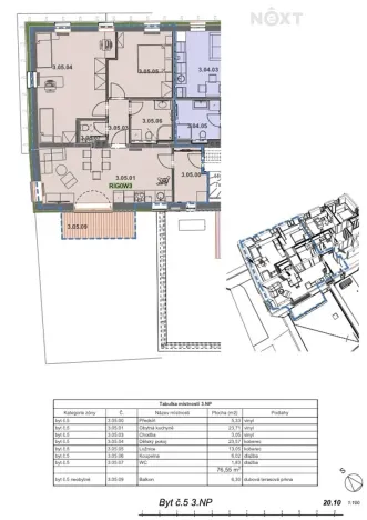
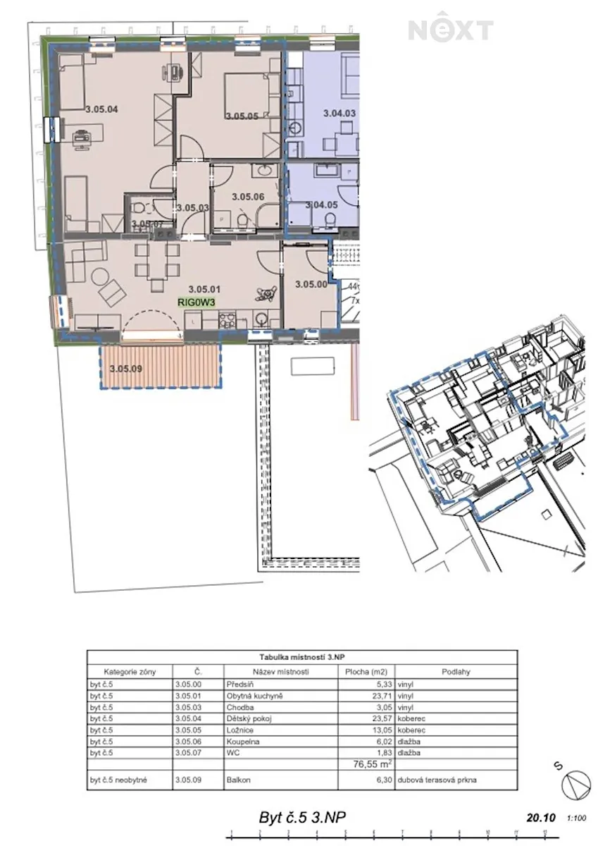
Bytová jednotka o celkové užitné ploše 86,21 m² s nejhezčím výhledem, se nachází ve 3.NP a sestává se z předsíně (5,33 m²), koupelny po pravé straně (6,02 m²) a chodby (3,05 m²) ze které se dostanete do ložnice (13,05 m²), prostorného pokoje (23,57 m²) a samostatného WC (1,83 m²). Do obývacího pokoje s kuchyňským koutem (23,71 m²) projdete rovnou z předsíně. K bytu náleží balkon (6,30 m²) jehož vchod je umístěn z kuchyně a také skladovací kóje v přízemí (3,36 m²).
Noví nájemníci si budou moci užívat čerstvě zrekonstruované prostory bytu a celé budovy. V kuchyni bude nerez dřez s odkapem, baterie s flexi ramenem a možností spršky, digestoř s odtahem do exteriéru, příprava na vestavnou lednici, dále sklokeramická varná deska, el. trouba, a myčka. Koupelna je vybavena sprchovým koutem, umyvadlem se skřínkou a zrcadlem. Byt bude vybaven svítidly, včetně LED lišty pro nepřímé osvětlení. U oken orientovaných na jih a západ budou nainstalovány el. ovládané venkovní žaluzie. Tento byt má navíc v rámci základního vybavení také klimatizaci.
Vytápění a ohřev vody je zajištěn tepelným čerpadlem (vzduch, voda).
Měsíční náklady spojené s užíváním prostoru činí: 18.500,- Kč nájem + energie, voda 5.300,- (závisí dle počtu osob v bytě), přičemž náklady na elektřinu budou sníženy díky vlastní fotovoltaické elektrárně. Internet 299,- Kč měsíčně bude přepsán na nového nájemníka (router není k dispozici). Provize RK činí jeden měsíční nájem plus DPH 21%, kauce je pronajímatelem stanovena na 37.000,- Kč. Zároveň zde nabízíme možnost pronájmu parkovacího stání / garáže či dvoj-garáže včetně dvou sklepů. Více informací vám ráda poskytnu po telefonu.
Aktuálně probíhají na nemovitosti finální stavební práce. K nastěhování bude jednotka připravena od 30.1.2026.
Pokud jste rádi v centru dění a oceníte nadstandardní občanskou vybavenost v této krásné lokalitě, je toto bydlení pro vás ideální volbou. Doporučuji prohlídku nemovitosti. Pro komunikaci uvádějte evidenční číslo zakázky N114656.

Makléř

Máte zájem o tento byt?

Tímto, v souladu s nařízením Evropského parlamentu a Rady (EU) 2016/679, v platném znění, prohlašuji, že mi je alespoň 16 let a uděluji tak svůj souhlas se zpracováním zadaných údajů (jméno, telefon, e-mail, ip adresa) společnosti B3 Technology, s.r.o., IČ: 07330600, se sídlem Novostavby 126/23, 435 11 Lom (správce dat), za účelem předání dotazu z tohoto formuláře Vámi vybranému inzerentovi a zpětného kontaktování mé osoby. Osobní údaje bude správce zpracovávat manuálně i automaticky přímo prostřednictvím svých zaměstnanců. Informace předané tímto formulářem budou uloženy v databázi správce maximálně po dobu 10 let. Odvolání souhlasu s uložením a zpracováním poskytnutých dat lze e-mailem na info@origo-reality.cz. V případě podezření na neoprávněné použití Vámi poskytnutých údajů máte právo předat podnět k šetření Úřadu pro ochranu osobních údajů. Více informací
Chystáte se prodat nemovitost?
Pomůžeme Vám!

Přihlášení k odběru

Nenechte si ujít nejnovější nabídky pronájmu bytů 3+kk v Hluboké nad Vltavou.