Prodej rodinného domu, Jeneč, Malé náměstí, 192 m2 (ID: 1887768)

Malé náměstí, Jeneč

Cena na vyžádání
/za nemovitost
cena na dotaz
Získejte výhodnou HYPOTÉKU Chci hypotéku

Parametry domu

AdresaMalé náměstí, Jeneč
ID19147
StavbaCihlová
Stav objektuNovostavba
Druh objektuSamostatný
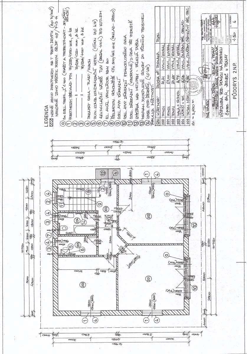
Užitná plocha192 m2
Zastavěná plocha100 m2
Podlahová plocha192 m2
Plocha pozemku412 m2
Plocha zahrady312 m2
Třída energetické náročnostiC - Úsporná
Elektřina230V
PlynPlynovod
OdpadVeřejná kanalizace
TopeníÚstřední plynové
KomunikaceAsfaltová
TelekomunikaceInternet
DopravaVlak, Dálnice, Silnice, MHD, Autobus
VodaVodovod
Topné tělesoPodlahové vytápění, Radiátory
Zdroj topeníPlynový kondenzační kotel
Zdroj teplé vodyPlynový kondenzační kotel
Bezbarierový přístup

Origo partneři v Jenči

Popis

Nabízíme k prodeji luxusní rodinný dům v Jenči u Prahy. Dvoupodlažní moderní dům o užitné ploše 192 m2 a dispozičním řešení 4+1 se nachází v klidném zákoutí uprostřed obce Jeneč. V přízemí domu je prostorný a světlý obývací pokoj propojený s velkorysou kuchyní a jídelnou, dále prostorná vstupní hala se schodištěm a koupelna. V patře domu v klidové zóně jsou 3 útulné ložnice (20, 24 a 27 m2), šatna, koupelna a technická místnost s dalším wc. Dům je novostavba s energetickou náročností kategorie C. Vystavěn je z Porothermu, střešní krytina pálená taška Tondach. Vytápění plynovým kombinovaným kondenzačním kotlem, v přízemí podlahové topení, v patře otopná tělesa. Jako podlahová krytina byla použita luxusní velkoformátová dlažba, v ložnicích je kvalitní vinyl. Technické řešení domu umožňuje i dvougenerační bydlení, tj. rozdělení na 2 samostatné bytové jednotky. V současné době není dům ještě zkolaudován, a to z důvodu absence fasády. Je ale již užíván k bydlení na základě Rozhodnutí o předčasném užívání. Zhotovení zateplené fasády je zahrnuto v ceně domu, nový majitel si může vybrat barvu i provedení. Obec Jeneč je plně vybavená moderní obec v těsné blízkosti Prahy (pár minut autem i PIDem).

Makléř

Máte zájem o tento dům?

Tímto, v souladu s nařízením Evropského parlamentu a Rady (EU) 2016/679, v platném znění, prohlašuji, že mi je alespoň 16 let a uděluji tak svůj souhlas se zpracováním zadaných údajů (jméno, telefon, e-mail, ip adresa) společnosti B3 Technology, s.r.o., IČ: 07330600, se sídlem Novostavby 126/23, 435 11 Lom (správce dat), za účelem předání dotazu z tohoto formuláře Vámi vybranému inzerentovi a zpětného kontaktování mé osoby. Osobní údaje bude správce zpracovávat manuálně i automaticky přímo prostřednictvím svých zaměstnanců. Informace předané tímto formulářem budou uloženy v databázi správce maximálně po dobu 10 let. Odvolání souhlasu s uložením a zpracováním poskytnutých dat lze e-mailem na info@origo-reality.cz. V případě podezření na neoprávněné použití Vámi poskytnutých údajů máte právo předat podnět k šetření Úřadu pro ochranu osobních údajů. Více informací
Chystáte se prodat nemovitost?
Pomůžeme Vám!

Přihlášení k odběru

Nenechte si ujít nejnovější nabídky prodeje rodinných domů v Jenči.