Prodej bytu 2+kk, Dolní Branná, 42 m2

Dolní Branná, okres trutnov

2 498 000 Kč
/za nemovitost
Parkovací stání lze koupit za 150 000, Kč
Hypotéka od 11 165 Kč /měs. Chci hypotéku

Parametry bytu

AdresaDolní Branná, okres trutnov
ID970411
StavbaCihlová
Stav objektuNovostavba
VlastnictvíOsobní
Užitná plocha42 m2
Podlahová plocha42 m2
Třída energetické náročnostiC - Úsporná
Elektřina230V
PlynPlynovod
OdpadČOV pro celý objekt
TopeníLokální plynové
DopravaVlak, Silnice
VodaVodovod
Sklep
Výtah
Parkování

Origo partneři v Dolní Branné

Popis

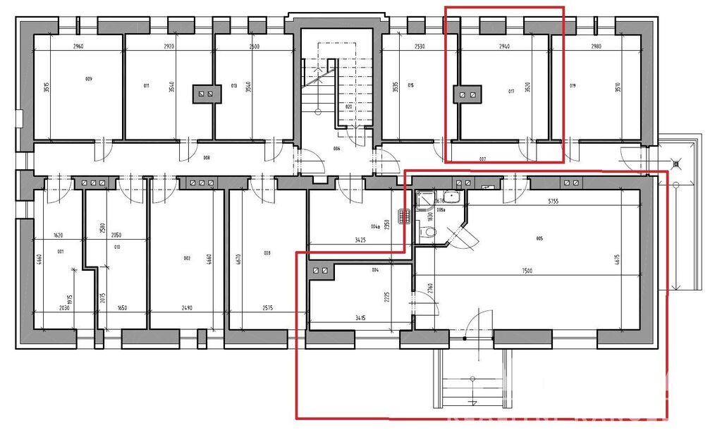
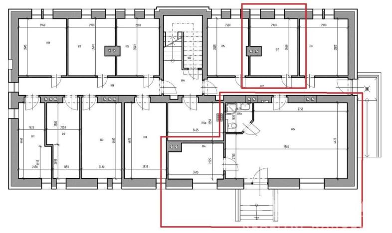
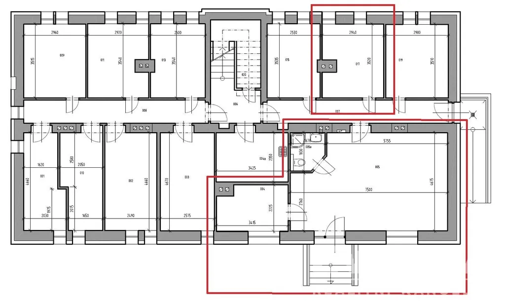
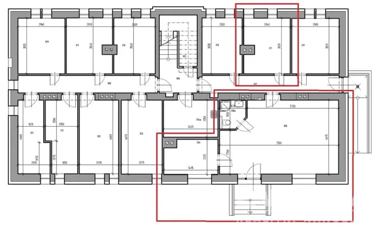
Prodej ateliéru 2+kk v projektu Byty Dolní Branná.
Hledáte cenově dostupný ateliér v klidné lokalitě, ale s výbornou dostupností do města? Pak pro vás máme skvělou nabídku prostoru v Dolní Branné v podhůří Krkonoš, pouhých 5 minut od Vrchlabí!

Nabízíme k prodeji moderní byt o dispozici 42 m² se samostatným vstupem, který je součástí nově kompletně zrekonstruovaného třípatrového cihlového domu s energetickou náročností třídy C (PENB). Bytový projekt klade důraz na kvalitní materiály a funkční provedení interiéru.
Součástí bytu je:
• Velký obytný prostor s místem na malou kuchyňskou linku
• Malý pokoj
• Koupelna s moderním vybavením
• Prostorný sklep k uskladnění sezónních věcí nebo vybudování dílny
• *Vyhrazené parkovací stání přímo u domu
• Možnost užívání zahrady

Skvělá lokalita pro aktivní život
Dolní Branná je ideální pro rodiny i jednotlivce hledající klidné bydlení v blízkosti přírody. Najdete zde mateřskou a základní školu, obchody, poštu i zastávku autobusu a vlaku. Vrchlabí a Jilemnice pak nabízejí širokou občanskou vybavenost včetně zdravotnických služeb, obchodů a restaurací. Okolí nabídne nepřeberné možnosti sportovního vyžití turistiku, cyklistiku, fotbal a zimní sporty.
Dokončení a bonusy
• Plánovaná kolaudace: prosinec 2025

Nenechte si ujít tuto jedinečnou příležitost.
Kontaktujte nás pro bližší informace.

Makléř

Máte zájem o tento byt?

Tímto, v souladu s nařízením Evropského parlamentu a Rady (EU) 2016/679, v platném znění, prohlašuji, že mi je alespoň 16 let a uděluji tak svůj souhlas se zpracováním zadaných údajů (jméno, telefon, e-mail, ip adresa) společnosti B3 Technology, s.r.o., IČ: 07330600, se sídlem Novostavby 126/23, 435 11 Lom (správce dat), za účelem předání dotazu z tohoto formuláře Vámi vybranému inzerentovi a zpětného kontaktování mé osoby. Osobní údaje bude správce zpracovávat manuálně i automaticky přímo prostřednictvím svých zaměstnanců. Informace předané tímto formulářem budou uloženy v databázi správce maximálně po dobu 10 let. Odvolání souhlasu s uložením a zpracováním poskytnutých dat lze e-mailem na info@origo-reality.cz. V případě podezření na neoprávněné použití Vámi poskytnutých údajů máte právo předat podnět k šetření Úřadu pro ochranu osobních údajů. Více informací
Chystáte se prodat nemovitost?
Pomůžeme Vám!

Přihlášení k odběru

Nenechte si ujít nejnovější nabídky prodeje bytů 2+kk v Dolní Branné.