Pronájem bytu 1+kk, Tábor, Jordánská, 26 m2 (ID: 1886673)

Jordánská, Tábor

8 000 Kč
/za měsíc
Měsíční služby spojené s užíváním bytu 1.800,- Kč bez elektřiny
Získejte výhodnou HYPOTÉKU Chci hypotéku

Parametry bytu

Náklady na bydlení1800,- Kč měsíčnš bez elektřiny
AdresaJordánská, Tábor
IDT122025
StavbaCihlová
Stav objektuDobrý
Patro1. z 2
VybavenoČástečně
Lokalita objektuKlidná část obce
VlastnictvíOsobní
Užitná plocha26 m2
Třída energetické náročnostiG - Mimořádně nehospodárná
Elektřina230V
PlynPlynovod
OdpadVeřejná kanalizace
TelekomunikaceInternet
VodaVodovod
Topné tělesoRadiátory
Zdroj topeníPlynový kotel, Ústřední dálkové
Zdroj teplé vodyPlynový kotel
Výtah
Bezbarierový přístup

Origo partneři v Táboře

Popis

Nabízíme vám k pronájmu menší garsoniéru  o výměře 26,7 m2 situovanou v 1. PP (přízemí) zděného  domu v Jordánské ulici pod historickým centrem Tábora. Okno je orientováno z druhé strany domu do zahrady.
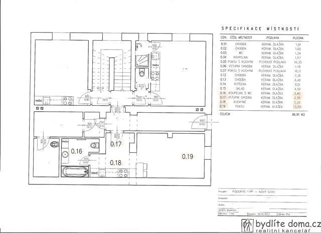
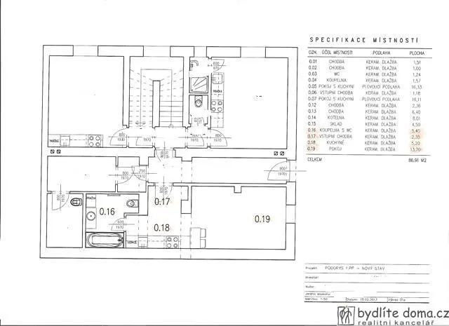
Byt je s kuchyňskou linkou a vestavěnou čtyř plotynkovou sklo keramickou varnou deskou, digestoří, dřezem s odkapávačem a stojankovou baterii. Součástí vybavení je menší barový pultík se dvěma stoličkami a věšáková stěna s botníkem za dveřmi. K dispozici je menší vestavěná chladnička s výparníkem, automatická pračka, nástěnné infrazářičové přídavné topení a odvlhčovač vzduchu. Na podlahách keramická dlažba. Topení a ohřev vody úsporným centrálním kotlem na plyn. Samostatná měřidla médií. Pokoj s kuchyní 18,9 m2, chodba 2,35 m2, koupelna s WC 5,45 m2. Na přiloženém půdoryse jde o byt označený čísly 0.16-0.19. Sklep není k dispozici. Prostor pro odložení kola v technické místnosti vedle kotelny.
Možnost grilováním v altánku a posezení pod venkovní pergolou. Vhodné je využití teras s trvalkovým porostem k venkovní relaxaci. Parkování před domem, na nedalekém placeném parkovišti nebo na velkém neplaceném parkovišti 500 m od domu.
Měsíční nájem 6.200,- Kč, služby spojené s užíváním bytu zálohově - V/S 200,- Kč, TUV 300,- Kč, otop 1.000,- Kč, společná elektřina 200,- Kč a úklid společných prostor 100,- Kč. Celkem služby měsíčně 1.800,- Kč. Nájem včetně služeb bez elektřiny 8.000,- Kč. Elektřina zvlášť samostatnou smlouvou s E.ON. Doporučená výše zálohy 1.200,- Kč.  Kauce 12.400,- Kč. Provize RK 9 tis. Kč. Byt je na dobré adrese.
Bydlení je vhodné pro jednu osobu. Očekáváme solventního zájemce s vlastním dostatečným příjmem, bez exekucí či insolvence, bez adresy trvalého bydliště na městském či obecním úřadu. Bez domácích mazlíčků. Vzhledem k tomu, že je byt v přízemí a pouze s jedním oknem,je třeba často a pravidelně větrat a v zimě pak byt řádně vytápět. Uvítáme proto méně náročného nájemníka, který vezme v potaz, že tento určitý disokonfort je zohledněný ve výši nájmu.
Prohlídky po domluvě s pracovníkem RK nejdříve od 1.12.2025,k nastěhování od 5.12. 2025. Možnost rezervace pořadí prohlídek již nyní.

Makléř

Máte zájem o tento byt?

Tímto, v souladu s nařízením Evropského parlamentu a Rady (EU) 2016/679, v platném znění, prohlašuji, že mi je alespoň 16 let a uděluji tak svůj souhlas se zpracováním zadaných údajů (jméno, telefon, e-mail, ip adresa) společnosti B3 Technology, s.r.o., IČ: 07330600, se sídlem Novostavby 126/23, 435 11 Lom (správce dat), za účelem předání dotazu z tohoto formuláře Vámi vybranému inzerentovi a zpětného kontaktování mé osoby. Osobní údaje bude správce zpracovávat manuálně i automaticky přímo prostřednictvím svých zaměstnanců. Informace předané tímto formulářem budou uloženy v databázi správce maximálně po dobu 10 let. Odvolání souhlasu s uložením a zpracováním poskytnutých dat lze e-mailem na info@origo-reality.cz. V případě podezření na neoprávněné použití Vámi poskytnutých údajů máte právo předat podnět k šetření Úřadu pro ochranu osobních údajů. Více informací
Chystáte se prodat nemovitost?
Pomůžeme Vám!

Přihlášení k odběru

Nenechte si ujít nejnovější nabídky pronájmu bytů 1+kk v Táboře.