Prodej rodinného domu, Bělotín, 437 m2

Bělotín

6 350 000 Kč
/za nemovitost
včetně provize, včetně právního servisu
Hypotéka od 28 381 Kč /měs. Chci hypotéku

Parametry domu

AdresaBělotín
ID00501
StavbaSmíšená
Stav objektuV rekonstrukci
VybavenoČástečně
Druh objektuŘadový
Lokalita objektuKlidná část obce
Užitná plocha437 m2
Zastavěná plocha342 m2
Plocha pozemku770 m2
Plocha zahrady428 m2
Třída energetické náročnostiG - Mimořádně nehospodárná
Elektřina230V, 400V
PlynPlynovod
OdpadVeřejná kanalizace, Jímka, Trativod
KomunikaceBetonová, Asfaltová
TelekomunikaceInternet, Kabelové rozvody
DopravaVlak, Dálnice, Silnice, MHD, Autobus
VodaVodovod, Studna
Topné tělesoRadiátory, Krbová kamna, Krb, Kotel na tuhá paliva
Zdroj topeníKrbová kamna, Krb, Kotel na tuhá paliva
Zdroj teplé vodyKotel na tuhá paliva
Garáž
Výtah
Parkování

Origo partneři v Bělotíně

Popis

Jedinečná investiční příležitost – Komerční i obytná nemovitost v Bělotíně.

Hledáte kombinaci komerčních prostor a rodinného bydlení v jednom?
Tato multifunkční nemovitost v klidné obci Bělotín (okres Přerov) Vám nabízí široké možnosti využití – podnikání, skladování, sídlo firmy i pohodlné bydlení na jednom místě.

Lokalita:
Vynikající dopravní dostupnost: dálnice D1 do 5 minut autem, Přerov 28 km, Olomouc 38 km, Ostrava 57 km.
Veškerá občanská vybavenost v dosahu: ZŠ, MŠ, pošta, obecní úřad, vlak, autobus – vše do 12 minut chůze

Dispozice nemovitosti:
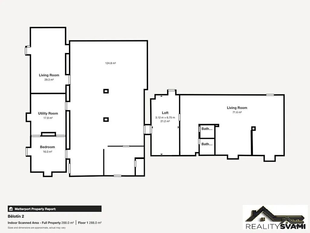
Přízemí – komerční prostory (288 m²)
Velkorysá hala s možností dispozičních úprav (vstup dveřmi nebo el. vraty)
Oddělené místnosti: sklady, kanceláře, čekárna, šatny, technické zázemí
Navazující část: bar, krbová kamna, posezení, 2x WC – vhodné pro kavárnu, vinárnu, kadeřnictví, masáže, wellness, jednací místnost apod.
Přístup na zahradu (možnost letní/zimní zahrádky, hřiště, bazénu, parkování, altánu)

Voda, elektřina, WC, příprava na topení
Parkování pro dodávky i více vozidel, rozměr vrat šířka 2,997m, výška 4,904m, zaparkujete zde i dlouhý přívěs.
Vhodné pro autoservis, výrobu, sklady, autodopravu

2. nadzemní podlaží – bytová jednotka 5+1 (149 m²)
- Samostatný vstup venkovním schodištěm
- Velká kuchyně s technickým prostorem a přístupem na střechu
- Obývací pokoj s krbovými kamny
- 2 pokoje, koupelna s vanou i sprchou, 2 WC
- Ložnice s lodžií

Technické informace:
Elektřina, vodovod, vlastní studna
Kanalizace: septik s trativodem (obecní kanalizace plánována – cca 50 m)
Plyn zaveden (nevyužíván)
Topení: krbová kamna na dřevo

- Možnost čerpání dotací (např. NZÚ)
- Potenciál pro solární panely či větrnou elektrárnu
- Nízké měsíční náklady

Stav a možnosti:
- Dům po rozsáhlé rekonstrukci – kolaudace 09/2023
- Probíhají dokončovací práce a úpravy pozemku
- Výborná investiční příležitost (možnost pronájmu komerčních prostor a bytové jednotky 5+1)

Neváhejte mě kontaktovat pro více informací nebo domluvení prohlídky.
S financováním, dotacemi i dokončovacími pracemi Vám rád pomohu.

Těším se na osobní setkání.

Makléř

Máte zájem o tento dům?

Tímto, v souladu s nařízením Evropského parlamentu a Rady (EU) 2016/679, v platném znění, prohlašuji, že mi je alespoň 16 let a uděluji tak svůj souhlas se zpracováním zadaných údajů (jméno, telefon, e-mail, ip adresa) společnosti B3 Technology, s.r.o., IČ: 07330600, se sídlem Novostavby 126/23, 435 11 Lom (správce dat), za účelem předání dotazu z tohoto formuláře Vámi vybranému inzerentovi a zpětného kontaktování mé osoby. Osobní údaje bude správce zpracovávat manuálně i automaticky přímo prostřednictvím svých zaměstnanců. Informace předané tímto formulářem budou uloženy v databázi správce maximálně po dobu 10 let. Odvolání souhlasu s uložením a zpracováním poskytnutých dat lze e-mailem na info@origo-reality.cz. V případě podezření na neoprávněné použití Vámi poskytnutých údajů máte právo předat podnět k šetření Úřadu pro ochranu osobních údajů. Více informací
Chystáte se prodat nemovitost?
Pomůžeme Vám!

Přihlášení k odběru

Nenechte si ujít nejnovější nabídky prodeje rodinných domů v Bělotíně.