Prodej bytu 1+kk, Praha - Kbely, Toužimská, 29 m2 (ID: 1886102)

Toužimská, Praha, Kbely

4 890 000 Kč
/za nemovitost
Hypotéka od 21 855 Kč /měs. Chci hypotéku

Parametry bytu

AdresaToužimská, Praha, Kbely
ID2025020
StavbaCihlová
Stav objektuVelmi dobrý
Patro1.
VybavenoČástečně
VlastnictvíOsobní
Užitná plocha29 m2
Třída energetické náročnostiD - Méně úsporná
Ukazatel energetické náročnosti129 kWh/m2 za rok
Elektřina230V
PlynPlynovod
OdpadVeřejná kanalizace
DopravaMHD
Topné tělesoRadiátory
Sklep
Výtah
Bezbarierový přístup

Origo partneři v Praze 9

Stěhovací služby

Výkup a prodej starého nábytku

Popis

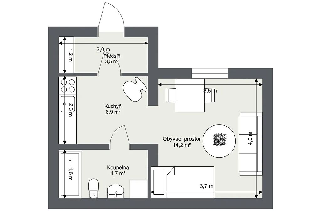
Exkluzivně nabízíme ke koupi byt o dispozici 1+ kk a celkové ploše 29,3 m², který se nachází v oblíbené pražské čtvrti Kbely, v ulici Toužimská. Byt je vhodný jak pro vlastní bydlení, tak i jako zajímavá investiční příležitost.

Nemovitost je situována v přízemí domu a její největší předností je samostatný vstup přímo ze dvora, což poskytuje dostatek soukromí a klidné bydlení. Výhodou je také orientace okna do vnitrobloku, která eliminuje ruch z ulice. K bytu náleží praktický sklep, který poskytuje další úložný prostor.

Byt prošel dílčími úpravami – disponuje novými hliníkovými vchodovými dveřmi a plastovým oknem s izolačním trojsklem. Kuchyň je vybavena plynovým sporákem, v koupelně je umístěna vana. Samozřejmostí je optická přípojka internetu. Součástí domu je také společný dvůr, který čeká na designovou úpravu zeleně. V plánu je vybudování příjemné odpočinkové zóny s okrasnými prvky, která podtrhne klidný charakter celého objektu.

Lokalita – Praha 9 – Kbely

Kbely patří mezi vyhledávané městské části díky spojení plné občanské vybavenosti s příjemným prostředím a blízkostí přírody. V docházkové vzdálenosti je základní a mateřská škola, poliklinika, lékárna, supermarket Billa a další služby. Nedaleko se nachází Centrální park Kbely s dětskými hřišti a cyklostezkami, sportovní areál TJ Sokol i další sportoviště. V širším okolí je také golfové hřiště Black Bridge.

Dopravní dostupnost je velmi dobrá – do centra Prahy se lze pohodlně dostat autem i městskou hromadnou dopravou během krátké doby.

Byt v Toužimské ulici představuje ideální volbu pro ty, kteří hledají praktické a klidné bydlení v dobře dostupné lokalitě, nebo chtějí investovat do nemovitosti s jistým výnosem.

Makléř

Máte zájem o tento byt?

Tímto, v souladu s nařízením Evropského parlamentu a Rady (EU) 2016/679, v platném znění, prohlašuji, že mi je alespoň 16 let a uděluji tak svůj souhlas se zpracováním zadaných údajů (jméno, telefon, e-mail, ip adresa) společnosti B3 Technology, s.r.o., IČ: 07330600, se sídlem Novostavby 126/23, 435 11 Lom (správce dat), za účelem předání dotazu z tohoto formuláře Vámi vybranému inzerentovi a zpětného kontaktování mé osoby. Osobní údaje bude správce zpracovávat manuálně i automaticky přímo prostřednictvím svých zaměstnanců. Informace předané tímto formulářem budou uloženy v databázi správce maximálně po dobu 10 let. Odvolání souhlasu s uložením a zpracováním poskytnutých dat lze e-mailem na info@origo-reality.cz. V případě podezření na neoprávněné použití Vámi poskytnutých údajů máte právo předat podnět k šetření Úřadu pro ochranu osobních údajů. Více informací
Chystáte se prodat nemovitost?
Pomůžeme Vám!

Přihlášení k odběru

Nenechte si ujít nejnovější nabídky prodeje bytů 1+kk v Praze 9.