Prodej rodinného domu, Luhačovice, Mlýnská, 260 m2 (ID: 1885517)

Mlýnská, Luhačovice

Cena na vyžádání
/za nemovitost
Cena včetně výstavby domu, kolaudace, pozemku, terasy, parkování a zahrady. Dům číslo 1.
Získejte výhodnou HYPOTÉKU Chci hypotéku

Parametry domu

AdresaMlýnská, Luhačovice
ID31996
StavbaCihlová
Stav objektuVe výstavbě
Typ objektuPatrový
Druh objektuSamostatný
Lokalita objektuCentrum obce
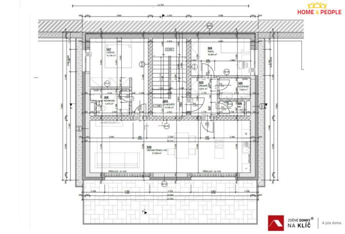
Užitná plocha260 m2
Zastavěná plocha117 m2
Podlahová plocha260 m2
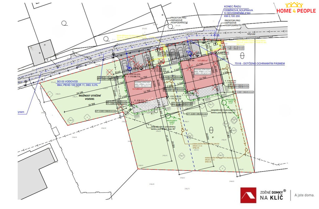
Plocha pozemku850 m2
Třída energetické náročnostiA - Mimořádně úsporná
Ukazatel energetické náročnosti49 kWh/m2 za rok
Sklep
Lodžie
Terasa
Parkování

Origo partneři v Luhačovicích

Popis

Zprostředkujeme Vám výstavbu novostavby domu 6+kk s komercí, terasou, zahradou a parkovacím místem přímo v srdci Luhačovic.
Představujeme vám jedinečnou příležitost vlastnit moderní a flexibilní třípodlažní rodinný dům na klíč, situovaný v samém centru prestižních Luhačovic.
Tato luxusní novostavba splňuje ty nejvyšší nároky na komfortní bydlení a zároveň otevírá neomezené možnosti pro investici a podnikání.

Bydlení, kde se potkává luxus s flexibilitou
Nepřekonatelná poloha: Bydlete v pěší dostupnosti lázeňské kolonády, kaváren a veškeré občanské vybavenosti. Život v centru Luhačovic nikdy nebyl pohodlnější.

Prostornost a design: Dům o dispozici 6+kk s promyšleným třípodlažním uspořádáním poskytuje dostatek soukromí a prostoru pro velkou rodinu.

Komfort každého patra: Každé podlaží je navrženo pro maximální pohodlí, včetně samostatné koupelny s WC, což umožňuje snadné rozdělení na až 3 nezávislé bytové jednotky.

Váš soukromý relax: Vychutnejte si ranní kávu nebo večerní posezení na prostorné terase s výhledem do privátní zahrady, která tvoří klidnou oázu uprostřed města.

Nadstandardní potenciál pro Váš business
Jedinečná možnost využít přízemí domu jako reprezentativní komerční prostory (kanceláře, ordinace, ateliér) s vlastním vstupem, čímž získáte ideální kombinaci bydlení a podnikání pod jednou střechou.

Parkování a zázemí
Pohodlné parkování: Zajištěno je parkovací stání pro 2 automobily přímo u domu.
Možnost garáže: Pro maximální komfort a bezpečí je zde možnost dobudování vlastní garáže.

Nenechte si ujít tuto exkluzivní šanci vlastnit multifunkční luxusní rodinnou vilu v jedné z nejvyhledávanějších lázeňských lokalit v Česku.
Ať už hledáte ideální rodinné sídlo, nebo chytrou investiční příležitost, tento dům je připraven splnit vaše sny.
Stavbu můžeme zahájit do 14dnů od podpisu smlouvy. Stavební povolení je vydáno, takže zde není žádné zdržení s jeho vyřízením.

Pro kompletní specifikace, vizualizace a sjednání osobní schůzky nás neváhejte kontaktovat. Ev. číslo: 31996.

Makléř

Máte zájem o tento dům?

Tímto, v souladu s nařízením Evropského parlamentu a Rady (EU) 2016/679, v platném znění, prohlašuji, že mi je alespoň 16 let a uděluji tak svůj souhlas se zpracováním zadaných údajů (jméno, telefon, e-mail, ip adresa) společnosti B3 Technology, s.r.o., IČ: 07330600, se sídlem Novostavby 126/23, 435 11 Lom (správce dat), za účelem předání dotazu z tohoto formuláře Vámi vybranému inzerentovi a zpětného kontaktování mé osoby. Osobní údaje bude správce zpracovávat manuálně i automaticky přímo prostřednictvím svých zaměstnanců. Informace předané tímto formulářem budou uloženy v databázi správce maximálně po dobu 10 let. Odvolání souhlasu s uložením a zpracováním poskytnutých dat lze e-mailem na info@origo-reality.cz. V případě podezření na neoprávněné použití Vámi poskytnutých údajů máte právo předat podnět k šetření Úřadu pro ochranu osobních údajů. Více informací
Chystáte se prodat nemovitost?
Pomůžeme Vám!

Přihlášení k odběru

Nenechte si ujít nejnovější nabídky prodeje rodinných domů v Luhačovicích.